广纳天下工程造价师、预算员、学生……我们因造价走到一起,在这里,我们一起分享清单计价算量技巧、投标报价、标底编制、工作经历……
- 223755成员
- 6516主题
- 49607回复
- 0热度

发表于2018-09-20
3230人浏览
2人跟帖
电脑端点击下载附件按钮即可下载!文件太大不支持手机端下载哦!
最新回复: 2021-09-09 
发表于2020-01-15
4430人浏览
2人跟帖
等级: 
下载方法1、点击下方蓝色标题进入资料页面。2、点击下载附件进行资料下载。3、资料要一个一个下载,不能一键全部下载哦~资料合集1、桥梁工程工程量计算单2、全套工程量计算书(土建、装饰装修等)【精】3、桥涵工程量计算计算教程...
最新回复: 2021-11-09 
发表于2020-05-18
1188人浏览
2人跟帖
清单计价项目特征的描述,是投标人报价的依据之一。同时,关于清单计价中项目特征的描述会影响到组价定额子目的套取,那如何判断项目特征描述是否到位, 这里有15条准则。准则1:涉及正确计量的内容必须描述如门窗洞口尺寸或框外...
最新回复: 2021-01-19 
发表于2020-02-25
968人浏览
2人跟帖
从征地开始、工程估算、设计概算、工程招投标、施工过程中、竣工决算、成本分析都需要准确计算建筑面积,无论你是在建设单位、还是施工单位、咨询公司都需要了解这份计算规则。(一)应计算的建筑面积的范围及规则1.建筑物的建筑...
最新回复: 2020-12-29 
发表于2020-02-28
302人浏览
2人跟帖
钢筋抽样简单的说,就是计算一个工程项目的钢筋总重量,得出的结果一般是多少吨。而钢筋的重量等于钢筋的长度乘以钢筋的比重,因此,钢筋抽样其实也就是计算钢筋的总长度,不同直径的钢筋的总长度乘以相应的比重就是钢筋的总重量...
最新回复: 2020-09-19 
发表于2020-02-25
1467人浏览
6人跟帖
新手有话说:对于钢筋算量,总会有说不清道不完的情愫。对于基础、墙、柱、梁、板、变截面等的钢筋锚固、弯折、加密、支座等问题总会束手无策。下面是我整理的钢筋方面的一些知识,希望对大家有所帮助!支座问题
最新回复: 2020-06-15 
发表于2020-05-18
2233人浏览
2人跟帖
一、柱钢筋1.柱纵筋柱纵筋单根长度=柱基础内插筋+柱净高+锚固长度+搭接长度*搭接个数搭接长度(Lle):如为机械连接或焊接连接时,搭接长度为0a.柱基础内插筋长度=基础高-基础保护层+弯折长度搭接长度(Lle):如果考试时候题中说明...
最新回复: 2020-05-24 
发表于2020-04-20
1011人浏览
1人跟帖
独立基础在一般低层或者多层建筑中常采用的一种基础,根据施工中难点今天给大家分享下独立基础的钢筋算量,供大家一起来学习:独立基础的钢筋一般布置于底部,需要时也布置于上部。1.2. 独立基础的平面注写方式(1)独立基础编号...
最新回复: 2020-04-20 
发表于2020-04-09
487人浏览
2人跟帖
道路千万条,你最喜欢哪一条?我们每天的生活与工作都通过四通八达的道路有条不紊地展开。作为工程造价人员,看到道路后会不由自主地犯职业病:这路的量怎么算?价怎么计?本文以A厂区内的道路为例,为你讲解水泥混凝土道路的计...
最新回复: 2020-04-13 
发表于2020-04-01
729人浏览
1人跟帖
一)建筑面积的概念建筑面积:建筑面积是指房屋建筑水平平面面积,以平方米为单位计算出的建筑物各层面积的总和。建筑面积包括使用面积、辅助面积和结构面积。使用面积是指可直接为生产或生活使用的净面积。辅助面积是指为辅助生...
最新回复: 2020-04-01 
发表于2020-03-16
1105人浏览
1人跟帖
梁1首跨1、上部贯通筋上部贯通筋(上通长筋1)长度=通跨净跨长+首尾端支座锚固值2、端支座负筋端支座负筋长度:第一排为Ln/3+端支座锚固值;第二排为Ln/4+端支座锚固值3、下部钢筋下部钢筋长度=净跨长+左右支座锚固值以上...
最新回复: 2020-03-16 
发表于2020-03-15
541人浏览
1人跟帖
本文主要探讨如何灵活运用钢结构表格算量与cad识别,快速提升在不同场景下的钢结构算量速度,全文共1077字,两个案例实操讲解,阅读约需要15分钟。文章以下图中的柱梁和节点为例:(图纸可通过加文章末尾的QQ群获取)第一种场景...
最新回复: 2020-03-15 
发表于2020-03-03
1351人浏览
2人跟帖
30个常用工程量计算工具
最新回复: 2020-03-12 
发表于2020-02-25
506人浏览
2人跟帖
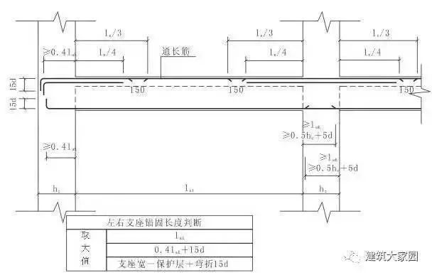
楼层框架梁纵向钢筋排布规则一、二级抗震等级楼层框架梁KL钢筋排布如图所示。(1)ln为跨度值;ln1为第一跨;ln2为第二跨。(2)有悬挑端的楼层框架梁,其悬挑部分的钢筋排布见图7.3。(3)图中hc为柱截面沿框架方向的高度。(4...
最新回复: 2020-03-07 
发表于2020-03-04
644人浏览
2人跟帖
提到楼梯的计算,许多造价朋友讲,看平法图集的时候,似乎很清楚,但拿到具体工程,又无法下手帮助你们真正弄透楼梯的计算。为了帮助大家更好理解和掌握,本文将从以下几个方面对每种类型的楼梯进行剖析,形成一套连载文章:1、...
最新回复: 2020-03-07 
发表于2020-03-06
335人浏览
1人跟帖
剪力墙(shear wall)又称抗风墙、抗震墙或结构墙。房屋或构筑物中主要承受风荷载或地震作用引起的水平荷载和竖向荷载(重力)的墙体,防止结构剪切(受剪)破坏。又称抗震墙,一般用钢筋混凝土做成。而剪力墙钢筋工程量计算,又是...
最新回复: 2020-03-06 
发表于2020-03-05
816人浏览
1人跟帖
二次搬运费的问题在疑问中越来越多,总结出来就两条,多远的距离要计取二次搬运费?二次搬运费计取多少?回答这两个问题还是要先从名词解释说起:二次搬运费的内容:是指因施工场地狭小等特殊情况而发生的二次搬运费用。 一般...
最新回复: 2020-03-05 
发表于2020-02-28
77人浏览
1人跟帖
项目价格问题你问:我们公司接了一个机场跑道项目,按照定额下浮多少点可以做?要求下浮25%合适吗?我看到招标中钢筋6300元每吨,价格还算可以,包括现场临时围护和拆除围护内容。我答:定额下浮方式测算适合民用住宅之类的工程...
最新回复: 2020-02-28 
发表于2020-02-28
882人浏览
1人跟帖
如何计算超高一、为何要计算超高?超高的计算原因:当建筑物超出一定高度时,就会引起人工、机械施工效率的降低,而定额是以建筑物一般高度计算人工机械费用的,所以就要计算超高增加费。一般情况定额中模板的支撑是按 3.6m 以内...
最新回复: 2020-02-28 
发表于2020-02-22
2216人浏览
9人跟帖
资料下载方法1、点击下方蓝色标题进入资料页面。2、点击下载附件进行资料下载。3、资料要一个一个下载,不能一键全部下载哦~资料下载1、夜景亮化建设项目工程量清单(含图纸)2、土地整治项目施工图纸及工程量清单3、猪舍改造及...
最新回复: 2020-02-27 