幕墙结构节点详图_结构设计图片
本小组汇集点式、明框、隐框等幕墙结构节点详图。需要的龙友可以进行下载,也可以上传幕墙结构详图的相关资料,与建筑人一起分享!
  • 84653成员
  • 784主题
  • 1115回复
  • 0热度
  • 0周热度
  • 0月热度
  • 0总热度

了解更多

标签检索
节点类型: 更多
等      级:

检索到791条内容

0

八角 发表于2008-01-02  2539人浏览  1人跟帖   等级:   来自:幕墙结构节点详图  

某网架玻璃屋面节点图

0

八角 发表于2007-12-20  1514人浏览  1人跟帖   等级:   来自:幕墙结构节点详图  

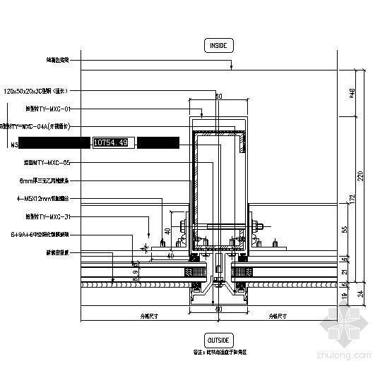
北京中关村某大厦幕墙节点图   图纸包括:半隐框幕墙横剖节点图、半隐框幕墙纵剖节点图、幕墙连接节点图。   

0

八角 发表于2007-12-20  1526人浏览  1人跟帖   等级:   来自:幕墙结构节点详图  

某驻韩大使馆幕墙节点图纸

0

fogray 发表于2007-12-17  1488人浏览   等级:   来自:幕墙结构节点详图  

深圳某商会中心玻璃幕墙节点图

0

八角 发表于2007-12-17  1500人浏览  1人跟帖   等级:   来自:幕墙结构节点详图  

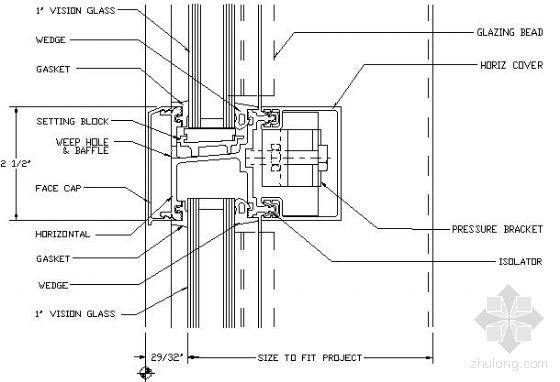
德国某明框幕墙节点

0

flyegg111 发表于2007-11-09  3079人浏览  1人跟帖   等级:   来自:幕墙结构节点详图  

某四棱锥采光顶节点

0

feiyun36 发表于2007-08-10  1576人浏览  1人跟帖   等级:   来自:幕墙结构节点详图  

共6个节点详图。

0

shark2008 发表于2007-07-04  8083人浏览  3人跟帖   等级:   来自:幕墙结构节点详图  

玻璃幕墙节点图   包括:   竖明横隐幕墙横剖节点图(178度)   竖明横隐幕墙纵剖节点图   竖明横隐幕墙连接件横剖节点图   竖明横隐幕墙顶收口纵剖节点图   ......   等23个节点详图。

0

jly666789 发表于2007-06-14  2503人浏览  1人跟帖   等级:   来自:幕墙结构节点详图  

13米高全玻璃幕墙部分构造节点,共13个节点。   

0

zhangfaqiang 发表于2007-04-05  3101人浏览  1人跟帖   等级:   来自:幕墙结构节点详图  

7个幕墙节点

0

caojf 发表于2004-03-24  3007人浏览   等级:   来自:幕墙结构节点详图  

玻璃幕墙节点