匿名
发表于2021-05-10
250人浏览
1人跟帖
等级: 
该资料为石材幕墙通用节点大样图。资料包括详细的节点大样,方便直接选用或者借鉴。节点多样,包含多种通用及特殊节点。节点大样.png节点大样2.png节点大样3.png
最新回复:微风吹来09 2021-05-10 
匿名
发表于2021-04-29
199人浏览
1人跟帖
等级: 
该资料为常用各类不同幕墙连接节点详图。图纸说明详细,结构图纸完整,各个节点大样清晰。节点多样,包含多种通用及特殊节点。石材幕墙节点.png隐框开启窗.png隐框横向.png点子幕墙.png吊挂幕墙.png隐框与石材.png
最新回复:微风吹来09 2021-04-29 
匿名
发表于2021-04-29
241人浏览
1人跟帖
等级: 
该资料为某办公楼石材玻璃幕墙节点大样图。资料包括详细的节点大样,方便直接选用或者借鉴。节点多样,包含多种通用及特殊节点。石材幕墙节点.png石材幕墙节点2.png隐框幕墙节点.png隐框幕墙节点2.png明框幕墙节点.png明框幕墙节...
最新回复:微风吹来09 2021-04-29 
匿名
发表于2021-04-27
955人浏览
1人跟帖
等级: 
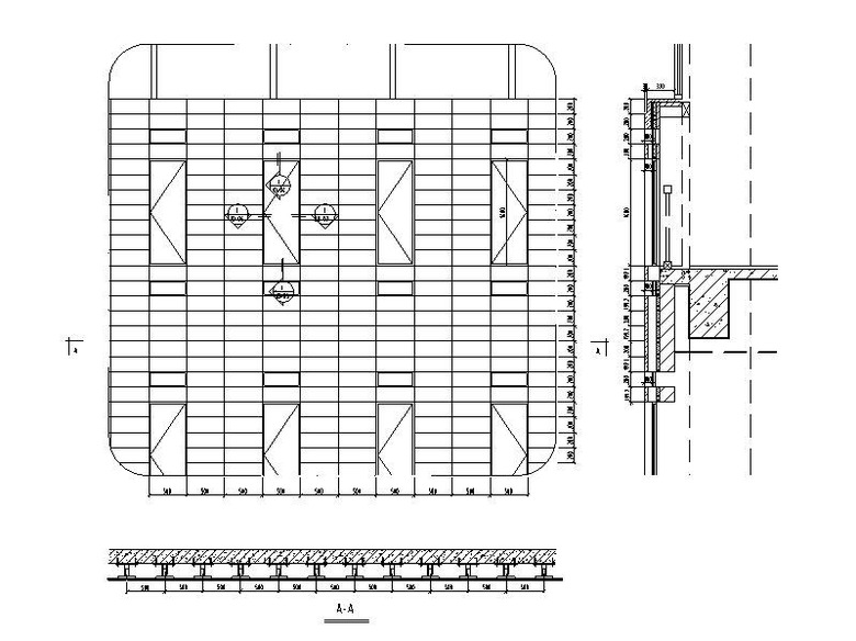
该资料为某公共建筑干挂石材幕墙节点图。资料包括详细的节点大样,方便直接选用或者借鉴。包括罗马柱与墙立面石材节点。节点大样图.png节点大样图2.png节点大样图3.png
最新回复:微风吹来09 2021-04-27 
匿名
发表于2021-01-27
605人浏览
2人跟帖
等级: 
本资料是石材幕墙系统节点图(CAD),共计图纸13张。包括详细的节点大样,图纸完整清晰,方便直接选用或者借鉴。部分内容见下方预览图:石材幕墙系统节点图_1石材幕墙系统节点图_2石材幕墙系统节点图_3
最新回复:呵呵呵500 2021-04-21 
匿名
发表于2021-01-14
331人浏览
1人跟帖
等级: 
本资料是仿古式房屋节点大样(CAD),共计图纸1张,出图时间是2016年。内容包含:正堂柱础大样图、前后檐阶沿详图、山墙压口石详图、清水正脊做法图、正堂雀替大样图、斗拱大样图、正堂轩廊大样图、垛头大样图、侧门沿口大样、六...
最新回复:白鸟朝凤 2021-01-14 
匿名
发表于2020-11-20
331人浏览
2人跟帖
等级: 
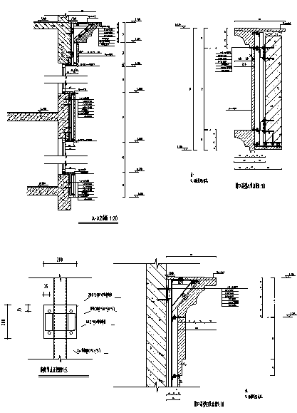
本资料是石材幕墙节点详图,出图时间是2019年,共图纸9张。内容分为2部分:开放式石材节点详图、注胶式石材节点详图,包含:开放式石材幕墙横向标准节点图、开放式石材幕墙竖向标准节点图、开放式石材幕墙背板搭接节点图、注胶式...
最新回复:zlccx 2020-12-25 
匿名
发表于2020-12-24
168人浏览
1人跟帖
等级: 
该资料为石材幕墙相关详细施工节点图。幕墙节点多样,形式复杂,节点特殊。资料包括详细的节点大样,方便直接选用或者借鉴。节点大样.png节点大样2.png节点大样3.png节点大样4.png节点大样5.png节点大样6.png
最新回复:微风吹来09 2020-12-24 
匿名
发表于2020-12-02
2440人浏览
1人跟帖
等级: 
本资料是消防救援窗节点示意图(CAD),出图时间是2019年,共图纸6张。内容分为3部分:石材救援窗、铝板救援窗、GRC救援窗(GRC是一种以耐碱玻璃纤维为增强材料、水泥砂浆为基体材料的纤维水泥复合材料)。包含石材救援窗节点示...
最新回复:鱼水情深似海 2020-12-02 
匿名
发表于2020-08-24
1830人浏览
1人跟帖
等级: 
本资料是铝板幕墙_石材幕墙节点详图(CAD),合计179张。资料包含:铝板幕墙节点详图80张、石材幕墙节点详图99张。主要内容:(一)铝板幕墙节点详图80张1.铝塑板包梁、包柱节点图2.150型隐框幕墙及铝塑板幕墙节点13.玻璃幕墙与铝...
最新回复:鱼水情深似海 2020-08-24 
匿名
发表于2020-08-11
271人浏览
1人跟帖
等级: 
本资料是玻璃_石材及铝板幕墙细部构造及大样图合集(CAD)。资料内容分为3部分,即玻璃幕墙、石材幕墙、铝板幕墙。玻璃幕墙部分为点支式、吊挂式、明框式、隐框式。共计60份节点图纸。石材幕墙部分包含15份节点图纸。铝板幕墙部分...
最新回复:鱼水情深似海 2020-08-11 
匿名
发表于2019-12-18
2149人浏览
1人跟帖
等级: 
石材干挂节点详图(CAD ,3张),主要包括:石材干挂标准竖向节点石材干挂标准阳角节点石材干挂标准横向节点石材干挂标准竖向节点石材干挂标准阳角节点石材干挂标准横向节点
最新回复:wangguijie0304 2019-12-18 
匿名
发表于2019-12-06
316人浏览
1人跟帖
等级: 
屋面系统标准图CAD,主要包括:铝单板装饰面板平面直立锁边铝镁锰合金板平面屋面系统大样图(铝单板装饰面板)CAD格式,共3张;铝单板装饰面板平面直立锁边铝镁锰合金板平面屋面系统大样图
最新回复:wangguijie0304 2019-12-06 
匿名
发表于2019-12-05
1040人浏览
1人跟帖
等级: 
幕墙百叶系统标准图CAD,主要包括:铝合金组框式百叶大样图及节点图铝合金防水百叶大样图及节点图铝合金构件式百叶大样图及节点图石材百叶大样图及节点图玻璃百叶大样图及节点图CAD格式;铝合金组框式百叶大样图铝合金防水百叶大...
最新回复:wangguijie0304 2019-12-05 
匿名
发表于2019-12-05
590人浏览
1人跟帖
等级: 
特殊板幕墙系统标准图CAD,主要包括:GRC挂板幕墙系统大样及节点图清水混凝土挂板幕墙系统大样及节点图铜板幕墙系统大样及节点图千丝板幕墙系统大样及节点图钛锌板幕墙系统大样及节点图纤维水泥板(埃特板)幕墙系统大样及节点图...
最新回复:wangguijie0304 2019-12-05 
匿名
发表于2019-12-05
666人浏览
1人跟帖
等级: 
陶土板幕墙系统标准图CAD,主要包括:陶土板幕墙大样图;陶土板幕墙节点图;陶土板幕墙阴角转角节点图;陶土板幕墙阳角转角节点图;陶土板幕墙竖剖节点图;陶土板女儿墙压顶节点图;陶土板幕墙横剖节点图;CAD格式,共17张;陶土...
最新回复:wangguijie0304 2019-12-05 
匿名
发表于2019-12-05
941人浏览
1人跟帖
等级: 
幕墙伸缩缝节点系统图CAD,主要包括:框架幕墙伸缩缝节点(玻璃面板)1张陶土板伸缩缝节点(2张)石材伸缩缝节点(2张)单元式伸缩缝节点(2张)CAD格式,共7张,编制于2015年;框架幕墙伸缩缝节点石材幕墙伸缩缝节点陶土板幕墙...
最新回复:wangguijie0304 2019-12-05 
匿名
发表于2019-12-05
693人浏览
1人跟帖
等级: 
石材幕墙大样图及节点图CAD,主要包括:湿贴石材节点图T型挂件节石材节点图.背栓石材背衬铝板节点图蝴蝶挂件石材节点图造型石材大样图造型石材节点图石材幕墙中建部分横剖标准节点背栓石材背衬铝板节点图石材幕墙大样图T型挂件节...
最新回复:wangguijie0304 2019-12-05 