匿名
发表于2021-07-02
254人浏览
2人跟帖
等级: 
工程概况:本工程为重庆省老年大学给排水施工图2020(含招标控制价),工程属多层公建筑。本工程设计使用年限为50年;抗震设防烈度为6度,结构形式为框架结构,抗震等级三级,抗震设防类别为丙类。本工程耐火等级为二级,建筑工...
最新回复:荃蕙苍苍 2021-07-06 
匿名
发表于2021-06-29
462人浏览
1人跟帖
等级: 
工程概况: 本工程贵州省住院大楼特殊科室消防施工图2020(含预算价),总建筑面积:15650.26平方米,地下停车位15辆。地下1层,地上9层,建筑总高度39.0m,一层、二层、三层层高为4.2m,四层层高为6.3m(含设备转换层),五层、...
最新回复:云亭老师 2021-07-05 
匿名
发表于2021-07-02
122人浏览
1人跟帖
等级: 
工程概况:本项目为湖南省小学项目给排水施工图2021(CAD+PDF),总用地面积 51625.93 平米(合约 77.439 亩),其中净用地面积为 42793.01 平米(合 约 64.19 亩)。项目规模为 36 个班的中学。要求设计满足教学、行政办公,教...
最新回复:双星月 2021-07-02 
匿名
发表于2021-06-30
154人浏览
1人跟帖
等级: 
工程概况:本工程为湖南省中学给排水施工图2021(CAD+PDF),总用地面积 51625.93 平米(合约 77.439 亩),其中净用地面积为 42793.01 平米(合 约 64.19 亩)。项目规模为 36 个班的中学。要求设计满足教学、行政办公,教师学...
最新回复:双星月 2021-06-30 
匿名
发表于2021-06-30
72人浏览
1人跟帖
等级: 
工程概况:本工程为湖南省中学给排水施工图2021(CAD+PDF),总用地面积 51625.93 平米(合约 77.439 亩),其中净用地面积为 42793.01 平米(合 约 64.19 亩)。项目规模为 36 个班的中学。要求设计满足教学、行政办公,教师学...
最新回复:双星月 2021-06-30 
匿名
发表于2021-06-30
497人浏览
1人跟帖
等级: 
工程概况:本工程为湖南省中学给排水施工图(CAD+PDF),总用地面积 51625.93 平米(合约 77.439 亩),其中净用地面积为 42793.01 平米(合 约 64.19 亩)。项目规模为 36 个班的中学。要求设计满足教学、行政办公,教师学生用...
最新回复:双星月 2021-06-30 
匿名
发表于2021-06-30
81人浏览
1人跟帖
等级: 
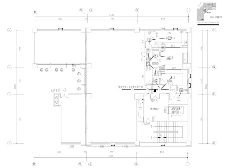
工程概况:本工程为湖南省卫生院改造给排水施工图2021(含大样图)。设计范围:建筑给排水系统设计。部分图纸展示:改造后三层平面图.jpg改造后一层给排水平面图.jpg一层给排水平面图.jpg给排水系统图.jpg公共卫生间一层大样图....
最新回复:双星月 2021-06-30 
匿名
发表于2021-06-30
72人浏览
1人跟帖
等级: 
工程概况:本工程为贵州省400吨每天地下医院医疗污水处理工艺图2020。部分图纸展示:机房管路图.jpg平面布置图.jpg剖面图(一).jpg
最新回复:双星月 2021-06-30 
匿名
发表于2021-06-30
46人浏览
1人跟帖
等级: 
工程概况:本工程为贵州省特类人员强制隔离戒毒所及配套基础设施给排水施工图,建筑总面积:7502.81㎡,建筑高度为13.80m,耐火等级:二级;建筑性质:公共建筑;主要功能:备勤宿舍、收戒、会见、门诊、急诊、医技。本设计范围...
最新回复:双星月 2021-06-30 
匿名
发表于2021-06-30
24人浏览
1人跟帖
等级: 
工程概况:本工程为贵州省特类人员强制隔离戒毒所女性康复居住区给排水施工图,建筑总面积:3213.56㎡,建筑高度为8.4m,耐火等级:二级;建筑性质:公共建筑;主要功能:12人间居室、操作间、办公室等组成。本设计范围包括红线...
最新回复:双星月 2021-06-30 
匿名
发表于2021-06-30
33人浏览
1人跟帖
等级: 
工程概况:本工程为贵州省特类人员强制隔离戒毒所男性康复居住区给排水施工图,建筑总面积:6164.39㎡,建筑高度为12.6m,耐火等级:二级;建筑性质:公共建筑;主要功能为12人间居室、操作间、办公室等组成。本设计范围包括红线...
最新回复:双星月 2021-06-30 
匿名
发表于2021-06-29
61人浏览
1人跟帖
等级: 
工程概况:本工程为重庆医疗专项工程给排水施工图(含工程清单);总共包括:综合楼四层日间手术、洁净手术部;综合楼DSA手术室;全科楼DSA手术室医疗气体设计。本工程为:日间手术室、洁净手术室、DSA手术室区域均设置六种医用气...
最新回复:薄暮晨光123 2021-06-30 
匿名
发表于2021-06-30
57人浏览
1人跟帖
等级: 
工程概况:本工程为重庆省旅游基础设施建设项目给排水施工图(含招标文件)。项目总用地面积180745.43m²,总建筑面积为1956.31m²。 1#、9#配套用房,地上1层,建筑面积123.20m²,建筑高度3.9m;2#配套用房,地上1层,建筑面积...
最新回复:双星月 2021-06-30 
匿名
发表于2021-06-29
90人浏览
1人跟帖
等级: 
工程概况:本工程为贵州省幼儿园项目给排水施工图2020(含大样图),建筑面积5128.12平方米;建筑基底面积1929.46平方米。本建筑为3层,层高3.9m,局部5.1m,建筑总高度为12m。设计范围:本设计范围在地块红线以内该建筑的室内给...
最新回复:双星月 2021-06-29 
匿名
发表于2021-06-29
178人浏览
1人跟帖
等级: 
工程概况:本工程为贵州省新华书店给排水施工图2019(含招标文件及工程清单)建筑总面积为:1313.18平方米设计范围:给排水系统设计。部分图纸展示:二层平面图.jpg屋顶平面图.jpg一层平面图.jpg给排水系统图.jpg
最新回复:双星月 2021-06-29 
匿名
发表于2021-06-29
77人浏览
1人跟帖
等级: 
工程概况:本项目为重庆省三级加油站建设给排水施工图2021(含清单和招标文件),建设用地面积3146.67平方米。主要建筑为2层站房、1层加油站罩棚和阳光棚,总建筑面积为673.32平方米,其中站房建筑面积264.24平方米,罩棚建筑面...
最新回复:双星月 2021-06-29 
匿名
发表于2021-06-29
58人浏览
1人跟帖
等级: 
工程概况:本工程为重庆省旅游基础配套用房设施给排水施工图2020(含招标文件)项目总用地面积180745.43m²,总建筑面积为1956.31m²。设计范围:本设计包括室内生活给排水及消防给水系统;室外给排水、消防给水管道系统及小型给排...
最新回复:双星月 2021-06-29 
匿名
发表于2021-06-29
75人浏览
1人跟帖
等级: 
工程概况:本工程为贵州省中医院特殊科室项目给排水施工图2020(含预算价),建筑总高度39.0m,一层、二层、三层层高为4.2m,四层层高为6.3m(含设备转换层),五层、六层、七层、八层层高为3.9m,九层层高为4.5m,建筑耐火等级...
最新回复:双星月 2021-06-29 
匿名
发表于2021-06-29
80人浏览
1人跟帖
等级: 
项目概况:本项目为重庆省医院医用水系统项目。系统采用集中制水分质供水设计。中央纯水主机:设计水量10T/H(25℃水温)。机房位置位于负一层车库内。用水类型包含:①检验用水、②清洗用水、③二级清洗用水、④软水。水处理机房...
最新回复:双星月 2021-06-29 