hxb8989
发表于2010-02-04
2929人浏览
1人跟帖
等级: 
卫生间给排水大样图,水池大样图,雨水系统原理图等。设计总说明一.给水系统本1、工程生活给水接市政给水管网,消防给水接小区规划室外消防给水管网.室外生活给水管网和室外消防给水管网在市政给排水管网设计中统一布置.2、室外消...
最新回复:liuwei198413 2010-02-04 
匿名
发表于2021-11-05
82人浏览
1人跟帖
等级: 
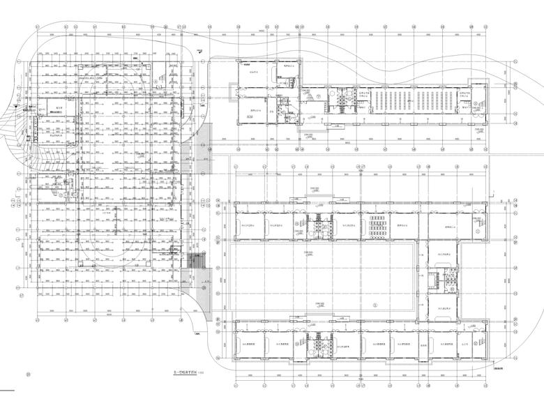
1、工程概况:本项目为贵州省多层幼儿园建设给排水施工图;为多层公共建筑。2、设计内容: 室内给排水及消防系统。部分图纸展示:三层给排水平面图.jpg三层喷淋平面图.jpg一层给排水平面图.jpg一层喷淋平面图.jpg给排水系统原理图...
最新回复:双星月 2021-11-05 
匿名
发表于2021-11-02
39人浏览
1人跟帖
等级: 
1、工程概况:本工程为贵州省教学实验综合楼给排水施工图;建筑类别:多层民用建筑;建筑性质:教学楼;建筑高度:8.40M;建筑面积:18553.00平方米。2、设计内容:本设计范围包括一期红线以的生活给水、生活污水、废水、消防等...
最新回复:双星月 2021-11-02 
匿名
发表于2021-10-27
33人浏览
1人跟帖
等级: 
1、工程概况:本工程为贵州省学校大门给排水施工图。建筑高度:7.8m;建筑类别:多层公共建筑;耐火等级:二级。抗震烈度为6度,设计使用年限为50年。2、设计内容:建筑用地红线范围内的室内生活及消防给排水设计。其中包括:生活...
最新回复:双星月 2021-10-27 
匿名
发表于2021-10-21
40人浏览
1人跟帖
等级: 
1、工程概况:本工程为贵州省小学给排水施工图;2、设计内容:室内给排水及消防系统。部分图纸展示:二层给排水、消防平面图.jpg五层给排水、消防平面图.jpg一层给排水、消防平面图.jpg给排水管道系统原理图.jpg消火栓管道系统原...
最新回复:双星月 2021-10-21 
匿名
发表于2021-10-21
37人浏览
1人跟帖
等级: 
1、工程概况:本工程为贵州省小学教学楼、门卫室给排水施工图2020,教学楼:地上五层小学教学楼,二层配套用房(二层为风雨操场,首层为食堂),本栋总建筑面积22692.66m2,建筑高度:21.45m。门卫室。建筑面积:1#门卫室建筑面积...
最新回复:双星月 2021-10-21 
匿名
发表于2021-10-14
74人浏览
1人跟帖
等级: 
1、工程概况:本工程为贵州省中学公厕给排水施工图;项目包括:公厕一:多层公共建筑,地上2层,建筑高度6.600m。本次给排水设计范围为生活给水系统、排水系统、消防系统。公厕二:本工程为多层公共建筑,地上1层,建筑高度3.90...
最新回复:双星月 2021-10-14 
匿名
发表于2021-10-14
18人浏览
1人跟帖
等级: 
1、工程概况:本工程为贵州省中学行政楼给排水施工图;本工程为多层公共建筑,地下1层,地上6层,建筑高度24.000m。2、设计内容:本次给排水设计范围为生活给水系统、排水系统,雨水系统、消火栓给水系统。部分图纸展示:二层给...
最新回复:双星月 2021-10-14 
匿名
发表于2021-10-14
32人浏览
1人跟帖
等级: 
1、工程概况:本工程为贵州省中学教学楼给排水施工图;本工程为多层公共建筑,地上5层,建筑高度21.000m。2、设计范围:本次给排水设计范围为生活给水系统、排水系统,雨水系统、消火栓给水系统。部分图纸展示:负一层喷淋平面图...
最新回复:双星月 2021-10-14 
匿名
发表于2021-10-13
35人浏览
1人跟帖
等级: 
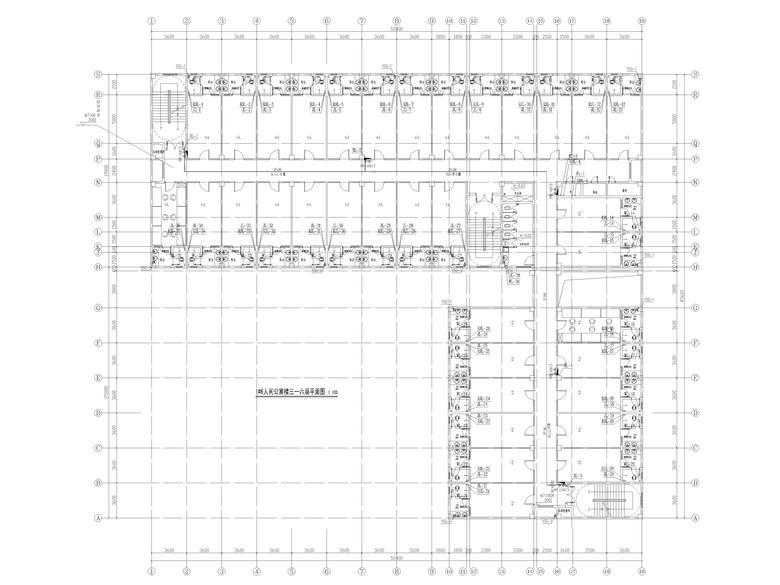
1、工程概况:本工程为贵州省卫生学校宿舍给排水施工图;2、设计内容:本专业设计内容有生活给水系统、污水系统、室内消火栓系统、自动喷淋系统及灭火器设置。部分图纸展示:1#6人间公寓楼三层平面图.jpg1#6人间公寓楼一层(架空...
最新回复:双星月 2021-10-13 
匿名
发表于2021-10-13
29人浏览
1人跟帖
等级: 
1、工程概况:本工程为贵州省卫生学校综合实训楼给排水施工图;本工程地下一层,地上九层。2、设计范围:本工程设有室内给排水系统,室内消火栓系统及自动喷淋系统;室外消防及室外给排水在总图中一并设计;本设计范围为红线范围...
最新回复:双星月 2021-10-13 