这里是土建及装饰工程商务经理、造价员、预算员、学生一起分享讨论预算技巧、造价信息、工作经历……的大本营,欢迎加入
- 260496成员
- 33674主题
- 274173回复
- 0热度

发表于2021-07-26
58人浏览
1人跟帖
说到工程结算,不少有经验的工程人都觉得:三分建,七分算。虽然施工质量和施工成本是很重要的控制因素,但是工程干的再好,资料一团糟,结算的时候也没法计算,到那时补资料是比较困难的,对于施工方来说,就会损失点点滴滴的利...
最新回复: 2021-07-26 
发表于2021-07-26
831人浏览
1人跟帖
很多同学,一遇到楼梯就发晕,搞不懂楼梯要计算哪些工程量,今天的文章,我们就来讲一下这个话题。楼梯工程量,从大的方面来说,有两大块,一块是钢筋,一块是工程量,如图1所示。图1楼梯钢筋我们另外专题来讲,今天我们主要讲楼...
最新回复: 2021-07-26 
发表于2016-04-17
1412人浏览
5人跟帖
中国建筑行业从运营管理模式上看,直到最近的前些年仍处在计划经济时代。而在这两年,以前那种只要拿到项目就可以赚钱的好光景已经一去不复返了,行业的市场经济时代开始了。现在整个行业普遍的利润率降到了1—2%的水平。而其它...
最新回复: 2021-07-24 
发表于2021-07-15
1518人浏览
2人跟帖
装修材料的计算方法你GET了吗?常用装修材料的计算方法装修材料占整个装修工程费用的60%-70%,一般情况下,房子装修费用的多少取决于装修面积的大小,所以,在装修之前必须对房子的面积进行测量,以便准确地计算出所需材料的用量...
最新回复: 2021-07-22 
发表于2020-02-24
786人浏览
2人跟帖
1、建安成本包括哪些项目?包含前期工程、基础工程、单体工程(包括地下室、裙楼与塔楼)、配套设施(如会所、小学、幼儿园等)、配套工程、室外工程。2、建筑建安成本经验数据的使用范围所谓经验成本,肯定不能作为精确报价依据...
最新回复: 2021-07-21 
发表于2021-07-20
55人浏览
1人跟帖
如同人一样,钢筋有着自己倔强的一面。它刚直不阿,能屈能伸,承担着混凝土结构的起承转合。在地基工程中,钢筋作为桩基础的主要受力点,它成为了建筑本体舒适的“鞋”。在基础工程中,筏型基础、箱型基础中随处可见钢筋的身影,...
最新回复: 2021-07-20 
发表于2021-07-20
85人浏览
1人跟帖
学工科,特别是学土木工程有关专业的,以及从事土建项目设计、施工、监理、预决算的人士,免不了经常要跟“砼”字打交道。今天建知微圈就来细细跟你聊一聊这个“砼”。什么是“砼”“砼”与“混凝土”同义;它的读音为“tóng”...
最新回复: 2021-07-20 
发表于2021-07-20
105人浏览
1人跟帖
案例背景筏板+承台的组合基础相信大家都遇见过,图一、图二同样是筏板+承台,您能看出来区别在哪吗?没错,就是筏板主筋是在承台内是否贯通。图一中筏板面筋、底筋遇承台都是贯通的;图二中筏板面筋遇承台贯通,筏板底筋遇承台断...
最新回复: 2021-07-20 
发表于2018-05-07
6407人浏览
24人跟帖
2018版湖北省通用安装工程消耗量定额及全费用基价表
最新回复: 2021-07-20 
发表于2021-07-19
61人浏览
上市预告为进一步完善造价工程师职业资格制度,提高工程造价从业人员的职业素养和业务水平,2018年7月20日住房城乡建设部、交通运输部、水利部、人力资源社会保障部印发关于《造价工程师职业资格制度规定》《造价工程师职业资格...
最新回复: 2021-07-19 
发表于2016-06-29
894人浏览
5人跟帖
等级: 
建筑指标参考1、建筑抹灰计量与检查:a弄清发包范围;b弄清计算规则(一般在清单中第一章);c随手在白图或蓝天上用不同颜色记号笔做标记,或者相应编排上序列号;d天棚、地面的检查:与CFA对比;或者用不包含梁侧面的天棚量和地...
最新回复: 2021-07-19 
发表于2016-09-02
1615人浏览
2人跟帖
通过计算,算出栏杆圆管φ 38每米含7.49kg(已算损耗率),圆管φ 51每米含量3.8kg(已含损耗率) 定额库的栏杆定额子目中的材料规格以D32的含量计算(见图1),因栏杆的规格尺寸改变,所以含量也应该改变,请问含量修改后是否正...
最新回复: 2021-07-17 
发表于2021-07-16
181人浏览
2018安徽定额2018安徽定额2018安徽定额
最新回复: 2021-07-16 
发表于2021-07-16
188人浏览
1人跟帖
近日,住建部发布《房屋建筑和市政基础设施工程淘汰危及安全生产施工工艺、设备和材料目录(第一批)(征求意见稿)。共淘汰22项施工工艺、设备和材料,竹(木)脚手架和门式钢管满堂搭设支撑架被禁止使用。文章后半段为全国各省...
最新回复: 2021-07-16 
发表于2021-04-29
922人浏览
2人跟帖
资料下载步骤:1、点击下方蓝色标题进入资料页面。2、点击下载附件进行资料下载。3、资料要一个一个下载,不能一键全部下载哦~1土建GTJ2018GTJ2018软件操作教程案例讲解(223页)2土建GTJ2018广联达BIM土建计量平台GTJ2018培训教程...
最新回复: 2021-07-15 
发表于2021-07-15
1036人浏览
1人跟帖
保温隔热层工程量计算应区别不同保温隔热材料,除另有规定者外,均按设计实铺厚度以立方米计算。保温隔热层厚度按隔热材料(不包括胶结材料)净厚度计算。地面隔热层按围护结构墙体间净面积乘以设计厚度以立方米计算,不扣除柱、...
最新回复: 2021-07-15 
发表于2011-08-20
2359人浏览
2人跟帖
大家不知有没有做过沙滩排球场,能不能提供点相关资料,还有就是每平米造价是多少,谢谢大家
最新回复: 2021-07-14 
发表于2021-07-14
708人浏览
1人跟帖
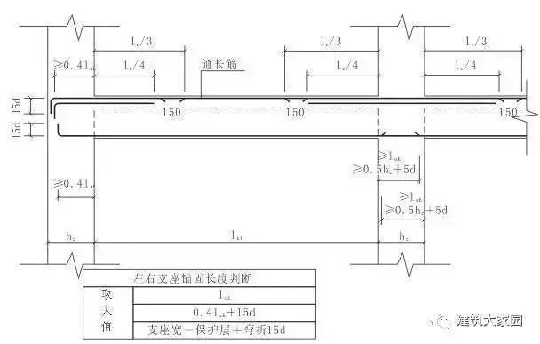
楼层框架梁纵向钢筋排布规则一、二级抗震等级楼层框架梁KL钢筋排布如图所示。(1)ln为跨度值;ln1为第一跨;ln2为第二跨。(2)有悬挑端的楼层框架梁,其悬挑部分的钢筋排布见图7.3。(3)图中hc为柱截面沿框架方向的高度。(4...
最新回复: 2021-07-14 
发表于2021-07-12
12人浏览
去现场需要带那些测量工具,如何画竣工图,求大神告知
最新回复: 2021-07-12 
发表于2020-06-23
159人浏览
1人跟帖
1
最新回复: 2021-07-12 