匿名
发表于2019-06-19
4456人浏览
1人跟帖
等级: 
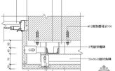
高清幕墙墙身大样图(PDF),放大变清楚。墙身剖面详图1天窗详图墙身剖面详图2墙身剖面详图3墙身剖面详图4
最新回复:wangguijie0304 2019-06-19 
匿名
发表于2019-04-24
2569人浏览
1人跟帖
等级: 
主要包括:立框结构节点图、幕墙分格示例图、示例分格立框图、竖框加工图、玻璃组合图、百页窗组合图、铝腹板组合图、铝单板组合图、滑动锁钩组合装配图、开启窗组合图、附框组框图、百页组框图、开启窗附框组框图一级加工图。玻...
最新回复:wangguijie0304 2019-04-24 
匿名
发表于2019-03-29
7858人浏览
1人跟帖
等级: 
以下是部分内容展示,详细请下载:内含铝幕顶部收口节点、铝幕墙与玻璃幕墙固定扇横向连接、石幕墙构造平面、石幕墙与弧形玻璃幕墙平交等等常用详图大样。石材幕墙与吊平顶相交剖面图铝板幕墙底部与吊顶连接女儿墙顶部花岗石干挂...
最新回复:结构666 2019-03-29 
匿名
发表于2019-03-28
2122人浏览
1人跟帖
等级: 
以下是部分内容展示,详细请下载:通风幕墙节点详图通风幕墙节点一通风幕墙节点二通风幕墙节点六通风幕墙节点三通风幕墙节点四通风幕墙节点五
最新回复:结构666 2019-03-28 
匿名
发表于2019-03-20
6310人浏览
1人跟帖
等级: 
本资料为外墙石材干挂节点图,PDF格式,共98张。外墙石材干挂节点图1室外-外墙石材干挂节点图2外墙石材干挂节点图3外墙石材干挂节点图4横梁立柱安装三维示意图横梁立柱安装示意图外墙石材干挂节点图5外墙石材干挂节点图6外墙石材...
最新回复:wangguijie0304 2019-03-20 
匿名
发表于2019-03-15
2752人浏览
1人跟帖
等级: 
以下是部分展示内容,详细请下载。玻璃幕墙外装节点详图。幕墙外装节点图八幕墙外装节点图二幕墙外装节点图六幕墙外装节点图七幕墙外装节点图三幕墙外装节点图四幕墙外装节点图五幕墙外装节点图一
最新回复:结构666 2019-03-15 
匿名
发表于2019-03-15
2038人浏览
1人跟帖
等级: 
以下是部分展示内容,详细请下载。室外幕墙结构节点详图。幕墙结构节点详图JD-01幕墙结构节点详图JD-05幕墙结构节点详图JD-07幕墙结构节点详图JD-09幕墙结构节点详图JD-10幕墙结构节点详图JD-14幕墙结构节点详图JD-16幕墙结构节...
最新回复:结构666 2019-03-15 
匿名
发表于2019-03-11
2603人浏览
1人跟帖
等级: 
本资料为PDF格式,共99页,主要包括:铝单板横剖节点图、石材异形体节点图石材与玻璃幕墙相交横剖节点隐框玻璃幕墙横剖节点竖明横隐玻璃幕墙开启窗处横剖节点通风百叶横剖节点等。铝板与玻璃幕墙相交横剖节点竖明横隐玻璃幕墙洞...
最新回复:wangguijie0304 2019-03-11 
匿名
发表于2019-03-11
2278人浏览
1人跟帖
等级: 
本资料为玻璃幕墙标准横剖节点图,共3张,主要包括:玻璃幕墙阳角横剖节点图折线玻璃幕墙标准横剖节点图直线玻璃幕墙标准横剖节点图玻璃幕墙标准横剖节点图玻璃幕墙标准横剖节点图2玻璃幕墙阳角横剖节点图
最新回复:wangguijie0304 2019-03-11 
匿名
发表于2019-03-10
2194人浏览
1人跟帖
等级: 
本资料为125系列明框幕墙节点图,PDF格式。主要包括:125系列明框幕墙标准横剖节点图125系列明框幕墙上墙标准横剖节点图125系列明框幕墙上悬窗横剖节点图90度转阳角标准横剖节点图等,共10张。125系列明框幕墙标准横剖节点图125...
最新回复:wangguijie0304 2019-03-10 
匿名
发表于2019-02-23
3649人浏览
1人跟帖
等级: 
本资料为医院干挂石材幕墙节点图、内容有:罗马柱立面、柱头大样、墙面干挂平剖节点图、钢价节点、檐口造型等。装饰柱及窗边干挂平剖节点图罗马柱四等分示意图檐口造型
最新回复:筑吴建龙 2019-02-23 
鑫鑫
发表于2019-01-16
2077人浏览
1人跟帖
等级: 
99张单元幕墙节点详图本资料共含99张单元幕墙节点大样详图,需要的可下载。单元幕墙节点1单元幕墙节点2单元幕墙节点3单元幕墙节点4单元幕墙节点5单元幕墙节点6
最新回复:wangguijie0304 2019-01-16 
匿名
发表于2018-06-12
23088人浏览
2人跟帖
等级: 
本资料为各种铝合金玻璃门窗及大样节点图,供大家参考!共31张图铝合金门窗大样图铝合金门窗大样图2铝合金门窗大样图3推拉门节点详图推拉门平开门平开窗推拉窗总图
最新回复:kodak2009 2018-12-31 
匿名
发表于2018-04-19
4418人浏览
2人跟帖
等级: 
资料简介:厂房幕墙施工图纸包括立面图、一层平面图、三层平面图、墙身剖面图、LC1大样图、70平开门2大样图、钢构连廊大样图节点、入口大门玻璃顶、幕墙顶部节点图、天光走道玻璃雨棚平面图、入口大门雨篷钢结构平面图、50系列窗...
最新回复:伟伟ww123 2018-07-06 