本小组汇集点式、明框、隐框等幕墙结构节点详图。需要的龙友可以进行下载,也可以上传幕墙结构详图的相关资料,与建筑人一起分享!
- 84653成员
- 784主题
- 1115回复
- 0热度

发表于2012-04-06
2227人浏览
1人跟帖
等级: 
JM180A明框幕墙节点详图
最新回复: 2012-04-06 
发表于2011-06-22
1700人浏览
1人跟帖
等级: 
某明框玻璃幕墙(二)纵剖节点图 共1张图纸。
最新回复: 2011-06-22 
发表于2011-06-22
3873人浏览
1人跟帖
等级: 
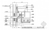
某明框玻璃幕墙(一)节点图 共1张图纸。
最新回复: 2011-06-22 
发表于2011-06-22
1722人浏览
1人跟帖
等级: 
某明框玻璃幕墙(三)纵剖节点图 共1张图纸。
最新回复: 2011-06-22 
发表于2011-06-21
1395人浏览
1人跟帖
等级: 
某明框玻璃幕墙(十三)节点图 共1张图纸。
最新回复: 2011-06-21 
发表于2011-06-21
1804人浏览
1人跟帖
等级: 
图纸包括:立面图,大样图,剖面图 共3张图纸。
最新回复: 2011-06-21 
发表于2011-06-02
2497人浏览
1人跟帖
等级: 
某明框玻璃幕墙通风节点详图 共1张图纸。
最新回复: 2011-06-02 
发表于2011-06-02
4724人浏览
1人跟帖
等级: 
某明框玻璃幕墙防火节点图 共1张图纸。
最新回复: 2011-06-02 
发表于2010-12-16
1591人浏览
1人跟帖
等级: 
120明框幕墙节点图,含对防雷设计的说明 共7张图纸。
最新回复: 2010-12-16 
发表于2010-07-19
1492人浏览
1人跟帖
等级: 
某欧式综合楼明框幕墙节点构造详图 共4张图纸。
最新回复: 2010-07-19 
发表于2010-04-12
3629人浏览
1人跟帖
等级: 
某商厦明框幕墙节点构造详图 图纸包括: 明框幕墙水平节点、明框幕墙垂直节点、全玻地弹门水平节点、全玻地弹门垂直节点、明框幕墙接边节点、明框幕墙接顶节点共6张图纸。
最新回复: 2010-04-12 
发表于2010-03-30
7046人浏览
1人跟帖
等级: 
某钢结构售楼部明框玻璃幕墙节点构造详图 共两张图纸。
最新回复: 2010-03-30 
发表于2009-12-15
1337人浏览
1人跟帖
等级: 
某商城明框幕墙节点构造详图 图纸包括: 明框幕墙水平节点、明框幕墙垂直节点、全玻地弹门水平节点、全玻地弹门垂直节点、明框幕墙接边节点、明框幕墙接顶节点共6张图纸。
最新回复: 2009-12-15 
发表于2009-09-14
1231人浏览
1人跟帖
等级: 
某明框幕墙节点构造详图 共14张图纸
最新回复: 2009-09-14 
发表于2009-08-07
5924人浏览
1人跟帖
等级: 
某明框玻璃幕墙连接立体节点构造详图 共1张图纸。
最新回复: 2009-08-07 
发表于2009-06-30
1290人浏览
1人跟帖
等级: 
某明框玻璃幕墙节点构造详图(十三),共1张图纸
最新回复: 2009-06-30 
发表于2009-06-30
2143人浏览
1人跟帖
等级: 
某明框玻璃幕墙节点构造详图(十四)(女儿墙收边图),共1张图纸
最新回复: 2009-06-30 
发表于2009-06-29
1524人浏览
1人跟帖
等级: 
某明框玻璃幕墙节点构造详图(五),共1张图纸
最新回复: 2009-06-29 
发表于2009-06-29
1364人浏览
1人跟帖
等级: 
某明框玻璃幕墙节点构造详图(六),共1张图纸
最新回复: 2009-06-29 
发表于2009-06-29
1251人浏览
1人跟帖
等级: 
某明框玻璃幕墙节点构造详图(八)(纵剖图),共1张图纸
最新回复: 2009-06-29 