混凝土节点详图_结构设计图片
本小组汇集图集、预应力、平法构造等混凝土节点详图。需要的龙友可以进行下载,也可以上传混凝土结构详图的相关资料,与建筑人一起分享!
  • 87887成员
  • 7556主题
  • 9477回复
  • 0热度
  • 0周热度
  • 0月热度
  • 0总热度

了解更多

检索到88条内容

0

匿名 发表于2019-10-10  1213人浏览  2人跟帖   等级:   来自:混凝土节点详图  

工程概况:抗震设防烈度为6度;1.抗震支架设计范围: 1.1.给水排水: (1)室内给水、热水以及消防管道管径大于或等于DN65的管道; (2)泵房内的管道。 1.2.暖通空调: (1)锅炉房、制冷机房、热交换站内的管道; (2)矩形截面面积大...

0

匿名 发表于2019-09-12  734人浏览  1人跟帖   等级:   来自:混凝土节点详图  

说明:一、本设计图按需方提供的水泵资料设计。二、型钢材质为A3,焊条为T422,焊接需满焊,并磨平,无凹凸现象。三、混凝土强度不低于C20。四、地基结构要求水平,为防止积水对减振器带来影响,对安装减振器之地基结构需抬高50...

0

匿名 发表于2019-07-10  2154人浏览  1人跟帖   等级:   来自:混凝土节点详图  

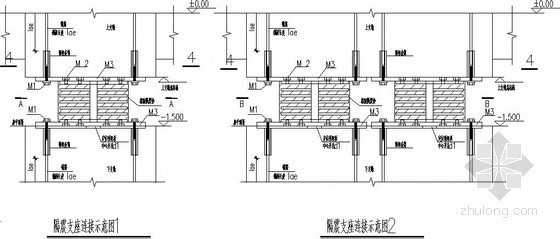
工程名称:专 业: 结构(隔震)编制时间: 2016.05.橡胶隔震支座施工图(2016),主要包括:隔震图纸目录,隔震设计说明,栋隔震支墩(支座)平面布置图 等。共3张。隔震支座连接示意图支墩纵筋柱顶锚固示意双隔震支座连接示意图双...

0

花水映峰 发表于2009-05-19  7516人浏览  5人跟帖   等级:   来自:混凝土节点详图  

[川]农村居住建筑抗震构造图集砖砌体结构CAD图集   图纸包括:   说明、砖墙石基础断面、砖墙混凝土、毛石混凝土基础断面、预制板缝间设圈梁、9度时现浇板中设加强钢筋、构造柱示意图及选用表、8、9度墙构造柱与墙体连接、空...

0

花水映峰 发表于2009-05-21  15730人浏览  6人跟帖   等级:   来自:混凝土节点详图  

[川]农村居住建筑抗震构造图集-木结构建筑CAD图集   图纸包括:   穿斗木构架典型立面、木柱木屋架典型立面、康房、木柱木梁典型立面、穿斗木结构屋面支撑平面布置图、纵向木剪刀撑大样图、纵向木斜撑大样图、穿斗木结构屋面...

0

yhb43142009 发表于2009-06-04  4665人浏览  3人跟帖   等级:   来自:混凝土节点详图  

[川]08G08某木屋架、木檩节点构造详图,共1张图纸

0

花水映峰 发表于2009-05-19  4714人浏览  2人跟帖   等级:   来自:混凝土节点详图  

[川]农村居住建筑抗震构造图集-混凝土小型空心砌块结构建筑CAD图集   图纸包括:   说明、基础形式、空心板屋盖节点详图、构造柱详图、圈梁详图、芯柱详图、二层外推纵墙位置底层墙体构造柱及芯柱、二层外推纵墙房屋二层楼盖...

0

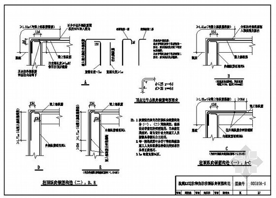
biazhu010 发表于2013-10-12  5439人浏览  2人跟帖   等级:   来自:混凝土节点详图  

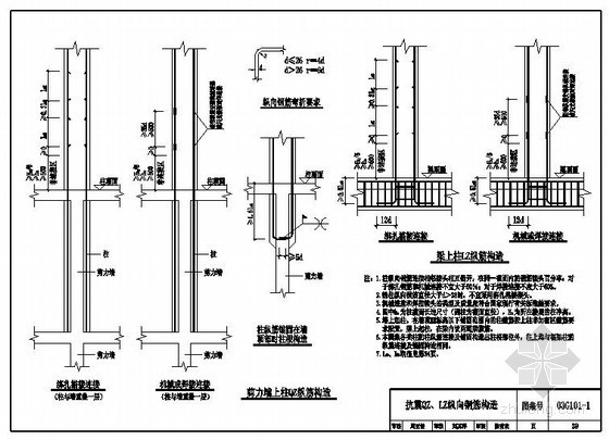
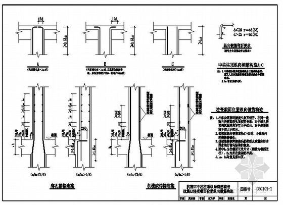
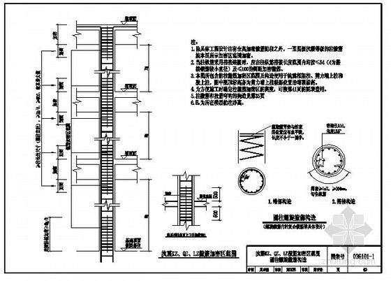
包括:T型、L型,一字型墙体抗震措施节点共1张图纸,9个节点。   

0

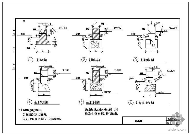
花水映峰 发表于2009-05-19  5173人浏览  2人跟帖   等级:   来自:混凝土节点详图  

[川]农村居住建筑抗震构造图集-生土墙建筑、石结构建筑CAD图集   图纸包括:   说明、生土墙基础断面、生土墙构造做法、石结构构造做法共8张图纸。   

0

yhb43142009 发表于2009-06-05  7583人浏览  2人跟帖   等级:   来自:混凝土节点详图  

[川]08G08某砖墙混凝土、毛石混凝土基础断面节点构造详图(一),共1张图纸

0

biazhu111 发表于2013-01-07  6016人浏览  1人跟帖   等级:   来自:混凝土节点详图  

橡胶隔震支座设计说明、隔震支座连接示意图、锚筋与预埋钢板穿孔塞焊、套筒连接大样、钢筋锚固端尾部做法共1张图纸。   

0

匿名 发表于2012-09-27  3321人浏览  1人跟帖   等级:   来自:混凝土节点详图  

阻尼器安装大样、混凝土墙段钢筋构造共1张图纸

0

flyegg111 发表于2011-12-23  3400人浏览  1人跟帖   等级:   来自:混凝土节点详图  

有翼墙、转角墙、暗柱 、约束端柱。

0

flyegg111 发表于2011-12-13  6714人浏览  1人跟帖   等级:   来自:混凝土节点详图  

共1张图纸。   

0

flyegg111 发表于2011-12-13  5701人浏览  1人跟帖   等级:   来自:混凝土节点详图  

共1张图纸。   

0

flyegg111 发表于2011-12-13  2836人浏览  1人跟帖   等级:   来自:混凝土节点详图  

共1张图纸。

0

flyegg111 发表于2011-11-28  4135人浏览  1人跟帖   等级:   来自:混凝土节点详图  

共1张图纸。

0

flyegg111 发表于2011-11-28  2888人浏览  1人跟帖   等级:   来自:混凝土节点详图  

共1张图纸。

0

flyegg111 发表于2011-05-17  2547人浏览  1人跟帖   等级:   来自:混凝土节点详图  

某避雷柱节点构造详图   共1张图纸。

0

xx69hh 发表于2009-12-21  2547人浏览  1人跟帖   等级:   来自:混凝土节点详图  

某抗震示范亭节点构造详图   图纸包括:示范节点立面图、基础示范节点平面图共1张图纸。