本小组汇集图集、预应力、平法构造等混凝土节点详图。需要的龙友可以进行下载,也可以上传混凝土结构详图的相关资料,与建筑人一起分享!
- 87887成员
- 7556主题
- 9477回复
- 0热度

钢筋混凝知名景观公司防墙,外墙,侧壁混凝土强度等级均为C30.
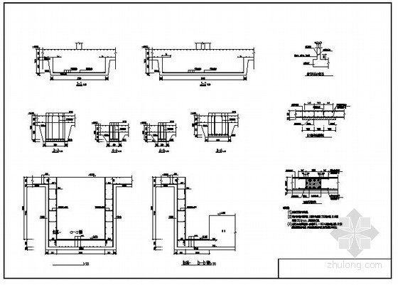
桩台边集水井大样、梁边集水井大样、壁墙边集水井大样、承台中集水井大样、板中集水井大样共1张图纸。
楼梯采用C30混凝土现浇,含坡道平面图、非机动车坡道剖面、楼梯平面图剖面图。
自行车坡道地下平面图、剖面图、节点构造详图共1张图纸。
井盖布置图、井盖配筋图、底板配筋图、平面布置图共1张图纸。