岩土工程节点详图、大样图,包括桩基础、地基处理、基坑支护结构、降水、边坡支护等,欢迎下载和上传相关资料。
- 29455成员
- 843主题
- 1378回复
- 0热度

发表于2016-05-12
4772人浏览
2人跟帖
等级: 
抗滑桩边坡支护设计构造图,抗滑桩截面尺寸200×150,桩嵌入基岩(中风化)的深度达到桩长的1/3以上。 含:总体布置设计图、抗滑桩设计图、抗滑桩及挡墙工程数量汇总表 5张,编制于2015年。
最新回复: 2020-03-23 
发表于2013-05-16
2753人浏览
4人跟帖
等级: 
包含CAD图: 支护分段立面示意图 锚杆结构大样图 Ⅰ-Ⅰ断面图 泄水孔布置图 泄水孔Ⅱ-Ⅱ断面 截水沟大样图 挂网钢筋大样图 网筋大样图 1-1 剖面图 2-2 剖面图 3-3 剖面图 4-4 ...
最新回复: 2019-11-04 
发表于2012-10-22
14632人浏览
4人跟帖
等级: 
挂网喷射混凝土剖面示意图 挂网喷射混凝土平面示意图 挂网喷射混凝土锚杆剖面示意图 工程量计算表
最新回复: 2019-05-09 
发表于2015-11-18
6678人浏览
4人跟帖
等级: 
预应力锚索挡墙大样图,6张,编制于2010年。
最新回复: 2019-02-27 
发表于2013-07-05
4876人浏览
5人跟帖
等级: 
包含CAD图: 仰斜路肩型重力式挡土墙 挡土墙参数表 挡土墙立面图 编制于2012年 共1张
最新回复: 2018-11-12 
发表于2013-05-13
15918人浏览
8人跟帖
等级: 
包含CAD图: 护坡立面示意图 护坡断面示意图 骨架及锚杆布置示意图 钢筋网、骨架、钢钎、土层大样图 编制于2012年 共1张
最新回复: 2017-10-13 
发表于2014-08-20
3246人浏览
3人跟帖
等级: 
微型桩框架梁边坡支护大样图,共4张。
最新回复: 2017-10-13 
发表于2016-01-20
3006人浏览
2人跟帖
等级: 
1500×2000抗滑桩结构大样图,1张
最新回复: 2017-10-11 
发表于2016-01-20
2273人浏览
2人跟帖
等级: 
2000×2500抗滑桩结构大样图,1张,编制于2010年。
最新回复: 2017-10-11 
发表于2013-07-08
4208人浏览
4人跟帖
等级: 
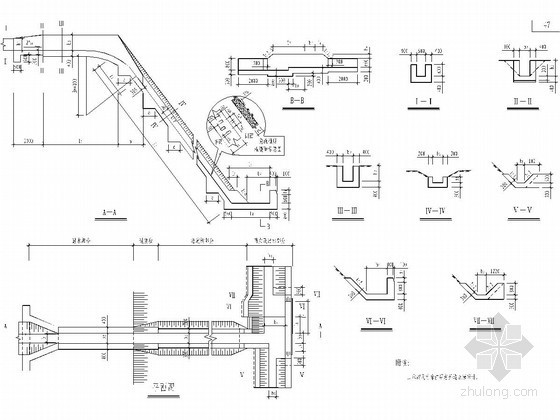
包含CAD图: 截水沟立基施工图 急流槽大样图 盖板渠大样图 编制于2008年 共1张
最新回复: 2017-10-11 
发表于2016-01-20
5546人浏览
2人跟帖
等级: 
板肋式锚杆挡墙立柱间距3m,锚杆纵向间距2.5m,挡板厚300mm,现浇。 1张,编制于2010年。
最新回复: 2017-04-25 
发表于2015-04-20
7549人浏览
2人跟帖
等级: 
抗滑桩为方桩,尺寸1.5米×2米,包含抗滑桩配筋图及冠梁配筋图,共2张。
最新回复: 2016-09-18 
发表于2016-01-28
14755人浏览
1人跟帖
等级: 
吊沟及截水排水沟大样图,4张,编制于2013年。
最新回复: 2016-01-28 
发表于2015-11-18
5010人浏览
1人跟帖
等级: 
桩板式挡土墙构造图,2张。
最新回复: 2015-11-18 
发表于2015-10-22
1544人浏览
1人跟帖
等级: 
TECCO主动防护系统布置安装标准图,1页,编制于2010年。
最新回复: 2015-10-22 
发表于2015-10-22
1469人浏览
1人跟帖
等级: 
GSS2A/GSR2A主动防护系统布置安装标准图,1张,编制于2010年。
最新回复: 2015-10-22 
发表于2015-10-22
1626人浏览
1人跟帖
等级: 
AXI型被动防护系统施工安装方法 AXI-150型(150kJ)被动防护系统布置安装标准图 AXI-300型(300kJ)被动防护系统布置安装标准图 3张,编制于2010年。
最新回复: 2015-10-22 
发表于2015-10-22
1485人浏览
1人跟帖
等级: 
GQS/GQR主动防护系统布置安装标准图,1张,编制于2010年。
最新回复: 2015-10-22 
发表于2015-10-22
2005人浏览
1人跟帖
等级: 
RXI型被动防护系统施工安装方法 RXI-2000(2000kJ)型被动防护系统布置安装标准图 RXI-250/500型被动防护系统布置安装标准图 RXI-750/1000/1500型被动防护系统布置安装标准图 4张,编制于2010年。
最新回复: 2015-10-22 
发表于2015-10-22
1257人浏览
1人跟帖
等级: 
TECCO主动防护系统布置安装标准图,1页,编制于2010年。
最新回复: 2015-10-22 