匿名
发表于2016-04-14
3394人浏览
6人跟帖
等级: 
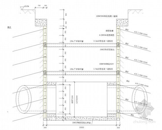
本工程基坑周长约1000米,开挖面积63000平米,基坑开挖深度15.95米。基坑临近既有轻轨线路,基坑侧壁安全等级为一级。本资料为基坑支护方案设计,包括三个方案全套图纸。 【总体方案】 本方案采用顺作法施工,支护方式采...
最新回复:12059573 2021-04-12 
匿名
发表于2020-09-14
1135人浏览
3人跟帖
等级: 
[贵州]小学新建项目边坡支护设计_施工图设计阶段,编制于2018年。图文并茂,值得参考。工程概况:对该场地平场开挖后形成的边坡进行岩土工程勘察及施工图设计。该建设项目拟建建筑±0.00标高为837.0m—842.0m,边坡范围内学生宿...
最新回复:龙友15401919 2021-03-11 
crazy_light
发表于2016-01-04
7905人浏览
18人跟帖
等级: 
本工程包括2幢5层教学综合楼、行政楼,设1层地下室。基坑开挖深度为5.45m~6.95m,基坑面积约6000m2,基坑形状大致呈凸字形。基坑支护结构采用放坡+拉森钢板桩+一道钢管水平支撑的支护结构形式同时结合降水。 16张,编制于20...
最新回复:aikoncxy 2021-02-01 
匿名
发表于2016-02-19
3454人浏览
3人跟帖
等级: 
拟建建筑物地上11~13层,地下2层,框架剪力墙结构,基坑周长约180米,基坑开挖深度约6米。基坑采用高压旋喷桩止水帷幕+钢管桩+锚杆喷射混凝土结合的复合支护方案,基坑排水采用坑内设置集水井和排水沟明排。 10张,编制于20...
最新回复:清歌缱绻 2020-12-15 
wangzhen15
发表于2014-03-28
6991人浏览
11人跟帖
等级: 
本施工图为箱涵基坑支护结构设计。基坑开挖深度5.9米/6.9米/10.4米,基坑支护安全等级为二级。采用拉森钢板桩结合一道型钢支撑支护体系及SMW工法围护。采用现行最新规范编制,含设计计算书8页;CAD施工图21张。 【编制依据】...
最新回复:HNSJY312 2020-12-07 
匿名
发表于2020-12-03
243人浏览
等级: 
本资料为[青岛]医院门急诊综合楼基坑支护图纸,可供参考概况:拟建工程主要1栋多层门急诊综合楼含地下车库组成。建筑设计使用年限50年。门急诊综合楼拟建建筑层高4F/-2F,建筑高度14.70m,框架结构,设计正负零高程为469.40m,负...
最新回复:匿名 2020-11-27 
匿名
发表于2020-11-12
262人浏览
1人跟帖
等级: 
本资料为复线隧道工程岩土勘察报告(初步+详细+水文专项),可供参考概况:隧道线路设计里程K0+900~K5+560,包括一座穿山隧道和1座组合式立交。其中,左K1+130~左K5+183、右线设计里程K1+125~K5+200,全长约4075m,双洞,为分...
最新回复:山川志 2020-11-18 
匿名
发表于2020-11-04
224人浏览
1人跟帖
等级: 
本资料为[广州]地下室长螺旋钻孔压灌桩图纸及表格,可供参考概况:本工程采用长螺旋钻孔压灌桩,桩基设计等级为丙级。桩径D为300mm等共13种。桩径长H约1m。根据地质资料,桩端持力层为强全风化花岗岩,持力层端阻力标准值qpk100...
最新回复:山川志 2020-11-05 
匿名
发表于2020-07-06
443人浏览
2人跟帖
等级: 
本资料为[重庆]基地基坑边坡结构CAD施工图,编制于2018年概况:AB段:该段边坡分布于场地东侧,坡向271°,该边坡主要为岩土质混合边坡,上部土质边坡高度4.00m~7.60m,边坡岩土类别主要为素填土,岩土界面平缓,土体整体稳定,下部岩质...
最新回复:zlhandy 2020-11-03 
匿名
发表于2015-12-31
11369人浏览
10人跟帖
等级: 
公路边坡存在两段滑坡段需治理。一号段边坡高约50米,坡度50~80°,坡体植被比较发育,多为杂草、灌木。二号段边坡高约60米,山地的自然斜坡坡度一般为25~45°,人工开挖边坡50~80°,坡体植被比较发育,多为松、灌木。 ...
最新回复:min820803 2020-10-29 
匿名
发表于2020-02-19
559人浏览
1人跟帖
等级: 
本资料为高层办公楼地基基础图纸及地质勘察报告,共20页概况:拟建居住及公共服务设施工程规划建设用地面积191003m2,居住用地面积108029m2,配套公建用地面积53551m2;总建筑面积441397m2,建筑高度最高77.0m,建筑最高层数29层...
最新回复:yxrmine 2020-10-02 
匿名
发表于2020-09-15
620人浏览
1人跟帖
等级: 
[广州]医院整体扩建基坑支护施工图2019,CAD+PDF格式。主要包括:基坑支护设计说明、基坑周边环境、内支撑平面布置图、内支撑钢构柱定位图、连续墙单元槽划分平面图、支护区段剖面图、基坑支护大样图、基坑支护监测平面图等。工...
最新回复:月光下的笑脸 2020-09-15 
匿名
发表于2020-09-15
928人浏览
1人跟帖
等级: 
[遵义]边坡支护工程施工图_格构锚索+格构锚杆,CAD 格式,2016年编制。主要包括:边坡支护工程平面图、边坡支护工程立面图、边坡支护工程断面图、锚索大样图、锚杆大样图、格构锚杆梁大样图、截、排水沟泄水孔大样图、竖向排水大...
最新回复:月光下的笑脸 2020-09-15 
匿名
发表于2020-09-14
981人浏览
1人跟帖
等级: 
地基强夯工程施工图,编制于2018年,CAD格式。主要包括:地基强夯处理范围平面布置图强夯区域坐标平面图第一遍点夯夯布置图第二、三遍点夯夯点布置图第一遍满夯夯点布置图第二遍满夯夯点布置图地基强夯处理范围平面布置图第一遍...
最新回复:月光下的笑脸 2020-09-14 