luqiaohouqi
发表于2013-08-30
16808人浏览
5人跟帖
等级: 
翼墙式隧道门(仰坡1:1)(正面、立面、剖面、尺寸及主要工程数量表) 翼墙式隧道门(仰坡1:1.25)(正面、立面、剖面、尺寸及主要工程数量表) 附注: 1、本图尺寸除注明者外其余均以厘米计。 2、本图适用于...
最新回复:qfdsfd 2020-12-28 
cjhvip2010
发表于2010-11-29
3045人浏览
3人跟帖
等级: 
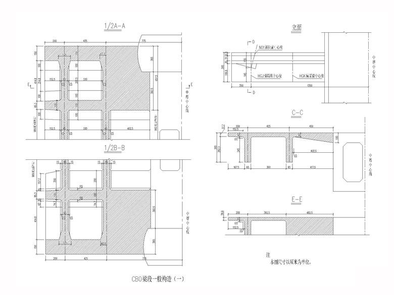
梁体构造: 一联(32+48+32)m预应力混凝土连续箱梁,标准箱梁总长113.5m。箱梁采用单箱单室截面,箱梁截面中心梁高3.334m,顶宽12.0m,底宽5.4m,两侧悬臂长2.65m。箱梁顶板厚度0.30-0.45m,悬臂根部厚度为0.65m,底板厚0.3...
最新回复:何浪加油 2020-12-16 
匿名
发表于2020-12-03
211人浏览
1人跟帖
等级: 
本资料为:[福建]水库进库双向两车道道路施工设计图,编制于2018年,CAD图纸。主要内容: 为了便于管网的管理和维修,在管道起点、终点、分叉处以及穿越河道、公路段设置阀门井。阀门井参照国标图集07MS101-2-14“地面操作圆形砖...
最新回复:工程郎123 2020-12-03 
匿名
发表于2020-11-24
450人浏览
1人跟帖
等级: 
本资料为:[重庆]校区景观桥结构施工设计图,编制于2016年,CAD格式。工程概况: 考虑桥面单辆消防车通行时的荷载:消防车重35t,动力系数为1.5,按四个轮压换算成四个集中力,即132kN,以节点荷载或单元集中荷载形式施加于桥面...
最新回复:工程郎123 2020-11-24 
匿名
发表于2020-11-24
124人浏览
1人跟帖
等级: 
本资料为:[重庆]双向六车道道路施工节点设计图,编制于2018年,CAD图纸格式。工程概况: 道路设计等级为城市主干路,设计速度50Km/h,全线含立交2个,隧道1个,主线全长2340m。为保证整体设计的一致性,本册设计说明对全线设计...
最新回复:工程郎123 2020-11-24 
匿名
发表于2020-11-18
632人浏览
1人跟帖
等级: 
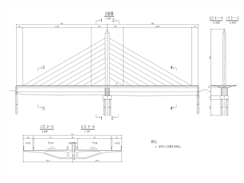
本资料为:25套斜拉桥施工设计节点祥图合集,CAD格式。主要内容:【55+90+55米连续梁 斜拉桥】【公路桥】【主航道桥(73+132+420+132+73)米 主跨420米斜拉桥加劲钢箱梁】【铁路桥】【主跨76米 全长98.5米 总宽7.2米】【公路桥】【...
最新回复:工程郎123 2020-11-18 
匿名
发表于2020-11-18
238人浏览
1人跟帖
等级: 
本资料为:[辽宁] 非对称独塔混凝土斜拉桥节点设计图,CAD格式。工程概况:1.设计荷载:人群荷载:3.5KN/m22.桥面宽度:桥全宽:7.2m 人行道宽:6m,拉索区2x0.6m3. 基本风压:700Pa4.地震烈度:7度5.桥面标高:48.08m.......相...
最新回复:工程郎123 2020-11-18 
匿名
发表于2020-11-18
274人浏览
1人跟帖
等级: 
本资料为:[江苏]独塔中央索面斜拉桥设计节点图,CAD格式。工程概况: 桥梁总长596.2m,总宽度为34m,横断面为4m中央分隔带+2×12.5m车行道+2×2.5m人行道。主桥为142+110+2×45m独塔中央索面斜拉桥,北引桥为6×25m连续箱梁桥,...
最新回复:工程郎123 2020-11-18 
匿名
发表于2020-11-18
131人浏览
1人跟帖
等级: 
本资料为:[辽宁]城市公路预应力半漂浮体系斜拉桥设计图,CAD格式。工程概况: 本工程总长1341.24米,由主桥、引桥、引道、及接线道路四部分组成。本施工图包括主桥、引桥、引道三部分,全长1090m,其中主桥长340m,东、西引桥全...
最新回复:工程郎123 2020-11-18 
匿名
发表于2020-11-18
229人浏览
1人跟帖
等级: 
本资料为:[山东]城市公路双柱式索塔斜拉桥施工设计图,CAD格式。工程概况: 主桥为独塔双索面双跨式预应力混凝土斜拉桥,半漂浮体系,跨径组合90m+90m,桥面总宽31m;引桥为预应力混凝土连续梁,跨径组合为3x30m,桥面总宽28m。...
最新回复:工程郎123 2020-11-18 
匿名
发表于2020-11-18
203人浏览
1人跟帖
等级: 
本资料为:[山东]高速公里双柱式索塔斜拉桥施工设计图,CAD格式。工程概况:1、采用双柱式索塔,桥面以上不设横梁。上塔柱采用等截面圆端形截面,下塔柱为了防凌,逐渐过渡成圆形截面。塔柱施工不需要横向水平支撑,如果施工需要...
最新回复:工程郎123 2020-11-18 
匿名
发表于2020-11-18
409人浏览
1人跟帖
等级: 
本资料为:[吉林]城市二级公路两跨独塔斜拉桥设计图,CAD格式。工程概况:本桥技术标准按二级公路和城市主干道综合考虑拟定为:1)道路等级:二级公路,城市主干道Ⅱ2)设计行车速度:40km/h2)设计荷载等级:城-A级,人群荷载按...
最新回复:工程郎123 2020-11-18 
匿名
发表于2020-11-18
142人浏览
1人跟帖
等级: 
本资料为:[江苏]分离式立交预应力斜拉桥设计节点图,CAD图纸。工程概况: 原设计桥型为(20+2×25+20)m预应力混凝土连续箱梁,根据省高速公路建设指挥部意见,现变更为(20+50+31)m的预应力混凝土斜拉桥—连续梁协作体系桥梁...
最新回复:工程郎123 2020-11-18 
匿名
发表于2020-11-18
266人浏览
等级: 
本资料为:[浙江]二车道公路斜拉桥施工设计节点图,CAD图纸格式。工程概况: 上部结构:上部结构采用16米、25米跨径的先张法预应力砼简支空心板,16米跨径的梁板高1750px,25米跨径的梁板高2500px,中板预制宽均为2475px,边板预...
最新回复:匿名 2020-11-18 
匿名
发表于2020-11-18
121人浏览
1人跟帖
等级: 
本资料为:【甘肃]城市跨河公路斜拉桥设计节点详图,CAD图纸,含设计说明。工程概况:主 要技 术 标 准:(1)道路等级 :城市主干道 ,双向六车道(2)计算行车速度 :50km/h(3)荷载等级 :城一A级(4)人群荷载 :3.5Kpa (5)坡度 ...
最新回复:工程郎123 2020-11-18 
匿名
发表于2020-11-09
840人浏览
1人跟帖
等级: 
本资料为:道路边坡绿化资料通用CAD图,共8篇,CAD格式。主要内容:预制砼框格填土绿化、造型框格、框架内码植生袋、挖坑植树、特殊路基、挂双网。.......相关图片:框架内码砌预制框格菱形砼框格填土绿化三维植被网设计
最新回复:工程郎123 2020-11-09 
匿名
发表于2020-11-09
1410人浏览
1人跟帖
等级: 
本资料为:公路钢筋混凝土挡土墙设计图,共3篇,CAD格式。主要内容:钢筋混凝土挡土墙、钢筋混凝土挡土墙详图、挡土墙设计图集。......相关图片:钢筋混凝土挡土墙详图挡土墙施工图钢筋混凝土挡土墙
最新回复:工程郎123 2020-11-09 
匿名
发表于2020-11-04
204人浏览
1人跟帖
等级: 
本资料为:[重庆]公路隧道照明设计变更节点详图,编制于2018年,CAD格式。工程概况: 工程线路全长1581.585m,沿线设有一座桥梁,长147m;设置一座下穿通道,通道共分上下两层,上层长122m,下层长221.973m。道路交叉形式调整为...
最新回复:工程郎123 2020-11-04 