节点详图,公路铁路、桥梁隧道、地铁轨交、市政工程等的分部分项工程节点详图设计资料,欢迎路桥及市政同行们下载和上传相关资料。
- 137721成员
- 5642主题
- 7054回复
- 0热度

发表于2008-06-12
4425人浏览
3人跟帖
等级: 
本图集是在原的基础上,根据市政基础设施建设的飞速发展要求,配合近年来新颁布实施的,,,及国家法定计量单位的标准使用要求,组织进行修编设计的. 本通用图吸收了建设管理.施工,设计多方面的建设性意见,在原通用图的基础上按现...
最新回复: 2017-03-16 
发表于2015-11-20
7426人浏览
3人跟帖
等级: 
本图纸为市政道路人行道树池大样图,共1张。
最新回复: 2017-03-13 
发表于2009-03-16
3888人浏览
2人跟帖
等级: 
城市道路综合管沟详图,包括盖板及检查口处配筋图。
最新回复: 2017-03-01 
发表于2005-11-18
7587人浏览
2人跟帖
等级: 
某人行吊桥平面图,立面图。
最新回复: 2017-01-20 
发表于2015-10-20
4064人浏览
2人跟帖
等级: 
本图纸为市政道路排水工程检查井井座结构图,共2张,编制于2015年。
最新回复: 2017-01-15 
发表于2006-02-22
11043人浏览
2人跟帖
等级: 
城市道路路灯设计图:一次、二次接线图.箱变基础、接地.平面图.标准横断.
最新回复: 2017-01-15 
发表于2015-11-20
3791人浏览
2人跟帖
等级: 
本图纸为市政道路雨水口周围路面加固图,共1张。
最新回复: 2017-01-15 
发表于2014-01-16
35463人浏览
11人跟帖
等级: 
指引残疾者向前行走的盲道应为条形的行进盲道;在行进盲道的起点、终点及拐弯处应设圆点形的提示盲道; 盲道应连续、中途不得有电线杆、拉线、树木等障碍物; 盲道宜避开井盖铺设; 人行道盲道砖颜色为深灰色,其砼强...
最新回复: 2016-10-26 
发表于2005-10-11
5778人浏览
3人跟帖
等级: 
木栈道.观景桥施工图.
最新回复: 2016-09-28 
发表于2008-03-07
18242人浏览
2人跟帖
等级: 
车行道路面结构 非机动车道路面结构 人行道结构 机动车道侧石安装示意图 中央绿化带侧石大样图 机非隔离带侧石断面图 无树坑人行道及非机动车道侧石安装示意图 平侧石大样图 人行道侧石大样图 ...
最新回复: 2016-09-08 
发表于2015-10-20
3961人浏览
2人跟帖
等级: 
本图纸为市政道路排水工程管道基础图,共2张,编制于2015年。
最新回复: 2016-08-16 
发表于2005-10-21
3564人浏览
2人跟帖
等级: 
校园钢结构天桥图纸,平面图,剖面图,详图,共十张。
最新回复: 2016-08-04 
发表于2014-01-16
5129人浏览
2人跟帖
等级: 
道路抛物线型路拱示意图 路拱曲线计算图 人行道结构 车行道路面结构及路缘石设计图 …… 共计1张
最新回复: 2016-08-03 
发表于2016-07-28
3278人浏览
1人跟帖
等级: 
本资料为轨道交通工程排水管悬吊架详图,共1张。
最新回复: 2016-07-28 
发表于2013-12-13
5835人浏览
2人跟帖
等级: 
1、本图比例1:100,图中尺寸以cm计。 2、普通挖方路段在边沟侧进行培耕植土,并在其中交替种植山茶和金边黄杨,种植密度为1棵/3m,并采用山茶和金边黄杨采用H≥50、P≥40的规格;阶梯式挡墙中间平台种植紫薇,种植密度为1株...
最新回复: 2016-07-19 
发表于2011-11-10
3130人浏览
3人跟帖
等级: 
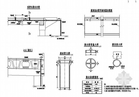
高架桥通用构造桥面排水构造节点详图
最新回复: 2016-05-11 
发表于2014-01-13
21268人浏览
2人跟帖
等级: 
当井深超过1m时,超深部分在长度方向设两轮砌块,即壁厚400。 底板采用C30混凝土现浇。 雨水口的加固建设方可根据实际情况,在规范允许范围内作适当调整。 …… 包括: 平面图 剖面图 雨水口周边加...
最新回复: 2015-12-31 
发表于2011-11-23
7630人浏览
2人跟帖
等级: 
采用的主要技术标准: 道路等级:城市Ⅱ级支路; 沥青砼路面设计年限:15年; 荷载标准:路面轴载标准BZZ-100KN,地下构筑物采用公路-Ⅱ级汽车荷载; 道路横坡度:1.5%(双向),人行道横坡:2%(向内); 抗震...
最新回复: 2015-12-30 
发表于2015-11-20
6503人浏览
1人跟帖
等级: 
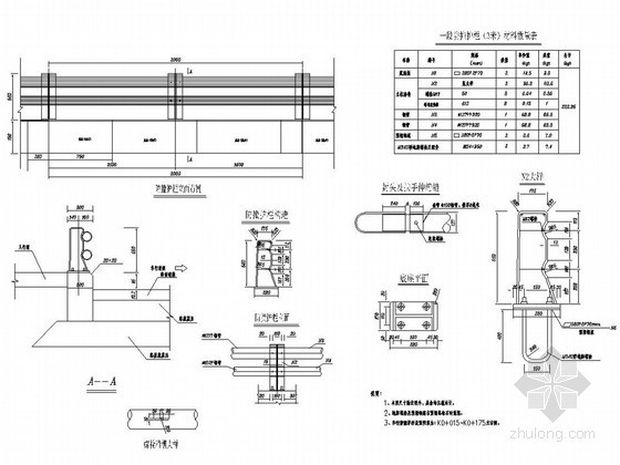
本图纸为市政道路车行防撞护栏大样图,共1张。
最新回复: 2015-11-20 
发表于2015-10-20
7447人浏览
1人跟帖
等级: 
本图纸为市政道路人行道坡道无障碍设计图,共1张,编制于2015年。
最新回复: 2015-10-20 