室内节点详图是构成大样图的重要条件,有了好的节点详图才能保证大样图的质量,本小组内包含了各种节点详图的资料,仅供参考。
- 203412成员
- 10510主题
- 13111回复
- 0热度

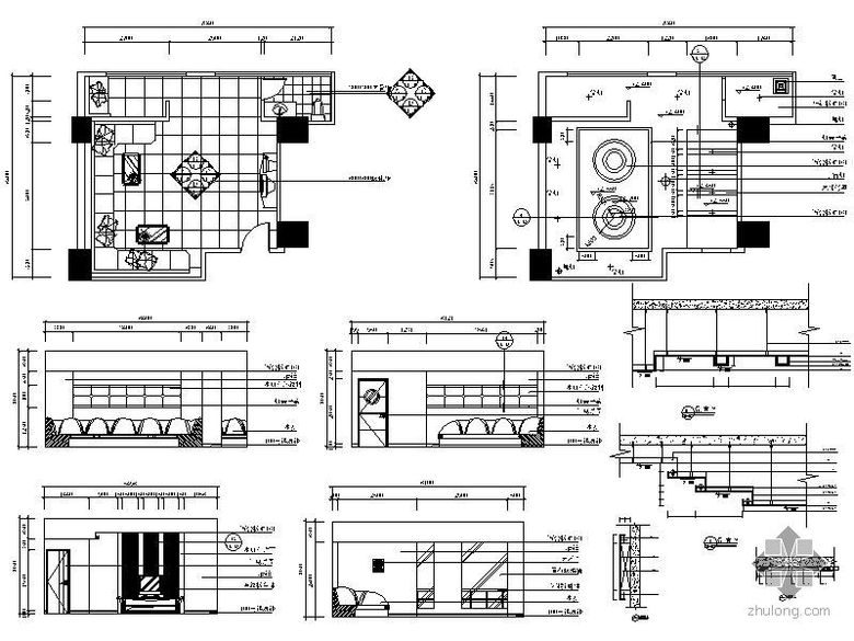
KTV包房平面图 包括:平面布置图、顶面布置图、插座图、顶面尺寸图
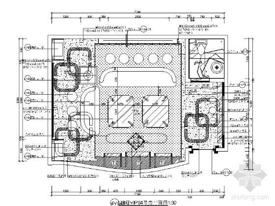
KTV俱乐部VIP房平面图 平面图、顶面图、尺寸图
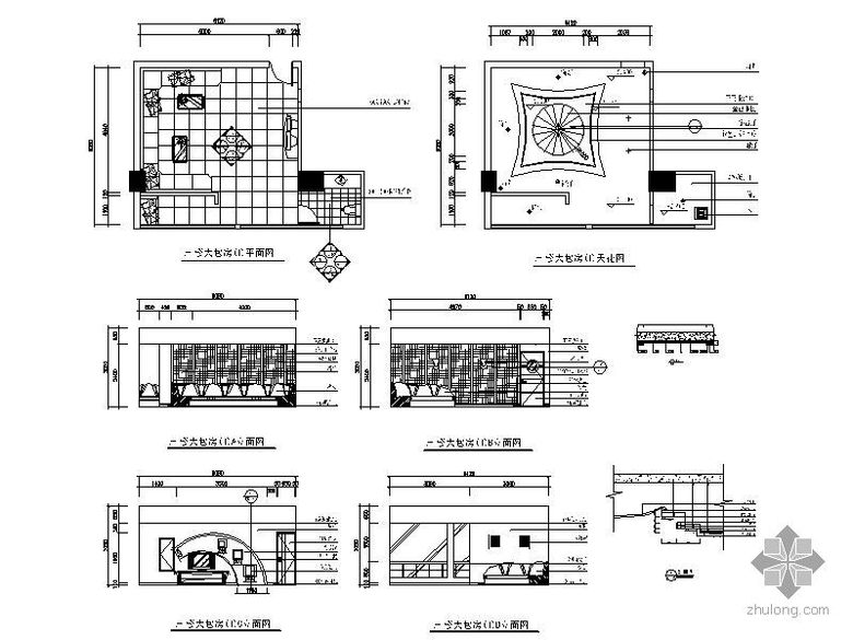
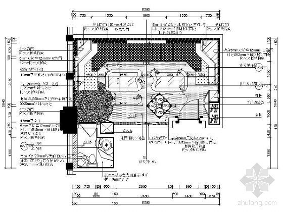
KTV包房详图Ⅰ 平面、顶面、立面、吊顶剖面、墙身剖面
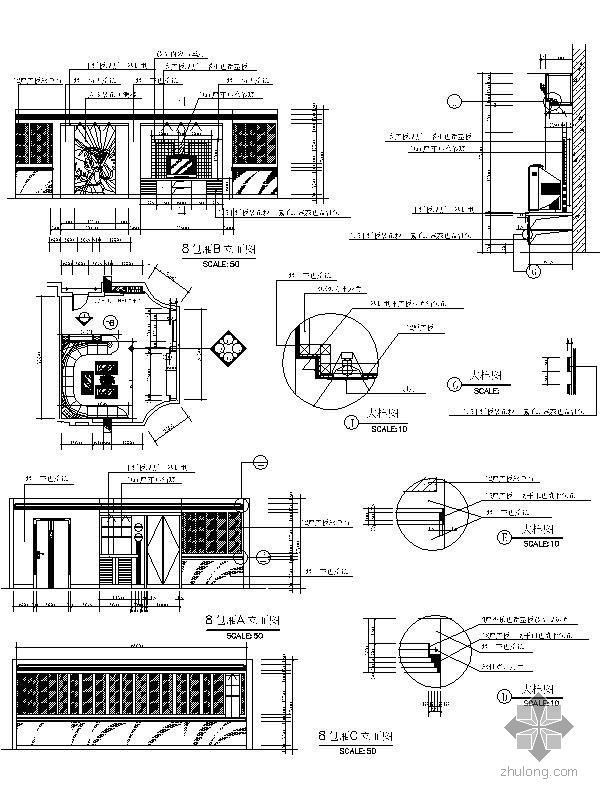
KTV包房主装饰墙详图:立面及装饰剖面 主材:镜面不锈钢蚀玫瑰花图案、砂光不锈钢、斑马纹面板
KTV包房电视墙详图 主材:壁纸、红影木线条、暗藏走珠灯、金布、喷幻彩漆、螺纹金漆