室内节点详图是构成大样图的重要条件,有了好的节点详图才能保证大样图的质量,本小组内包含了各种节点详图的资料,仅供参考。
- 203412成员
- 10510主题
- 13111回复
- 0热度

发表于2010-10-13
1447人浏览
1人跟帖
等级: 
KTV小包厢详图
最新回复: 2010-10-13 
发表于2010-05-27
1200人浏览
2人跟帖
等级: 
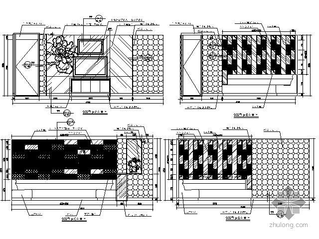
夜总会KTV房立面详图Ⅱ
最新回复: 2010-09-19 
发表于2010-05-25
1510人浏览
2人跟帖
等级: 
KTV包房四款角几详图
最新回复: 2010-09-19 
发表于2010-08-12
2519人浏览
1人跟帖
等级: 
会所VIP房DJ台详图
最新回复: 2010-08-12 
发表于2010-06-03
1538人浏览
1人跟帖
等级: 
夜总会包厢茶几详图Ⅱ
最新回复: 2010-06-03 
发表于2010-06-03
1532人浏览
1人跟帖
等级: 
夜总会包厢茶几详图Ⅰ
最新回复: 2010-06-03 
发表于2010-05-27
1742人浏览
1人跟帖
等级: 
夜总会KTV卫生间详图Ⅱ 立面及节点
最新回复: 2010-05-27 
发表于2010-05-27
1115人浏览
1人跟帖
等级: 
夜总会KTV房立面详图Ⅰ
最新回复: 2010-05-27 
发表于2010-05-27
1333人浏览
1人跟帖
等级: 
夜总会KTV房立面详图Ⅲ
最新回复: 2010-05-27 
发表于2010-05-27
1738人浏览
1人跟帖
等级: 
夜总会KTV卫生间详图Ⅰ 立面及剖面
最新回复: 2010-05-27 
发表于2010-05-25
2379人浏览
1人跟帖
等级: 
KTV包房茶几详图
最新回复: 2010-05-25 
发表于2010-05-25
6114人浏览
1人跟帖
等级: 
豪华KTV包房调酒柜详图
最新回复: 2010-05-25 
发表于2010-05-25
1541人浏览
1人跟帖
等级: 
KTV房内上网台详图
最新回复: 2010-05-25 
发表于2010-04-19
1068人浏览
1人跟帖
等级: 
酒吧包间装修详图 包括:平面图、顶面图、包间立面图
最新回复: 2010-04-19 
发表于2008-08-29
1160人浏览
2人跟帖
等级: 
某酒店KTV平面图3
最新回复: 2010-03-06 
发表于2010-01-28
1018人浏览
1人跟帖
等级: 
包间茶几详图
最新回复: 2010-01-28 
发表于2010-01-27
837人浏览
等级: 
夜总会包间电视柜详图
最新回复: 2010-01-27 
发表于2009-12-07
2531人浏览
1人跟帖
等级: 
KTV包厢立面图Ⅱ
最新回复: 2009-12-07 
发表于2009-12-07
2872人浏览
1人跟帖
等级: 
KTV包厢立面图Ⅰ
最新回复: 2009-12-07 
发表于2009-12-07
6175人浏览
1人跟帖
等级: 
KTV包厢平面图
最新回复: 2009-12-07 