匿名
发表于2018-10-11
5109人浏览
1人跟帖
等级: 
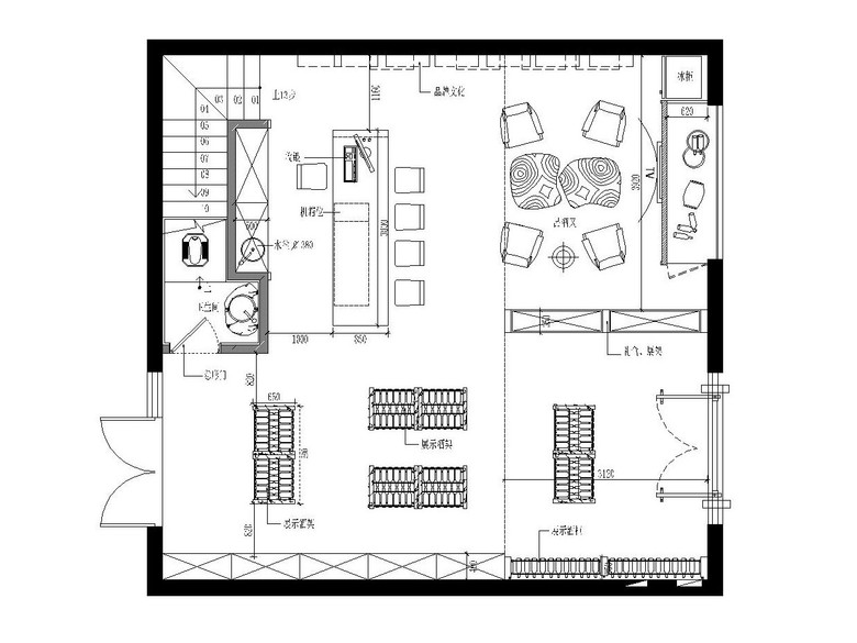
内容包含:平面布置图、天花布置图、地材铺装图、loft红砖墙体剖面图、天花造型施工详图、门厅施工详图、休闲区平面布置图、立面图、卡座区立面图、吧台立面图等等等...及效果图工业风格酒吧平面布置图工业风格酒吧天花布置图工...
最新回复:林DD 2018-10-11 
匿名
发表于2018-10-10
5971人浏览
1人跟帖
等级: 
内容包含:(八套酒吧CAD装修施工图)平面布置图、天花造型布置图、地材铺装布置图、大样节点图、剖面图、门表图、消防布置图等等等......后现代风格酒吧平面布置图中式风格酒吧平面布置图LOFT工业风格酒吧平面布置图后现代酒吧四...
最新回复:林DD 2018-10-10 
匿名
发表于2018-10-10
4155人浏览
1人跟帖
等级: 
内容包含:一层平面布置图、天花造型布置图、卡座区平面布置图、施工详图、夹层平面布置图、夹层卡座区施工详图、卡座区隔断详图、吧台详图、吧台立面图等等等........混搭风格休闲酒吧平面图混搭风格休闲酒吧天花造型图混搭风格...
最新回复:林DD 2018-10-10 
匿名
发表于2018-10-09
3602人浏览
2人跟帖
等级: 
内容包含:图纸目录、标识说明、内装修设计总说明、图例说明、工程做法说明、设计施工说明、电气设计说明、强电施工说明、材料表、原始平面布置图、墙体打拆图、墙体打拆尺寸图、墙体新建图、家居布置图、墙面造型尺寸定位图、地...
最新回复:gazimao 2018-10-10 
匿名
发表于2018-10-08
4985人浏览
2人跟帖
等级: 
酒吧简介:北京Thirteen酒吧有一个浪漫的名字,而她也正是以“创造真爱,体验真爱,固守真爱”这样的情感诉求作为酒吧的内涵和宗旨,酒吧经营者们笃信着,无论在任何时代,任何城市,在任何纷乱的现实边缘,人们总需要展示并释放...
最新回复:gazimao 2018-10-10 
匿名
发表于2018-10-10
5223人浏览
1人跟帖
等级: 
内容包含:设计总说明、图例说明、工程做法表、平面布置图、吊顶布置图、地材布置图、墙体定位图、栏杆定位图、索引布置图、前厅布置图、观景排队包厢平面详图、卫生间平面详图、前厅立面图、DJ台大样图、沙发大样图、茶几大样图...
最新回复:林DD 2018-10-10 
匿名
发表于2018-10-10
4314人浏览
1人跟帖
等级: 
内容包含:设计总说明、图例说明、工程做法表、平面布置图、吊顶布置图、地材布置图、墙体定位图、栏杆定位图、索引布置图、前厅布置图、观景排队包厢平面详图、卫生间平面详图、前厅立面图、DJ台大样图、沙发大样图、茶几大样图...
最新回复:林DD 2018-10-10 
匿名
发表于2018-10-10
4855人浏览
1人跟帖
等级: 
设计理念:设计上不以制式风格作为规划主题的首要表现,而是揣摩经营者对于这个空间的热诚与期待,继而成为创意发想的元素与能量,在掌握到的经营者模式下,将中国历史上集本草学大成的著作──《本草纲目》其中章节字句,镂刻于...
最新回复:林DD 2018-10-10 
匿名
发表于2018-10-09
3118人浏览
1人跟帖
等级: 
内容包含:封面目录、外观平面布置图、天花布置图、地材铺装图、大样节点图、剖面详图......另附效果图..总平面布置图天花布置图地材铺装图酒吧立面布置图酒吧厅立面图酒吧门厅立面图酒吧外观立面图部分缩略图效果图预览
最新回复:林DD 2018-10-09 
匿名
发表于2018-10-09
3379人浏览
1人跟帖
等级: 
内容包含:一层平面布置图、二层平面布置图、一层天花布置图、二层天花布置图、一层地材铺装图、二层地材铺装图、一层平面尺寸图、二层平面尺寸图、灯位布置图、前厅平面布置图、前厅立面布置图、剖面详图、打包立面图、剖面详图...
最新回复:林DD 2018-10-09 
匿名
发表于2018-10-09
2733人浏览
1人跟帖
等级: 
内容包含:平面布置图、天花布置图、地材铺装布置图、天花造型尺寸图、 灯具定位图、大堂立面布置图、接待区立面布置图、接待区背景施工详图、卡座区立面布置图、卡座区天花造型布置图、门表大样图、天花剖面图、施工工艺详图等...
最新回复:林DD 2018-10-09 
匿名
发表于2018-10-09
5246人浏览
1人跟帖
等级: 
内容包含:图纸目录、标识说明、内装修设计总说明、图例说明、工程做法说明、设计施工说明、电气设计说明、强电施工说明、材料表、原始平面布置图、墙体打拆图、墙体打拆尺寸图、墙体新建图、家居布置图、墙面造型尺寸定位图、地...
最新回复:林DD 2018-10-09 
匿名
发表于2018-10-08
3614人浏览
1人跟帖
等级: 
酒吧简介:座落于汉口豪华区域的武汉天地,占地1600+平米,简约时尚的装修风格贯穿在其所有的细节当中,灯光、装饰、装修、色彩……独特一流的音乐定位。内容包含:酒吧一层平面布置图、天花布置图、地材铺装布置图、二层平面布...
最新回复:林DD 2018-10-08 
匿名
发表于2018-10-08
2399人浏览
1人跟帖
等级: 
内容包含:外观平面布置图、天花平面布置图、外观天面图、外观造型交点立面定位图、外观造型交点俯视定位图、立面布置图、剖面详图、放样图及外观效果图......苏州百度酒吧酒吧平面布置图苏州百度酒吧外观天花布置图苏州百度酒吧...
最新回复:林DD 2018-10-08 
匿名
发表于2018-09-28
2339人浏览
1人跟帖
等级: 
内容包含:原始结构图、一层平面布置图、二层平面布置图、一层吊顶布置图、二层吊顶布置图、一层墙体定位图、二层墙体定位图、地面材质图、强弱电布置图、给排水示意图、吊顶灯位尺寸图、吊顶材质图、立面图、卫生间立面图、大样...
最新回复:林DD 2018-09-28 
匿名
发表于2018-09-07
2371人浏览
1人跟帖
等级: 
内容包含:平面图;立面图;详图;大样图附:施工图JPG像素:1280*1080一层平面图大堂立面图门厅立面图门厅详图一层顶棚图一层索引图总览图
最新回复:大姐大哦 2018-09-07 
匿名
发表于2018-09-07
2317人浏览
1人跟帖
等级: 
内容包含:平面图;立面图;封面;目录;设计说明;详图;大样图附:施工图JPG像素:1280*1080平面布置图地面材质图吊顶布置图过道立面图立面索引图休息区立面图总览图
最新回复:大姐大哦 2018-09-07 
匿名
发表于2018-07-24
1773人浏览
1人跟帖
等级: 
内容包含:平面图,立面图,剖面图,详图,大样图,封面,目录,施工说明另附:效果图平面布置图地面布置图吊顶布置图调酒吧台立面图餐厅效果图效果图缩略图
最新回复:大姐大哦 2018-07-24 
匿名
发表于2018-06-28
7766人浏览
1人跟帖
等级: 
内容包含:平面图(原始结构图,墙体拆除图,墙体砌筑图,平面布置图,平面尺寸参考图,地面物料图,顶面布置图,顶面尺寸图,灯具定位图);立面图(大厅,吧台,过道,包间,卫生间);节点大样图另附:施工图jpg像素:1280*74...
最新回复:大姐大哦 2018-06-28 
匿名
发表于2018-06-27
8413人浏览
1人跟帖
等级: 
内容包含:平面图(原始结构图,墙体拆除图,墙体砌筑图,平面布置图,平面尺寸参考图,地面物料图,顶面布置图,顶面尺寸图,灯具定位图,电路分析图);立面图(大厅,吧台,过道,包间,卫生间);节点大样图,剖面图另附:20...
最新回复:大姐大哦 2018-06-27 