匿名
发表于2019-09-26
2042人浏览
1人跟帖
等级: 
CASH酒吧室内装饰工程装饰施工图+效果图资料内容包含:效果图、CAD施工图(图纸目录,施工图设计说明、平立面图,节点大样,空调布置,新风布置等)施工说明,材料表等平面布置图隔墙与立面索引图天花布置图新风布置图空调布置图...
最新回复:兔尾巴鱼人 2019-09-26 
匿名
发表于2019-09-25
1186人浏览
1人跟帖
等级: 
[浙江]Thirteen Aunt酒吧项目施工图+效果图资料内容包含:效果图、CAD施工图(图纸目录,施工图设计说明、平立面图,节点大样等)施工说明,材料表等平面布置图立面索引图墙体尺寸图放样尺寸图家具尺寸图天花布置图立面图立面图...
最新回复:兔尾巴鱼人 2019-09-25 
匿名
发表于2019-09-24
2999人浏览
1人跟帖
等级: 
[辽宁]辽阳托斯卡纳音乐酒吧施工图+效果图资料内容包含:效果图、CAD施工图(图纸目录,施工图设计说明、平立面图,节点大样等)施工说明,材料表等平面布置图地面铺装图天花布置图灯具定位图强弱电布置图开关布置图立面图立面图...
最新回复:兔尾巴鱼人 2019-09-24 
匿名
发表于2019-09-24
1670人浏览
1人跟帖
等级: 
[四川]成都we club酒吧装饰施工图+效果图资料内容包含:效果图、CAD施工图(图纸目录,施工图设计说明、平立面图,节点大样,升降台放样等)施工说明,材料表等平面布置图墙体定位图地面材质图天花布置图灯具定位图立面图立面图...
最新回复:兔尾巴鱼人 2019-09-24 
匿名
发表于2019-09-24
2616人浏览
1人跟帖
等级: 
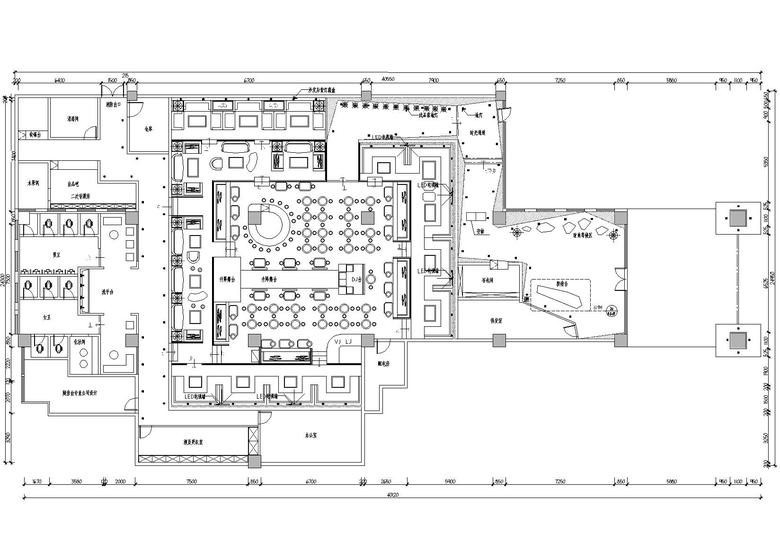
[广西]天琴酒吧全套装饰项目施工图+效果图资料内容包含:效果图、CAD施工图(图纸目录,施工图设计说明、平立面图,节点大样,平面吊顶,钢结构,给排水等)施工说明,材料表等平面布置图墙体尺寸图地面定位尺寸图平面索引图天花...
最新回复:兔尾巴鱼人 2019-09-24 
匿名
发表于2019-08-23
1423人浏览
2人跟帖
等级: 
本资料为WEB酒吧室内装饰施工图+效果图家具平面布置图天花平面布置图灯具平面布置图地面材料布置图空调平面布置图室内效果图1室内效果图2室内效果图3室内效果图4室内效果图5室内效果图6室内效果图7室内效果图8总缩略图
最新回复:QQ323926 2019-09-17 
匿名
发表于2019-08-24
2707人浏览
1人跟帖
等级: 
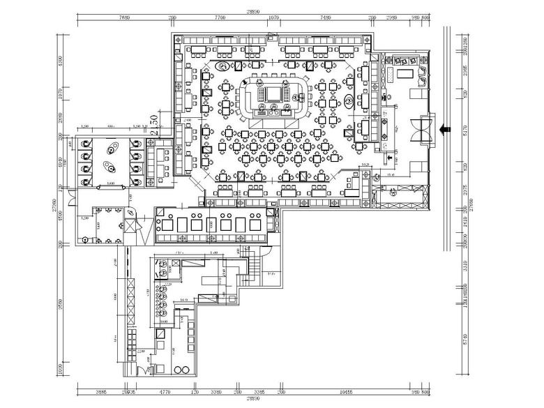
SMU-北京三里屯酒吧丨300㎡丨方案PTT+效果图+物料+施工图+给排水电气丨155M|2017包含:方案册PPT+效果图(PDF+JPG)58张,施工图(PDF+CAD)酒吧一层装修图纸,二层装修图纸,水电图、物料表平面布置图墙体定位图地面铺装图酒吧...
最新回复:yuanlee0214 2019-08-24 
匿名
发表于2019-07-29
1914人浏览
1人跟帖
等级: 
[上海]Kokaistudios-上海外滩18号1100㎡酒吧效果图+施工图+机电+厨房+摄影上海外滩18号酒吧简介Bar Rouge在之前十年里的历程里已成为享有国际声誉的中国最知名俱乐部,接待了世界一流的明星,艺术家和音乐家。这是一个具有传奇色...
最新回复:yuanlee0214 2019-07-29 
匿名
发表于2018-11-05
7151人浏览
3人跟帖
等级: 
包含:平面布置图、天花布置图、给排水布置图、地面铺装图、立面索引图、大厅立面图、包房立面图、外观立面图、电气设计说明、立面灯具配电示意图、配电箱系统示意图...............另附效果图底层平面图底层天花图夹层平面图夹...
最新回复:道院竹轩 2019-06-28 
匿名
发表于2016-02-16
5917人浏览
2人跟帖
等级: 
(45张) 包含:平面图(原始结构图、新建墙体尺寸图、平面布局图、地坪布置图、剖面索引图、天花布置图、天花尺寸图、天花立面索引图、墙面剖面索引图、天花灯具尺寸定位图、装饰灯具布置图、天花灯具连线图、装饰灯具连线图...
最新回复:yudie0 2019-04-26 
匿名
发表于2019-04-23
3869人浏览
1人跟帖
等级: 
本资料为网吧室内装修设计方案图(CAD)平面布置图顶面布置图立面图立面图1吧台立面大样图吧台立剖图总缩略图
最新回复:无敌小太阳 2019-04-23 
匿名
发表于2018-11-21
5068人浏览
3人跟帖
等级: 
[上海]朱周空间设计-冶春茶社上海吴中路店设计施工图+效果图包含:效果图4张,吴中路冶春茶社大样图、吴中路冶春茶社立面图(卡座、自助取餐台、收银台、门头等)、吴中路冶春茶社平面布置图(天花灯具尺寸图、非天花灯具图、天...
最新回复:哈哈哈小馒头 2019-03-28 
匿名
发表于2018-12-21
6718人浏览
1人跟帖
等级: 
概述:这是一个网络游戏厅跟咖啡结合的场所,所有的网络游戏都是以高科技的设计手法来表现,但我们认为这不是一个正确的方向,因为人的本性中对待游戏的态度应该是真实而欢乐的,这是和伙伴协作而成,它有激情也有冒险,它的设计...
最新回复:小ping666 2018-12-21 
匿名
发表于2018-12-17
3720人浏览
1人跟帖
等级: 
包含:图纸目录、施工总说明、平面尺寸索引图、墙体定位图、地面材质图、天花布置图、天花灯具定位图、门头立面图、前台接待厅立面图、大厅立面图、过道立面图、卫生间立面图、化妆间李阿敏图、出品区及过道立面图、大样图........
最新回复:小ping666 2018-12-17 
匿名
发表于2018-12-17
3987人浏览
1人跟帖
等级: 
概述:在酒吧吧台的设计时分选料上乘、工艺精深、在高度、质量、豪华程度上都是所置空间的焦点。在酒吧吧台设计的时分用料可以选用大理石、花岗岩、木质等,并与不锈钢、钛金等资料调和构成。因为每一个酒吧吧台的空间巨细性质不...
最新回复:小ping666 2018-12-17 
匿名
发表于2018-12-17
3869人浏览
1人跟帖
等级: 
包含:图纸目录、施工图设计说明、施工工艺做法说明、物料说明、家具平面布置图、天花平面布置图、灯具平面布置图、地面材料布置图、电气点位布置图、灯具控制连线图、给排水点位图、立面图、立面大样图、吧台大样图、铁艺笼子大...
最新回复:小ping666 2018-12-17 
匿名
发表于2018-12-17
3999人浏览
1人跟帖
等级: 
包含:图纸目录、材料编号表、门表详图、平面布置图、立面索引图、墙体定位图、家居平面布置图、地面铺装图、综合天花布置图、天花灯具尺寸图、天花消防喷淋末端定位图、给排水布置图、强弱电末端定位图、立面图、门厅立面图、走...
最新回复:小ping666 2018-12-17 
匿名
发表于2018-12-17
3076人浏览
1人跟帖
等级: 
包含:酒吧平面布置图、立面索引图、墙体尺寸定位图、地面台阶放样尺寸图、栏杆及造型基层钢板布置尺寸图、地材铺装布置图、家居尺寸布置图、天花布置图、酒吧过道门厅立面布置图、施工详图、剖面布置图、节点大样图、走廊天花造...
最新回复:小ping666 2018-12-17 
匿名
发表于2018-11-05
3447人浏览
1人跟帖
等级: 
包含:夹层平面图、平面布置图、间墙图、水电布置图、天花布置图、地面铺装图、大堂立面图、大堂天花图、大堂索引图、立面索引图、吧台大样图.............另附效果图大堂平面布置图大堂地面图大堂立面图大堂索引图立面索引图水...
最新回复:未来的未来o 2018-11-05 
匿名
发表于2018-10-24
3399人浏览
1人跟帖
等级: 
内容包含:总平面布置图、总天花布置图、加吧接待区立面图、接待区天花造型图、卫生间连图、卫生间施工详图、墙面造型尺寸定位图、地面定位尺寸图、平面索引图、家居定位图、顶面造型图、顶面灯具定位图、地面铺贴图、排水系统说...
最新回复:林DD 2018-10-24 