zhaocaikui
发表于2010-06-08
6837人浏览
7人跟帖
等级: 
本施工图是园区露天休闲养生的一套图纸,包括细部施工图纸,水电施工图纸,是一套完整的结合实际的图纸,本文共60个文件,CAD格式,欢迎网友下载~
最新回复:沉影612 2022-07-17 
星座猎手
发表于2017-04-05
12261人浏览
5人跟帖
等级: 
知名地产类型:度假村图纸深度 :施工图项目位置:海南图纸格式:天正7,CAD2000图纸张数:129张景观设施:铺装设计,儿童娱乐设施内容简介[海南]山地度假温泉酒店度假村景观设计施工图(全套CAD)目录:总平面图、宴会厅入口广场...
最新回复:tengchongguo 2021-10-21 
匿名
发表于2021-06-10
1310人浏览
1人跟帖
等级: 
本资料是某庄园旅游项目景观设计施工图2021年+CAD目录主要包括蓬莱仙界蘑力小镇景观竖向,布置总平面图、蓬莱仙界蘑力小镇做法索引详图、园路改造设计详图、园路防撞栏杆做法详图、入口广场水景做法详图、入口广场水景做法详图、...
最新回复:百花老师 2021-06-10 
匿名
发表于2021-06-04
372人浏览
1人跟帖
等级: 
本资料为[贵州]绿化项目景观施工图(硬景部分)2019,图纸资料丰富。本次景观施工图设计内容包括各景墙,景观亭、构筑物、水池、小品及相关硬质铺装装饰及构造图,绿化种植平面图及种植详图。总用地面积 148507㎡,建筑占地面积...
最新回复:白山老师 2021-06-04 
匿名
发表于2021-04-22
370人浏览
1人跟帖
等级: 
本资料是知名小区绿化景观施工图纸2020CAD知名小区绿化景观施工图纸知名小区绿化景观施工图纸A区景区地面生态停车场上木平面图一知名小区绿化景观施工图纸A区景区地面生态停车场上木平面图二知名小区绿化景观施工图纸A区景区地面...
最新回复:百花老师 2021-04-22 
匿名
发表于2020-12-08
1350人浏览
等级: 
内容简介:杭州知名度假酒店景观CAD施工图目录:主入口庭院平面、莲花池详图、大树支撑、泳池旁墙体、种植池详图、屋顶花园详图、植物种植图、围墙详图、电气施工图、结构详图、木栅格构架、水景详图、植物设计等。度假酒店景观...
最新回复:匿名 2020-12-08 
匿名
发表于2020-11-27
4832人浏览
1人跟帖
等级: 
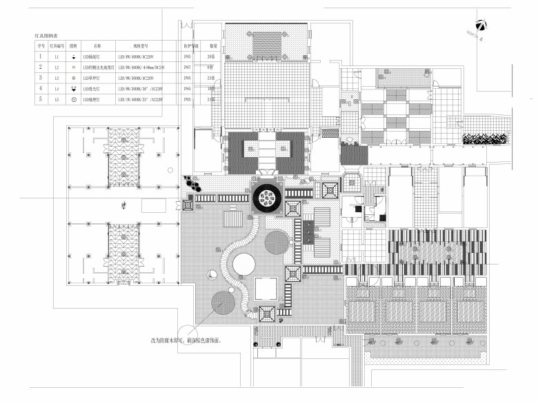
内容简介:浙江南浔古镇名宿酒店中心庭院景观施工图目录:灯具布置图、总平面图、铺装平面图、木平台详图、通用设计详图、分区花园详图、室外家具布置图、植物种植设计、排水详图等。名宿酒店中心庭院 总平面分区图1名宿酒店中心...
最新回复:不带你小游戏 2020-12-04 
匿名
发表于2020-12-03
1187人浏览
1人跟帖
等级: 
内容简介:【三亚】高级度假五星级酒店园建施工图CAD目录:景观构造说明、泳池详图、跌级泳池详图、楼梯详图、淋浴区详图、入户平台详图、波纹挡墙详图、特色景墙详图、鸟笼详图、泡池详图、酒店总平面图等。高级度假五星级酒店...
最新回复:不带你小游戏 2020-12-03 
匿名
发表于2020-11-26
598人浏览
1人跟帖
等级: 
内容简介:[安徽]某2A级滨水旅游度假区园建施工图目录:设计说明、总平面图、小品布置图、广场定位图、铺装平面图、半亭台阶详图、种植池详图、水景详图、花池详图、公厕详图、花堤详图、廊亭详图、羽毛球场详图、树池详图、景观...
最新回复:不带你小游戏 2020-11-26 
匿名
发表于2020-10-09
2615人浏览
等级: 
22-25村牌、景墙、石笼-布局122-25村牌、景墙、石笼-布局230-31凉亭详图-布局333-35亲水平台 栈道-Model1
最新回复:匿名 2020-09-27 
匿名
发表于2019-03-04
8493人浏览
4人跟帖
等级: 
内容简介【云南】温泉度假区景观全套园景观施工图设计(CAD) 目录:封面、图纸目录、设计总说明、景观总平面分区索引图、分区景观平面图、分区景观铺装平面图、茅草亭详图、特色景墙详图、木栈道剖面图、木栈道节点详图、分区竖...
最新回复:guo0124 2020-09-08 
匿名
发表于2020-06-08
711人浏览
1人跟帖
等级: 
文创农场项目图纸景观含清单招标文件1-梅旗萤火谷一期总平面(1)2-梅旗萤火谷一期总平面(2)3-梅旗萤火谷一期总平面(3)4-人行路面通用大样图5-截水沟通用大样图
最新回复:哈哈哈小馒头 2020-06-08 
清风拂面123
发表于2009-12-17
10442人浏览
13人跟帖
等级: 
山西晋城某风景区生态停车场周边景观施工图: 某风景区套图,包括总图部分、水电施工图、现代四角亭详图、艺术的景观小品、及大型的停车场设计图等。 48张CAD图纸,图纸系统详细~
最新回复:YKraylibra 2019-11-28 
匿名
发表于2019-09-04
5862人浏览
1人跟帖
等级: 
本资料为:[云南]温泉度假区景观CAD施工图-含水电结构。综合楼主人口详图,木栈道及景观详图,茅草亭详图,水疗厅详图,儿童有吃及特色水钵平面图,泳池剖面图,泳池吧亭平面图,特色经停,泡 池剖面图详图,靠椅详图,煮饭池详...
最新回复:我是扎巴依 2019-09-04 
匿名
发表于2019-07-03
2675人浏览
1人跟帖
等级: 
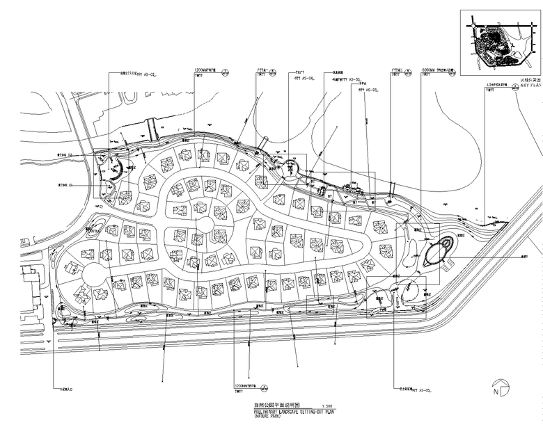
本资料为:[上海]松江新城英式风情小镇全套景观施工图(含:滨水公园景观)。目录:自然公园平面,自然公园室外家具平面布置图,自然公园入口平面说明图,休息凉棚及观景平台定位及标高图,滨水广场平面说明图,滨水广场平面说明...
最新回复:我是扎巴依 2019-07-03 
匿名
发表于2019-05-22
1672人浏览
1人跟帖
等级: 
本资料为:[浙江]临安青山殿水库环境全套CAD施工图(含效果图及设计说明)目录:平面放样及竖向设计,绿化种植平面图,传达室及大门设计说明及大样,传达室及大门平、立面图,传达室及大门基础结构图,传达室屋顶平面结构,透空...
最新回复:我是扎巴依 2019-05-22 
匿名
发表于2019-03-08
1620人浏览
1人跟帖
等级: 
内容简介【浙江】温州雁荡山游人中心给园林建筑施工图设计 目录:封面、图纸目录、设计总说明、总平面图立面图、立面图一、楼梯A 剖面图、门窗表、墙身大样图、自动扶梯详图、一层平面图等。总平面图立面图立面图一楼梯A 剖面图...
最新回复:永源56 2019-03-08 