匿名
发表于2021-07-01
397人浏览
1人跟帖
等级: 
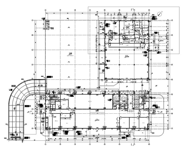
本资料为[重庆]多层加油站及其配套设施建筑施工图,含清单及招标文件,图纸资料丰富。本工程总建筑面积673.32平方米,建设用地面积3146.67平方米,建筑高度7.82米。本工程建筑单体名称:站房;罩棚;建筑性质:二层公共建筑。建...
最新回复:白山老师 2021-07-01 
匿名
发表于2021-06-25
97人浏览
1人跟帖
等级: 
本资料为[重庆]轨道交通站后工程工艺建筑施工图,含招标图补充说明,DWG格式。本工程图纸包括停车场总平面布置图,停车场联合车库一层平面布置图,停车场联合车库辅跨二层平剖图,停车场工程车库及材料库一层平面布置图,停车场...
最新回复:白山老师 2021-06-25 
匿名
发表于2021-06-23
604人浏览
1人跟帖
等级: 
本资料为[重庆]农村客运站新建工程建筑施工图含招标文件2021,图纸资料丰富。本工程客运站站级等级为三级,建设用地面积为10013.19平方米,总建筑面积1529.10 平方米,最大建筑高度为13.10m。地上设计1栋公共建筑,耐火等级为一...
最新回复:白山老师 2021-06-23 
匿名
发表于2021-06-18
263人浏览
1人跟帖
等级: 
本资料为[贵州]立交停车场及配套设施建筑施工图,图纸资料丰富。本工程规划总用地面积17659.16平方米,总建筑面积947.07平方米。其中地上建筑面积774.58平方米,地下建筑面积172.49平方米。停车楼建筑面积:373.29平方米,占地面...
最新回复:白山老师 2021-06-18 
匿名
发表于2021-06-12
112人浏览
1人跟帖
等级: 
本资料为[贵州]拟建站街客车站建设工程建筑施工图,图纸资料丰富。建筑为二层公共建筑,耐火等级为二级。建筑结构形式为框架结构,建筑高度12.9米,使用年限为50年。本工程卫生间等楼地面结构板降低值均为300mm。建筑主要出入口...
最新回复:白山老师 2021-06-12 
匿名
发表于2021-06-11
141人浏览
1人跟帖
等级: 
本资料为[贵州]停车库及配套服务用房建筑施工图,图纸资料丰富。停车位指标:总停车数485辆,地下机械车库251辆;地上机械车库234辆。充电桩车位:室外设置充电桩车位:174辆。建筑结构形式为框架结构,建筑结构的类别:丙类,合...
最新回复:白山老师 2021-06-11 
匿名
发表于2021-06-08
450人浏览
1人跟帖
等级: 
本资料为[贵州]三类机械车库停车场建筑施工图2020,图纸资料丰富。本项目总占地面积27506.45平方米。本建设项目为停车场建设项目设计--机械车库,总建筑面积:667.26平方米,车库停车形式为4层升降横移类机械停车库,每组9辆,6组...
最新回复:白山老师 2021-06-08 
匿名
发表于2021-06-02
127人浏览
1人跟帖
等级: 
本资料为[贵州]应急管理中心建筑方案图-PDF45张,图纸资料丰富。设计依据:建设单位认可的方案设计文件及相关的联系函。建设单位提供的设计任务书及有关地形图。应用国家规范、标准、规程及当地现行的有关规范、规定及标准。本工...
最新回复:白山老师 2021-06-02 
匿名
发表于2021-06-02
273人浏览
1人跟帖
等级: 
本资料为[贵州]地下停车场改造设计施工建设项目,图纸资料丰富。本项目为地下室改造项目,将原有特色文化步行街地下商业改造为无人员进入机械地下停车库。改造内容:地上一层瘾桥部位商业路分全部除,机房、卫生间保留,根据地下...
最新回复:白山老师 2021-06-02 
匿名
发表于2021-06-01
601人浏览
1人跟帖
等级: 
本资料为[贵州]停车场及农贸市场建筑方案图,图片为DWG格式。设计依据包括建设单位提供的地形图、红线图。规划部门批准的总体规划图。建设单位提供的设计任务书及设计要求以及建设单位认可的方案设计以及与我院签订的设计合同。...
最新回复:白山老师 2021-06-01 
匿名
发表于2021-02-07
745人浏览
1人跟帖
等级: 
[北京]八号线霍营地铁站站口建筑项目施工图+SU模型资料内容包括:地铁站建筑施工图(图纸目录,施工图设计说明,平面图,立面图,剖面图,节点大样详图,出入口站牌标识预埋件,电阻室,冷却塔,无障碍电梯,矮风亭等)SU模型,...
最新回复:果果珊妮 2021-02-07 
匿名
发表于2021-02-01
368人浏览
1人跟帖
等级: 
本资料为重庆知名地产沙坪坝高铁上盖综合体方案文本,PDF 格式。以下是部分资料展示:重庆知名地产沙坪坝高铁上盖综合体方案文本 概念模型.png重庆知名地产沙坪坝高铁上盖综合体方案文本 竖向设计.png重庆知名地产沙坪坝高铁上盖...
最新回复:柠檬橘 2021-02-01 
匿名
发表于2020-12-07
523人浏览
1人跟帖
等级: 
本资料为[浙江]绍兴钢结构停车库建筑施工图纸2015,DWG 格式。以下是部分资料展示:钢结构停车库建筑施工图纸 立面图1钢结构停车库建筑施工图纸 立面图2钢结构停车库建筑施工图纸 立面图3钢结构停车库建筑施工图纸 剖面图钢结构...
最新回复:柠檬橘 2020-12-07 
匿名
发表于2020-12-02
1068人浏览
1人跟帖
等级: 
[北京]大兴国际机场丨建筑.结构.电气.暖通.给排水施工图+智能停车场方案.视频丨1G丨2019.06竣工资料内容包含:全套CAD施工图(图纸目录,施工图设计说明、平面图,剖面图,结构,电气,暖通,给排水图纸等)智能停车场方案,视频...
最新回复:果果珊妮 2020-12-02 
匿名
发表于2020-11-08
297人浏览
等级: 
内容简介:[北京]知名国际机场给排水竣工图设计 (2017年)图纸包含:施工说明、地下二层给排水平面图、地下二层消防平面图、首层夹层给排水平面、首层夹层给排水平面、主要设备明细表、室外疏散路(-6.60)管线平面图、首层给排水...
最新回复:匿名 刚刚 
匿名
发表于2020-11-08
441人浏览
1人跟帖
等级: 
内容简介:[北京]知名国际机场暖通空调竣工图设计 (2017年)图纸包含:施工说明、主要设备明细表、排风、排烟、送风系统原理图。相关链接:[北京]知名国际机场建筑竣工图设计[北京]知名国际机场电气竣工图设计[北京]知名国际机...
最新回复:包苹果 2020-11-08 
匿名
发表于2020-11-08
422人浏览
1人跟帖
等级: 
内容简介:[北京]知名国际机场电气竣工图设计(2017年)图纸包含:电气施工图说明、光伏发电系统电气主接线图及监控系统图、光伏发电组件排布示意图、智能楼宇监控管理系统架构示意及建筑设备监控管理系统架构图、典型设备监控原...
最新回复:包苹果 2020-11-08 