匿名
发表于2018-07-24
299人浏览
清扫基层、填补缝隙→石膏板面接缝处贴接缝带、补腻子、磨砂纸→满刮腻子、磨平→涂刷防潮剂→涂刷底胶→墙面弹线→壁纸浸水→壁纸、基层涂刷粘结剂→墙纸裁纸、刷胶→上墙裱贴、拼缝、搭接、对花→赶压胶粘剂气泡→擦净胶水→修...
最新回复:匿名 2018-07-24 
匿名
发表于2018-07-24
216人浏览
对于小户型房屋来说,卫生间的面积可以说小中又小,一般来讲仅有4平方米左右。尽管建材城中的洁具产品琳琅满目,但在其中挑选适合小户型卫浴间的产品还真不容易,而且小户型的拥有者往往是一些刚刚工作的年轻人,他们需要省钱又...
最新回复:匿名 2018-07-24 
匿名
发表于2018-07-24
344人浏览
1.GJ板的表面和外观质量: 2.GJ板的规格尺寸允许偏差:mm 3.GSJ板每平方米面积的重量: 4.GSJ板的建筑物理性能指标: 注:GSJ板的聚苯乙烯泡沫塑料内芯厚50mm,砂浆表面作饰面处理 5.GSJ板的建筑结构性能规定 (1)GSJ板的轴向荷载...
最新回复:匿名 2018-07-24 
匿名
发表于2018-07-24
266人浏览
想让地板没有响声,就要先找出地板发出响声的原因,一般来说地板有响声的原因有以下几点: 1地面不平引起的响声 按照木地板铺装、验收和使用规范(GB/T20238-2006),地面的平整度为≤5mm/2m,安装木龙骨后的平整度...
最新回复:匿名 2018-07-24 
匿名
发表于2018-07-24
289人浏览
家具选择十大窍门 窍门1检查配件安装是否合理 例如检查一下门锁开关灵不灵;大柜应该装三个暗铰链,有的只装两个就不行;该上三个螺丝,有的偷工减料,只上一个螺丝,用用就会掉。 窍门2镜子家具要检查背部 挑选带镜...
最新回复:匿名 2018-07-24 
匿名
发表于2018-07-24
279人浏览
真皮沙发作为沙发家族的一员,以其庄重典雅、华贵耐用的特点为人们所喜爱。真皮沙发做到了经历时间的磨砺,经久不衰,以其富丽堂皇、豪华气派、结实耐用的特点一直受到人们的喜爱。在我们的印象中,传统真皮沙发色彩较为单调,以...
最新回复:匿名 2018-07-24 
匿名
发表于2018-07-24
423人浏览
1.每组试件强度计算: (1)取六块算术平均值为该组试件抗压强度值。 (2)当六个试件最大值或最小值与平均值的差超过20%时,以中间四个试件平均值作为该组试件强度值。 2.砂浆强度按下式进行评定: f2,m≥f2 f2,min≥0.75f2 式中:...
最新回复:匿名 2018-07-24 
匿名
发表于2018-07-24
369人浏览
玻璃马赛克: 玻璃马赛克是用熔融、烧结工艺生产呈乳浊状或半乳浊状的玻璃装饰材料,内含少量汽泡和未熔颗粒,适用于建筑内外墙装饰或镶嵌的艺术装饰等。玻璃马赛克分为熔融玻璃马赛克,烧结玻璃马赛克和金星玻璃马赛克。其规格...
最新回复:匿名 2018-07-24 
匿名
发表于2018-07-24
239人浏览
在家庭装修过程中,地板的选择不容出错,因为更换起来实在是太麻烦了。那么面对形形色色、不同风格的地板,消费者应该怎样选择呢?当然,自己喜欢是最重要的因素,但如何与墙面、进行配搭才最和谐,还是有章可循的。 古典主义...
最新回复:匿名 2018-07-24 
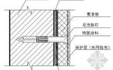
匿名
发表于2018-07-24
459人浏览
溶剂型外墙涂料:以合成树脂为基料、与颜料、体质颜料及各种助剂配制而成的、施涂后能形成表面平整的薄质涂层的溶剂型外墙涂料。该涂料适用于建筑物和构筑物等外表面的装饰和防护。 TS粘结苯板保温做法(外墙涂料)示意图 等级:...
最新回复:匿名 2018-07-24 
匿名
发表于2018-07-24
417人浏览
1.按水泥、砂、外加剂等取样规定抽取各种原材料试样。 2.如采用非饮用水拌合砂浆时,应按混凝土用水取样规定采取水样。
最新回复:匿名 2018-07-24 
匿名
发表于2018-07-24
348人浏览
1、饰面砖的品种、规格、图案、颜色和性能应符合设计要求。 2、饰面砖粘贴工程的找平、防水、粘贴和勾缝材料及施工方法应符合设计要求及国家现行产品标准和工程技术标准的规定。 3、饰面砖粘贴必须牢固。 4、满粘法施工的饰面砖...
最新回复:匿名 2018-07-24 
匿名
发表于2018-07-24
354人浏览
浴缸: 是一种水管装置,供沐浴或淋浴之用,通常装置在家居浴室内。现代的浴缸大多以亚加力(亚克力)或玻璃纤维制造,亦有以包上陶瓷的钢铁,甚至木材制造。旧式西方浴缸通常由防锈处理过(galvanized)的钢或铁制造。传统日本...
最新回复:匿名 2018-07-24 
匿名
发表于2018-07-24
347人浏览
化纤墙纸:它是以化纤为基材,经一定处理后印花而成。具有无毒、无味、透气、防潮、耐磨、无分层等优点,适用于一般住宅墙面装饰。单色墙纸003 等级:文件格式:jpg文件大小:69.00KB关键词: 材质贴图墙纸单色墙纸
最新回复:匿名 2018-07-24 
匿名
发表于2018-07-24
264人浏览
一、按己所需挑选瓷砖 (一)备选 现在市场上装饰用的瓷砖,按照使用功能可分为地砖、墙砖、腰线砖等。 地砖花色品种非常多,可供选择的余地很大,按材质可分为釉面砖、通体砖(防滑砖)、抛光砖、玻化砖等。 墙砖按花色可分为玻...
最新回复:匿名 2018-07-24 
匿名
发表于2018-07-24
309人浏览
《GB50174-2008电子信息系统机房设计规范》规定:防静电地板或地面的表面积电阻或体积电阻应为2.5×10的4次方~1.0×10的9次方欧姆。
最新回复:匿名 2018-07-24 
匿名
发表于2018-07-24
281人浏览
壁纸有很多种类,目前国际上比较流行的主要有胶面纸基壁纸、纺织物壁纸、天然材料壁纸、塑料壁纸、玻璃纤维壁纸、金属壁纸、荧光壁纸等。家庭装修选购壁纸时,主要是挑选图案和色彩等,根据房间环境及用途的不同您可以有所取舍...
最新回复:匿名 2018-07-24 