匿名
发表于2021-02-07
223人浏览
1人跟帖
等级: 
[安顺]邢江河国家湿地公园292㎡管理站室内装修施工图+工程量清单+招标文件资料内容包含:CAD施工图(图纸目录,施工图设计说明,平面图,立面图,节点大样,给排水,电气图纸等)工程量清单,招标文件等平面布置图天花布置图地面...
最新回复:果果珊妮 2021-02-07 
匿名
发表于2021-02-07
1509人浏览
1人跟帖
等级: 
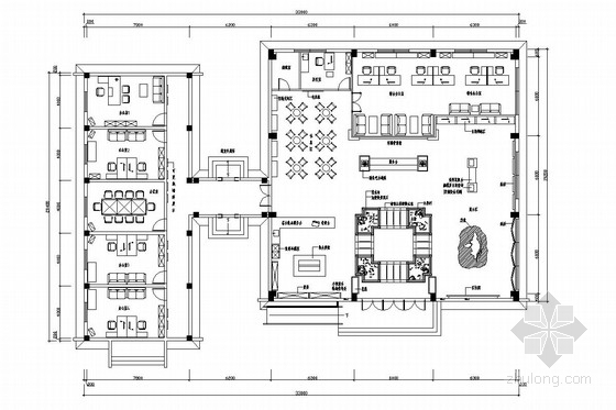
[安顺]邢江河国家湿地公园2414㎡游客接待中心室内装修施工图+工程量清单+招标文件资料内容包含:CAD施工图(图纸目录,施工图设计说明,平面图,立面图,节点大样,给排水,电气图纸等)材料表,工程量清单,招标文件等一层平面...
最新回复:果果珊妮 2021-02-07 
匿名
发表于2020-11-23
708人浏览
1人跟帖
等级: 
[浙江]杭州路劲住宅楼大堂+电梯厅装修丨PPT方案+效果图+施工图+物料书丨2018.07资料内容包含:CAD施工图(图纸目录,施工图设计说明、平面图,立面图,节点大样,强弱电图纸等)PPT方案,效果图,物料书等平面布置图地面铺装图天...
最新回复:果果珊妮 2020-11-23 
匿名
发表于2013-07-04
4648人浏览
2人跟帖
等级: 
(203张) 包括:封面、目录、设计说明、图例、材料表;(1-2层、单人间、标间、套房、电梯厅、董事长会客厅):(平面图、天花图、地面图、电器点位图、灯控连线图、墙身尺寸图、立面索引图...);3-6层:(平面图、天花图...
最新回复:Ahha877294 2020-11-18 
匿名
发表于2020-11-06
1130人浏览
1人跟帖
等级: 
[山西]大同高等师范专科学校宿舍楼室内装修设计施工图资料内容包含:体育馆CAD施工图(图纸目录,施工图设计说明、平面图,立面图,节点大样图纸等)1号宿舍楼一层平面布置图1号宿舍楼二~五层平面布置图2号宿舍楼一层平面布置图...
最新回复:果果珊妮 2020-11-06 
匿名
发表于2020-11-04
527人浏览
1人跟帖
等级: 
[哈尔滨]紫云府二期高层住宅楼公区、物业用房施工图资料内容包含:住宅楼公区、物业用房CAD施工图(封面,图纸目录,施工图设计说明、平面图,立面图,节点大样图纸等)物料表,材料表等1#首层大堂平面布置图3#首层大堂及前室平...
最新回复:果果珊妮 2020-11-04 
匿名
发表于2020-09-11
554人浏览
1人跟帖
等级: 
[北京]北京银行顺义科技研发中心项目A5培训配楼装修设计施工图资料内容包含:培训区,餐厅,休息区,宿舍,娱乐区CAD施工图(封面,图纸目录,施工图设计说明、平面图,立面图,节点大样图等图纸)二层平面布置图一层平面布置图...
最新回复:果果珊妮 2020-09-11 
匿名
发表于2020-08-25
526人浏览
1人跟帖
等级: 
[长沙]智能终端产业双创孵化基地餐厅,仓库及宿舍楼内装项目工程施工图资料内容包括:库房,餐厅,宿舍楼CAD施工图(图纸目录,施工图设计说明,平面图,立面图,节点详图,电气,给排水,总图等图纸)总平面及竖向布置图一层餐...
最新回复:果果珊妮 2020-08-25 
匿名
发表于2020-07-08
1308人浏览
1人跟帖
等级: 
[贵州]赤水市农产品产销对接智慧服务中心负一层农贸市场内装施工图+招标文件资料内容包含:负一层农贸市场,一层办公区CAD施工图(图纸目录,施工图设计说明,工程做法表,室内装修主要材料一览表,平面图,节点大样等)招标文件...
最新回复:果果珊妮 2020-07-08 
匿名
发表于2020-06-09
807人浏览
1人跟帖
等级: 
[北京]地铁八号线霍营站车站站口施工图+效果图+SU模型资料内容包括:CAD施工图(图纸目录,施工图设计说明,平面图,立面图,剖面图,节点详图,出入口站牌标识预埋件,电阻室,冷却塔,无障碍电梯,矮风亭等)SU模型,效果图,...
最新回复:果果珊妮 2020-06-09 
匿名
发表于2020-02-04
6485人浏览
1人跟帖
等级: 
单层不规则公园茶室施工图设计装饰工程施工图资料内容包含:CAD施工图(图纸目录,平面图,立面图,节点大样,)一层平面布置图茶室 屋顶平面图茶室大厅大样图茶室立面图景墙立面图屋面板配置图
最新回复:该用户是涛啊 2020-06-08 
匿名
发表于2015-12-14
9294人浏览
3人跟帖
等级: 
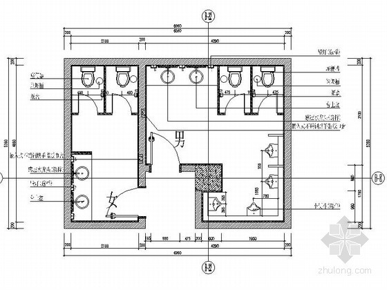
(43张) 包含:封面、图纸目录、设计技术说明、站台层站厅层平面图(平面布置图、地铺图、天花图、ABC号出入口地面铺装图、ABC号出入口天花图、公共区卫生间平面、公共区卫生间地面铺装及索引、公共区卫生间天花图);立面...
最新回复:269543548 2020-05-30 
匿名
发表于2019-12-15
424人浏览
1人跟帖
等级: 
本资料为苏州观音园丨2800㎡丨内装施工图CAD+建筑&室内效果图苏州观音园项目的主题是借苏州天堂之势,承太湖山水之美,深入挖掘,展现丰富多彩、博大精深的观音文化、使之成为宗教、文化艺术的精品整体设计是传统与现代相结合,...
最新回复:无敌小太阳 2019-12-15 
匿名
发表于2019-11-19
1929人浏览
1人跟帖
等级: 
[海南]海花岛世界童话游乐园丨效果图+建筑施工图CAD丨507M丨2017.06资料内容包含:效果图、CAD施工图(图纸目录,施工图设计说明,平面图,立面图,节点大样等)土建图纸,材料表,PDF施工图文件资料等环球市集片区总平面图1302...
最新回复:兔尾巴鱼人 2019-11-19 
匿名
发表于2019-10-10
2005人浏览
1人跟帖
等级: 
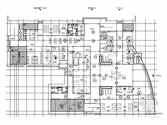
[上海]奉贤社区中心丨高清效果图+建筑图丨CAD+PDF+JPG丨1G丨2018.09资料内容包含:效果图、CAD施工图(图纸目录,施工图设计说明,平面图,立面图,节点大样等)空间分区图纸,建筑图纸,电气图纸,给排水审图,基坑围护,暖通审...
最新回复:兔尾巴鱼人 2019-10-10 
匿名
发表于2019-10-08
1203人浏览
1人跟帖
等级: 
内容简介: 西安绿地中心 大堂延续一层大堂风格,注重空间感受及功能的结合,充分运用现代设计语言,以点、线、面、体及空间表现形式,顶面层层叠加的造型与地面石材的层层呼应,整体而又富有变化。同时将绿色办公概念引入室内,...
最新回复:她是南音啊 2019-10-09 