demon_wy
发表于2004-09-30
3231人浏览
1人跟帖
等级:
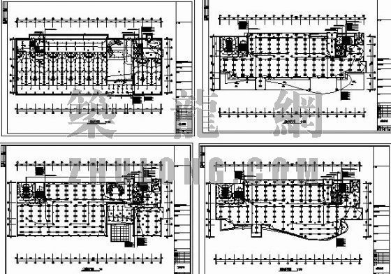
来自:建筑电气施工图 
hulpen
发表于2004-09-22
3058人浏览
2人跟帖
等级:
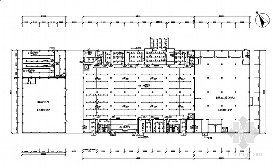
来自:建筑电气施工图 
jyadi
发表于2004-09-01
2950人浏览
1人跟帖
等级:
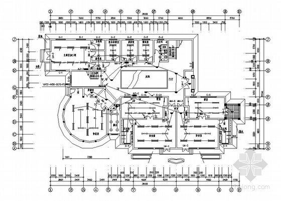
来自:建筑电气施工图 