艺术设计
工程技术
机电设备
项目与管理
BIM学院
发帖说明
本小组需要加入才可以发帖
关注
发资料
了解更多
还可以输入 40 字
加入小组后才可以发帖哦,现在就加入?
检索到9347条内容
0
空调水系统控制原理图
小纹 发表于2004-10-14 4905人浏览 等级: 来自:建筑暖通施工图
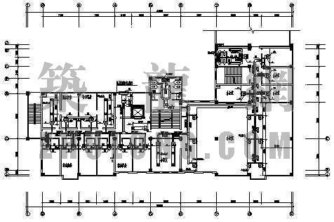
水源热泵机房平面
小纹 发表于2004-10-14 2149人浏览 等级: 来自:建筑暖通施工图
完整机房图
stylist 发表于2004-10-13 2694人浏览 等级: 来自:建筑暖通施工图
住宅地板辐射采暖施工图
stylist 发表于2004-10-13 1721人浏览 等级: 来自:建筑暖通施工图
综合楼空调工程水系统平面
stylist 发表于2004-10-13 1561人浏览 等级: 来自:建筑暖通施工图
综合楼空调系统中的风系统
stylist 发表于2004-10-13 1674人浏览 等级: 来自:建筑暖通施工图
水环热泵施工图
chjl10000 发表于2004-10-13 2238人浏览 等级: 来自:建筑暖通施工图
上海某暖通公司地暖图集
zhijie6688 发表于2004-10-12 4854人浏览 等级: 来自:建筑暖通施工图
热水锅炉房施工图设计
小纹 发表于2004-10-12 3181人浏览 等级: 来自:建筑暖通施工图
小型风冷热泵空调图
yang970123 发表于2004-10-12 2385人浏览 等级: 来自:建筑暖通施工图
户式中央空调
13891982zxj 发表于2004-10-12 3039人浏览 等级: 来自:建筑暖通施工图
寺庙通风及防排烟设计
胖咪 发表于2004-10-10 2719人浏览 等级: 来自:建筑暖通施工图
两排平房土暖气设计
小纹 发表于2004-10-10 11092人浏览 等级: 来自:建筑暖通施工图
医药厂房GMP改造空调图
小纹 发表于2004-10-10 2756人浏览 等级: 来自:建筑暖通施工图
二类高层正压送风图
小纹 发表于2004-10-10 2375人浏览 等级: 来自:建筑暖通施工图
物业管理中心空调设计
胖咪 发表于2004-10-09 1991人浏览 等级: 来自:建筑暖通施工图
广东某空调股份有限公司
rqb1190 发表于2004-10-09 1863人浏览 等级: 来自:建筑暖通施工图
冷却塔基础平面布置图
文冰 发表于2004-10-09 3145人浏览 等级: 来自:建筑暖通施工图
某发电厂主给水、主蒸汽原理图
文冰 发表于2004-10-09 2520人浏览 等级: 来自:建筑暖通施工图
各种空调图纸说明
redluo 发表于2004-09-30 3612人浏览 等级: 来自:建筑暖通施工图
体育建筑
办公建筑
医疗建筑
商业建筑
实验科研建筑
宾馆酒店建筑
居住建筑
工业建筑
教育建筑
装饰暖通图纸
申请加入管理团队
组长
飞机师次
管理员
猝死倒计时
冲动VB
博佩服
拍下哦v
鱼淇111
选择想要与"建筑暖通施工图"交换链接的小组
忘记选择小组啦,小伙伴们很困惑,还是选一个再交换吧~
个人擅长:
专业
艺术设计类
适用于建筑学专业,在设计机构从事建筑设计和城市规划的人员
适用于从事室内装饰装修设计的人员
适用于从事园林景观规划与设计的人员
适用于从事室内外照明设计与施工的人员
适用于从事三维建模、渲染及后期制作的人员
工程技术类
适用于在设计机构从事建筑结构设计与科研的专业人员
适用于从事房屋建筑的土建施工、装饰施工、钢结构与幕墙施工人员
适用于从事路桥与市政工程的设计、施工的人员
适用于从事勘察与岩土工程的设计、施工的人员
适用于从事水利水电工程设计、施工、管理的专业人员
机电设备类
适用于从事输配电、建筑电气与智能化的设计、施工的人员
适用于从事给排水、消防、水处理的设计、施工人员
适用于从事暖通、空调、动力、制冷的设计、施工的人员
造价与管理类
适用于从事房地产策划、开发与管理的人员
适用于造价工程师及概预算人员
从事房建、市政路桥、园林、水电安装的监理人员
从事工程技术、经营、质量、安全管理的专业人员
其他类别
销售建筑材料与建筑设备的专业人员
退出管理团队
您将失去的身份,确定退出?