匿名
发表于2020-04-27
422人浏览
1人跟帖
等级: 
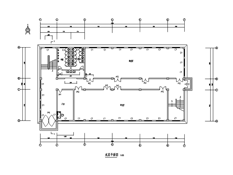
该资料为办公大楼电气工程清单控制价编制项目,rar文件,软件算量。主要内容为办公大楼电气工程清单控制价编制项目,1、关于地下室:由于提供的装饰电图纸标注说明仅修改了泵房电力平面图,其他均未做修改,经对比发现和原图一样...
最新回复:aflyzzz 2020-04-27 
匿名
发表于2020-04-27
312人浏览
1人跟帖
等级: 
该资料为安置房给排水工程量清单控制价编制项目,rar文件,带图纸。主要内容为安置房给排水工程量清单控制价编制项目,图示范围内给排水安装工程(不含总平雨污水,出户至第一口雨污水井)所有工作内容,不含燃气热水器,不含雨...
最新回复:aflyzzz 2020-04-27 
匿名
发表于2020-04-07
4914人浏览
4人跟帖
等级: 
该资料为15套工程量计算实例合集装修清单计价表1装修清单计价表2装修清单计价表3装修清单计价表4装修清单计价表5装修清单计价表6
最新回复:魏18369077728 2020-04-23 
匿名
发表于2020-04-17
1756人浏览
1人跟帖
等级: 
该资料为Excel钢筋工程量自动计算表格,excel文件。Excel钢筋工程量自动计算表格
最新回复:aflyzzz 2020-04-17 
匿名
发表于2020-04-17
2012人浏览
1人跟帖
等级: 
该资料为梁、板模板工程量计算表格(excel),excel文件,四个表。内容含有:1、梁计算稿2、板计算稿板计算稿梁计算稿体育场砼工程计算稿
最新回复:aflyzzz 2020-04-17 
匿名
发表于2020-04-17
1456人浏览
1人跟帖
等级: 
该资料为工程量计算表格模板(自动计算汇总),excel文件。内容含有:1、使用说明2、封面3、汇总4、计算表5、单位6、常用项目7、基础T接头使用说明常用项目计算表
最新回复:aflyzzz 2020-04-17 
匿名
发表于2020-04-17
778人浏览
1人跟帖
等级: 
该资料为会自动汇总的工程量算量表格,excel文件。内容含有:1、清单2、汇总表3、计算表汇总表清单计算表
最新回复:aflyzzz 2020-04-17 
匿名
发表于2020-04-15
357人浏览
1人跟帖
等级: 
该资料为消防工程工程量清单计价ppt,ppt文件,共78页。主要内容为消防工程工程量清单计价ppt,消防水泵房内的管道为工业管道项目,与消防管道划分以泵房外墙皮或泵房屋顶板为分界点。内容含有:1、本章与相关管道工程界限的划分...
最新回复:aflyzzz 2020-04-16 
匿名
发表于2020-04-14
355人浏览
1人跟帖
等级: 
该资料为电气设备安装工程工程量清单项目设置及计价,ppt文件,共115页。主要内容为电气设备安装工程工程量清单项目设置及计价,(1)外线工程——指室外电源供电线路,主要是架空电源线路和电缆线路的安装。(2)变配电工程——...
最新回复:aflyzzz 2020-04-15 
匿名
发表于2020-04-14
1470人浏览
1人跟帖
等级: 
该资料为全专业的工程量清单计算规则及编码查询,excel文件,10个表。内容含有:1、建筑2、装修3、安装4、市政5、园林全专业的工程量清单计算规则及编码查询安装建筑市政园林装饰
最新回复:aflyzzz 2020-04-15 
wangqiujia
发表于2019-01-08
2527人浏览
3人跟帖
等级: 
【简介】安装全套实例算量过程 PPT格式 180页建筑设备工程计价概论电气设备安装工程计价给排水、采暖、燃气工程计价消防设备安装工程计价通风空调工程计价安装全套实例算量过程1、概述2、建筑设备工程造价的组成3、建筑设备工程...
最新回复:weiadm 2020-04-11 
匿名
发表于2020-04-07
434人浏览
1人跟帖
等级: 
该资料为行政中心周边市政工程量清单(招标审计后),word文件,8个表。主要内容为行政中心周边市政工程量清单,本次施工招标范围: 施工设计图纸范围内的路面硬化、场地铺装、地下管网、路灯等工程(具体以工程量清单内容为准)。...
最新回复:国民小逗比 2020-04-07 
匿名
发表于2020-02-04
758人浏览
5人跟帖
等级: 
该资料为办公楼装修项目工程量清单(带图纸),rar文件,含图纸及清单。主要内容为办公楼装修项目工程量清单(带图纸),包含装修项目的图纸(含平面图、节点图等)及工程量清单(含广联达文件)。内容含有:1、图纸2、工程量清...
最新回复:国民小逗比 2020-03-31 
匿名
发表于2020-03-30
1871人浏览
1人跟帖
等级: 
该资料为幼儿园整套清单工程量计价实例,rar格式,含图纸及计算过程。主要内容为幼儿园整套清单工程量计价实例,本工程音体活动室结构形式为框架结构,其余部分结构形式为砖混结构。本工程建筑面积为2252.5 ㎡。本工程建筑耐火等...
最新回复:国民小逗比 2020-03-31 
匿名
发表于2020-03-24
551人浏览
1人跟帖
等级: 
该资料为图书馆建设工程图纸钢筋工程量,rar格式,带图纸。主要内容为图书馆建设工程图纸钢筋工程量,图书馆为钢筋混凝土框架结构,1、内外墙均采用MU10机制混凝土多孔砖其施工技术要求及错固连接应严格按有关规定进行。2、墙体...
最新回复:aflyzzz 2020-03-25 
匿名
发表于2020-03-24
934人浏览
1人跟帖
等级: 
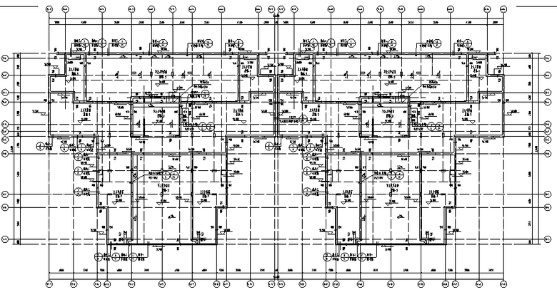
该资料为小高层住宅建设项目图纸工程量,rar格式,带图纸。主要内容为小高层住宅建设项目图纸工程量,a.外墙体地下室外墙为400厚钢筋混凝土墙地上部分外墙为240加气混凝土砌块墙体部分外墙为240钢筋混凝土剪力墙体;b.内墙体地下...
最新回复:aflyzzz 2020-03-25 
匿名
发表于2020-03-24
999人浏览
1人跟帖
等级: 
该资料为住宅楼建设项目土建装饰图纸工程量,rar格式,带图纸,含计算过程。主要内容为住宅楼建设项目土建装饰图纸工程量,本工程外玻璃门窗采用60系列塑钢型村中空波璃门65+6+5)空气层厚度均为6mm。2.外玻璃门均采5厚本色钢化玻...
最新回复:aflyzzz 2020-03-25 
匿名
发表于2020-01-15
929人浏览
2人跟帖
等级: 
该资料为梁钢筋工程量计算(含计算实例),word文件,50页。主要内容为梁钢筋工程量计算(含计算实例),系在梁的平面布置图上,分别在不同编号的梁中各选一根梁,在其上注写梁的截面尺寸和配筋的具体数值。平面注写包括集中标注...
最新回复:2591804948 2020-03-22 
匿名
发表于2020-03-17
797人浏览
1人跟帖
等级: 
该资料为三层框架结构工程综合实例讲解(北京定额),rar文件,含图纸及讲解。主要内容为三层框架结构工程综合实例讲解(北京定额),建筑层数:三层 结构形式:框架结构建设总高度:12.45m 安全等级:二级室内外高差:450mm 屋面防...
最新回复:国民小逗比 2020-03-17 