艺术设计
工程技术
机电设备
项目与管理
BIM学院
发帖说明
本小组需要加入才可以发帖
关注
发资料
了解更多
还可以输入 40 字
加入小组后才可以发帖哦,现在就加入?
检索到246条内容
0
某水库溢洪道平立面详图
sxj20289558 发表于2007-12-14 2110人浏览 1人跟帖 等级: 来自:水利节点详图
某河道跌水工程详图
sxxzzyc 发表于2007-11-23 3780人浏览 1人跟帖 等级: 来自:水利节点详图
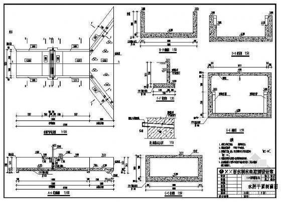
抗旱水闸平剖面图
wangbaowy 发表于2007-10-17 2426人浏览 1人跟帖 等级: 来自:水利节点详图
渡槽结构及配筋图
xuexuedd 发表于2007-06-26 4399人浏览 1人跟帖 等级: 来自:水利节点详图
渡槽结构及配筋详图
辉爷 发表于2007-05-10 4018人浏览 2人跟帖 等级: 来自:水利节点详图
某抛石堤护岸工程断面详图
bujxp 发表于2007-05-09 4078人浏览 1人跟帖 等级: 来自:水利节点详图
堤坝工程
河道治理
港口码头
农田水利
水库除险防护
河船闸门
申请加入管理团队
组长
贤宁书
管理员
自若清风
持之以恒
离合常在
清风扶露
倚窗听雨
选择想要与"水利节点详图"交换链接的小组
忘记选择小组啦,小伙伴们很困惑,还是选一个再交换吧~
个人擅长:
专业
艺术设计类
适用于建筑学专业,在设计机构从事建筑设计和城市规划的人员
适用于从事室内装饰装修设计的人员
适用于从事园林景观规划与设计的人员
适用于从事室内外照明设计与施工的人员
适用于从事三维建模、渲染及后期制作的人员
工程技术类
适用于在设计机构从事建筑结构设计与科研的专业人员
适用于从事房屋建筑的土建施工、装饰施工、钢结构与幕墙施工人员
适用于从事路桥与市政工程的设计、施工的人员
适用于从事勘察与岩土工程的设计、施工的人员
适用于从事水利水电工程设计、施工、管理的专业人员
机电设备类
适用于从事输配电、建筑电气与智能化的设计、施工的人员
适用于从事给排水、消防、水处理的设计、施工人员
适用于从事暖通、空调、动力、制冷的设计、施工的人员
造价与管理类
适用于从事房地产策划、开发与管理的人员
适用于造价工程师及概预算人员
从事房建、市政路桥、园林、水电安装的监理人员
从事工程技术、经营、质量、安全管理的专业人员
其他类别
销售建筑材料与建筑设备的专业人员
退出管理团队
您将失去的身份,确定退出?