匿名
发表于2021-10-18
50人浏览
1人跟帖
等级: 
资料大桥钢管贝雷支架设计计算书,共计20页WORD文档。编辑于2019年。计算内容详细,同类工程可参考。工程概况桥梁施工现场围堰封闭施工,考虑水流全部通过。湖底标高75.5m,11~14#墩之间三孔采用贝雷+钢管方案,水流从贝雷下方钢...
最新回复:向前chonga 2021-10-18 
中国龙007
发表于2007-09-19
2338人浏览
5人跟帖
等级: 
一、高墩柱模板强度验算 高墩模板采用定型钢模,由钢结构专业加工厂定制。 验算参数:模板分节制作,每节4m,Φ2.0m、Φ1.8m各4套(节); 面板钢板(A3)厚度δ=5mm; 环向横带间距400mm,宽×高×板厚=80×40...
最新回复:董兴 2021-10-14 
匿名
发表于2021-10-09
69人浏览
1人跟帖
等级: 
本资料为:等宽钢筋混凝土连续箱梁桥结构计算书84p,格式为word,编制与2016年。一、主要技术指标:(1)道路等级:城市支路;设计速度:20km/h。(2)荷载等级:汽车荷载:城-B级;人群荷载按照《城市桥梁设计规范》(CJJ 11-2...
最新回复:清平平老师 2021-10-09 
匿名
发表于2021-10-09
81人浏览
1人跟帖
等级: 
本资料为:钢箱梁人行天桥主桥结构计算书72p(2020),格式为PDF+WORD,编制与2020年。一、工程概况:项目处于贵阳老城区中心地带,人群、交通繁杂,管线繁多,且有地铁穿过。该天桥主梁全长61.2m。主梁采用预制吊装钢箱梁,C35...
最新回复:清平平老师 2021-10-09 
匿名
发表于2021-09-29
79人浏览
1人跟帖
等级: 
本资料为:预制梁场钢筋车间钢构棚结构计算书211p,格式为Word,共211p,编制于2018年。一、结构计算信息:结构类型: 单层钢结构厂房设计规范: 按《门式刚架轻型房屋钢结构技术规范》(GB 51022-2015)计算结构重要性系数: 0.95...
最新回复:清平平老师 2021-09-29 
匿名
发表于2021-09-29
80人浏览
1人跟帖
等级: 
资料综合管廊工程单舱管廊计算书,涉及5座管廊。对管廊设计规范、静力计算、各种计算荷载参数选取、计算内容进行了详细陈述。内容全面,同类工程计算可参考。工程概况城北路综合管廊工程一标段支管廊共有五个支管廊:管廊为单舱...
最新回复:向前chonga 2021-09-29 
匿名
发表于2021-09-29
132人浏览
1人跟帖
等级: 
资料综合管廊工程抗震设防专项论证报告共计90页A3版WORD文档。对了解管廊结构抗震各项计算、结果分析等非常有帮助,推荐学习参考。工程概况支线管廊一:一般段管廊顶部埋深为规划道路以下约 2.5m,管廊净高约 4.0m,相应底部埋深...
最新回复:向前chonga 2021-09-29 
匿名
发表于2021-09-29
188人浏览
1人跟帖
等级: 
本资料为:[国企]拌和站地基承载力及抗倾覆计算书2018,格式为Word,共6p,编制于2018年。一、基础设计:为避免粉罐出现倾斜塌陷情况,粉料罐基础设计挖深2m,粉罐基础及支撑墩柱采用连体浇筑的方式。每个罐有4个连接底座,底座...
最新回复:清平平老师 2021-09-29 
匿名
发表于2021-09-28
64人浏览
1人跟帖
等级: 
本资料为:CGT5512附着式塔式起重机钢筋砼基础计算书,格式为Word,共14p,编制于2019年。一、工程概况:塔吊采用CGT5512附着式塔式起重机,工作臂长40米,最大起重量6吨,最大起重力矩为800千牛米。扶墙设置一道。塔吊基础采用...
最新回复:清平平老师 2021-09-29 
匿名
发表于2021-09-29
77人浏览
1人跟帖
等级: 
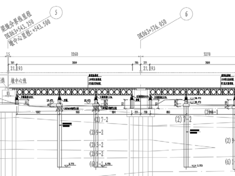
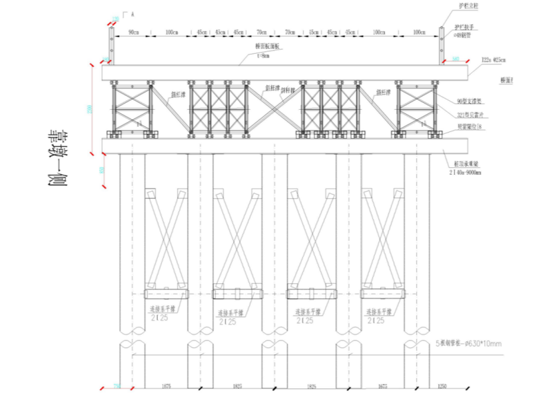
本资料为:[国企]特大铁路桥门式墩现浇支架计算书2019,格式为PDF,共11p,编制于2019年。一、结构形式及特点:本门式墩支架采用钢管+贝雷桁架结构体系,一跨简支结构,跨度为16.3m.设置钢管支墩。钢管支墩采用D630x10钢管,设置...
最新回复:清平平老师 2021-09-29 
匿名
发表于2021-09-28
79人浏览
1人跟帖
等级: 
本资料为:6×32m道岔连续梁桥现浇梁支架计算书2019,格式为PDF,共25p,编制于2019年。一、工程概况:xx特大桥桥址处地势较为平坦,交通便利,水系发达。周围有村落且规模较小。桥址于5-11#墩设计采用(6X32)m道岔连续梁。桥跨...
最新回复:清平平老师 2021-09-28 
匿名
发表于2021-09-28
45人浏览
1人跟帖
等级: 
资料桥梁冲击系数计算程序可进行冲击系数计算的桥型包括简支梁桥、连续梁桥、拱桥、双塔斜拉桥、单跨简支悬索桥。双击.exe程序就可以直接打开。相关截图冲击系数计算界面.png简支梁和连续梁计算界面.png截面特性计算.png
最新回复:向前chonga 2021-09-28 
匿名
发表于2021-09-27
67人浏览
1人跟帖
等级: 
资料70m菱形挂篮计算书,共11页WORD文档,编制于2020年。附13个其他工程挂篮MIDAS模型。推荐学习参考。工程概况轨道交通桥梁主桥上部采用主跨70m预应力混凝土连续箱梁。箱梁断面为单箱单室斜腹板断面。箱梁顶宽9.4m,底宽2.638~...
最新回复:向前chonga 2021-09-27 
匿名
发表于2021-09-25
96人浏览
1人跟帖
等级: 
资料特大桥0号现浇支架施工设计计算书附CAD图纸,计算步骤详细、图纸节点清晰,可学习参考。工程概况0号块现浇支架在1000×20的钢管柱临时墩上端安装牛腿,在牛腿上搭置3根HN500的型钢分配梁,内侧一根、外侧两根。在分配梁上搭...
最新回复:向前chonga 2021-09-25 
匿名
发表于2021-09-22
361人浏览
1人跟帖
等级: 
本资料为:桥墩基坑支护计算书(拉森钢板桩)含图纸,格式为CAD+Word,编制于2019年。一、工程概况:xx#墩施工平台标高19m,施工水位18.5m,承台顶标高17.71m,承台底标高11.21m,封底混凝土厚度0.6m,基坑底标高10.61m,混凝土...
最新回复:清平平老师 2021-09-22 
匿名
发表于2021-09-22
36人浏览
1人跟帖
等级: 
本资料为:296m特大桥连续梁拱桥墩钻孔平台计算书,格式为Word,共22p,国企编制于2019年。一、计算书目录:1.基本资料;2.参数选取及荷载工况;3.计算结果;3.1平台面板;3.2平台型钢I22a;3.3贝雷片 ;3.4分配梁 ;3.4桩间联结...
最新回复:清平平老师 2021-09-22 
匿名
发表于2021-09-22
262人浏览
1人跟帖
等级: 
本资料为:321型贝雷梁施工栈桥结构验算书2019,格式为Word,共27页,编制于2019年。一、计算书目录:1. 工程概况;2. 计算依据;3. 荷载标准;4. 栈桥结构检算;5. 钢管桩竖向承载力检算 ;6.横向稳定性复核;7.检算结果;二、...
最新回复:清平平老师 2021-09-22 
匿名
发表于2021-09-18
144人浏览
1人跟帖
等级: 
资料桥梁临时结构计算(临时固结内力计算)小软件,填写相关数据,一键自动计算。施工现场技术人员可参考。通过对桥梁0号梁段自重、节段自重、合龙段自重、箱梁宽、支座中心距、节段高度等数据填写,就可以计算出单侧混凝土超灌...
最新回复:向前chonga 2021-09-18 
匿名
发表于2021-09-18
110人浏览
1人跟帖
等级: 
资料临时基础承载力计算小程序,主要针灌注桩基础的土层平均摩阻力计算、桩基承载力计算;素混凝土扩大基础基础承载力计算。双击即可进行计算。界面截图临时基础承载力计算.png
最新回复:向前chonga 2021-09-18 