室内节点详图是构成大样图的重要条件,有了好的节点详图才能保证大样图的质量,本小组内包含了各种节点详图的资料,仅供参考。
- 203412成员
- 10510主题
- 13111回复
- 0热度

发表于2010-06-04
13422人浏览
2人跟帖
等级: 
别墅钢梯详图 (2张) 包括:平面图 钢梯立面图 钢梯节点大样
最新回复: 2016-11-28 
发表于2008-04-16
3292人浏览
2人跟帖
等级: 
大厅拦河详图
最新回复: 2016-11-24 
发表于2011-01-18
13285人浏览
4人跟帖
等级: 
扁钢实木楼梯扶手详图
最新回复: 2016-08-29 
发表于2008-12-02
14940人浏览
2人跟帖
等级: 
玻璃栏杆扶手详图
最新回复: 2016-07-06 
发表于2009-11-20
8469人浏览
4人跟帖
等级: 
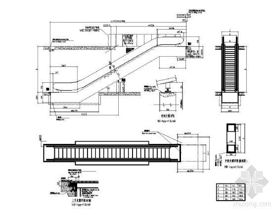
自动扶梯详图
最新回复: 2016-07-04 
发表于2010-12-09
5804人浏览
4人跟帖
等级: 
消防楼梯详图
最新回复: 2016-06-16 
发表于2010-10-28
13336人浏览
3人跟帖
等级: 
银行钢化玻璃扶手楼梯详图
最新回复: 2016-05-16 
发表于2010-12-23
3373人浏览
2人跟帖
等级: 
共(7张)
最新回复: 2016-04-25 
发表于2008-03-05
9946人浏览
3人跟帖
等级: 
不锈钢楼梯栏杆详图Ⅳ 包括:平面、立面、剖面图
最新回复: 2016-04-07 
发表于2008-03-05
4942人浏览
2人跟帖
等级: 
不锈钢楼梯栏杆详图Ⅲ 包括:平面、立面、剖面图
最新回复: 2016-04-07 
发表于2008-03-05
4574人浏览
3人跟帖
等级: 
不锈钢楼梯栏杆详图Ⅱ 包括:平面、立面、剖面图
最新回复: 2016-03-17 
发表于2011-01-14
4009人浏览
4人跟帖
等级: 
精装别墅楼梯详图
最新回复: 2015-12-10 
发表于2008-10-17
5963人浏览
3人跟帖
等级: 
玻璃护栏详图
最新回复: 2015-11-20 
发表于2010-06-24
7237人浏览
2人跟帖
等级: 
机场不锈钢栏杆大样
最新回复: 2015-06-08 
发表于2008-03-05
8345人浏览
2人跟帖
等级: 
自动扶梯详图大样Ⅰ 包括:平面、立面、剖面图
最新回复: 2015-02-04 
发表于2010-02-07
4349人浏览
2人跟帖
等级: 
欧式别墅楼梯详图
最新回复: 2015-02-01 
发表于2007-02-01
6349人浏览
3人跟帖
等级: 
栏杆施工图
最新回复: 2014-12-17 
发表于2008-10-29
3306人浏览
3人跟帖
等级: 
实木楼梯详图
最新回复: 2014-09-15 
发表于2010-09-26
2850人浏览
2人跟帖
等级: 
简洁楼梯详图
最新回复: 2014-09-05 
发表于2007-12-28
14687人浏览
2人跟帖
等级: 
旋梯详图 包括:平面、立面、剖面、大样图。
最新回复: 2014-08-14 