室内节点详图是构成大样图的重要条件,有了好的节点详图才能保证大样图的质量,本小组内包含了各种节点详图的资料,仅供参考。
- 203412成员
- 10510主题
- 13111回复
- 0热度

发表于2009-04-02
5350人浏览
2人跟帖
等级: 
桑拿洗浴吊顶详图(29张) 包括:(更衣室,搓澡区,站座浴区,大厅,洗浴区)吊顶平面图及剖面图
最新回复: 2014-08-04 
发表于2012-11-12
2874人浏览
2人跟帖
等级: 
某欧式大户型顶棚详图
最新回复: 2014-08-04 
发表于2010-01-21
3236人浏览
2人跟帖
等级: 
东南亚风格客厅天花详图 泰柚饰面+柚木切片铺贴+轻钢龙骨+夹板结构
最新回复: 2014-08-04 
发表于2010-05-27
2687人浏览
2人跟帖
等级: 
夜总会KTV房天花详图Ⅰ 天花平面及剖面。
最新回复: 2014-08-04 
发表于2010-05-27
2133人浏览
2人跟帖
等级: 
夜总会KTV房天花详图Ⅱ
最新回复: 2014-08-04 
发表于2010-05-27
2232人浏览
2人跟帖
等级: 
夜总会KTV房天花详图Ⅲ 天花平面及剖面
最新回复: 2014-08-04 
发表于2011-03-07
4598人浏览
2人跟帖
等级: 
夜总会大厅吊顶详图
最新回复: 2014-08-04 
发表于2011-03-07
3129人浏览
2人跟帖
等级: 
夜总会过道吊顶详图
最新回复: 2014-08-04 
发表于2011-03-17
2500人浏览
2人跟帖
等级: 
夜总会包厢天花节点③
最新回复: 2014-08-04 
发表于2011-03-17
2349人浏览
2人跟帖
等级: 
夜总会包厢天花节点②
最新回复: 2014-08-04 
发表于2011-03-17
4825人浏览
2人跟帖
等级: 
夜总会包厢天花节点①
最新回复: 2014-08-04 
发表于2006-07-21
8688人浏览
2人跟帖
等级: 
吊顶收边-平行于铝格栅断面
最新回复: 2014-07-31 
发表于2008-01-07
1336人浏览
3人跟帖
等级: 
会议室吊顶详图 包括:平面、剖面图。
最新回复: 2014-06-24 
发表于2008-03-06
4002人浏览
2人跟帖
等级: 
上人轻钢龙骨吊装示意图 包括:平面、剖面图
最新回复: 2014-05-31 
发表于2008-03-11
1323人浏览
2人跟帖
等级: 
报建大厅吊顶详图 包括:平面、剖面图
最新回复: 2014-05-11 
发表于2006-07-18
2828人浏览
2人跟帖
等级: 
烟感探头处吊顶面
最新回复: 2014-04-07 
发表于2010-01-11
2491人浏览
2人跟帖
等级: 
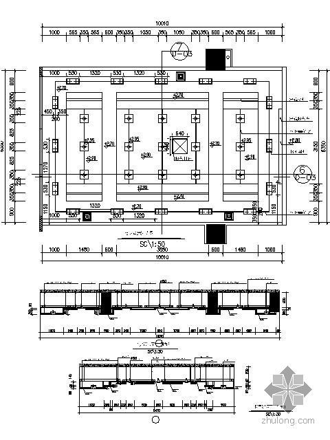
会议室天花详图
最新回复: 2014-03-25 
发表于2008-10-17
23545人浏览
2人跟帖
等级: 
矿棉板与顶板节点详图
最新回复: 2014-02-26 
发表于2009-02-06
2056人浏览
2人跟帖
等级: 
洗浴大堂吊顶详图 装饰材料:黑桃木条 透光石
最新回复: 2014-02-13 
发表于2012-11-28
16027人浏览
1人跟帖
等级: 
吊顶包梁剖面图
最新回复: 2012-11-28 