艺术设计
工程技术
机电设备
项目与管理
BIM学院
发帖说明
本小组需要加入才可以发帖
关注
发资料
了解更多
还可以输入 40 字
加入小组后才可以发帖哦,现在就加入?
检索到225条内容
0
石材幕墙沉降缝节点
qqt01xxf 发表于2006-08-09 3075人浏览 1人跟帖 等级: 来自:室内节点详图
不锈钢板幕墙安装节点
nnnnvvvv 发表于2006-07-25 2323人浏览 1人跟帖 等级: 来自:室内节点详图
nnnnvvvv 发表于2006-07-25 2625人浏览 1人跟帖 等级: 来自:室内节点详图
nnnnvvvv 发表于2006-07-25 2117人浏览 1人跟帖 等级: 来自:室内节点详图
全隐框幕墙悬窗横、竖向安装节点
dublin 发表于2006-07-06 2850人浏览 1人跟帖 等级: 来自:室内节点详图
隐幕墙边部节点大样
dublin 发表于2006-07-06 1724人浏览 1人跟帖 等级: 来自:室内节点详图
全玻地簧门横、竖向节点
dublin 发表于2006-07-06 3591人浏览 1人跟帖 等级: 来自:室内节点详图
全隐框幕墙立柱立面安装节点
dublin 发表于2006-07-06 2172人浏览 1人跟帖 等级: 来自:室内节点详图
幕墙分格大样图
dublin 发表于2006-07-06 1878人浏览 1人跟帖 等级: 来自:室内节点详图
肋驳接式幕墙顶、底部节点
dublin 发表于2006-07-06 2212人浏览 1人跟帖 等级: 来自:室内节点详图
肋驳接式幕墙顶部节点
dublin 发表于2006-07-06 1750人浏览 1人跟帖 等级: 来自:室内节点详图
点幕底部安装节点
dublin 发表于2006-07-06 1436人浏览 1人跟帖 等级: 来自:室内节点详图
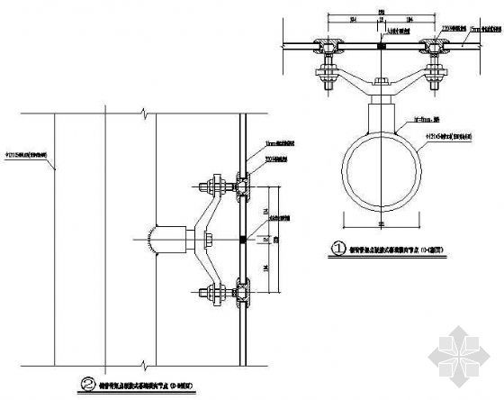
钢管骨架点驳接式幕墙顶部节点
dublin 发表于2006-07-06 1790人浏览 1人跟帖 等级: 来自:室内节点详图
钢管骨架点驳接式幕墙立面安装大样
dublin 发表于2006-07-06 2700人浏览 1人跟帖 等级: 来自:室内节点详图
76系列玻璃窗竖向安装节点
dublin 发表于2006-07-05 2665人浏览 1人跟帖 等级: 来自:室内节点详图
140系列隐幕顶部安装节点
dublin 发表于2006-07-05 1702人浏览 1人跟帖 等级: 来自:室内节点详图
玻璃幕墙节点
dublin 发表于2006-07-05 1888人浏览 1人跟帖 等级: 来自:室内节点详图
玻璃幕墙节点1
dublin 发表于2006-07-05 1538人浏览 1人跟帖 等级: 来自:室内节点详图
70系列隐幕底部节点
dublin 发表于2006-07-05 1310人浏览 1人跟帖 等级: 来自:室内节点详图
玻璃幕墙—安装节点
wangyou168 发表于2006-07-04 1631人浏览 1人跟帖 等级: 来自:室内节点详图
详图
立面
平面
装饰门
窗
顶棚
装饰柱
楼梯
栏杆扶手
幕墙
玻璃幕墙
外装饰
家装类
玄关
电视墙
衣柜
家具
办公类
宾馆类
酒店设计
餐饮类
吧台
娱乐类
KTV包房
洗浴健身类
商业类
医疗类
展示类
文教类
申请加入管理团队
组长
会跳舞的红鞋
管理员
Always72
紫色的天空21
静静的思考00
啊啊啊虫
啊卡的春天
选择想要与"室内节点详图"交换链接的小组
忘记选择小组啦,小伙伴们很困惑,还是选一个再交换吧~
个人擅长:
专业
艺术设计类
适用于建筑学专业,在设计机构从事建筑设计和城市规划的人员
适用于从事室内装饰装修设计的人员
适用于从事园林景观规划与设计的人员
适用于从事室内外照明设计与施工的人员
适用于从事三维建模、渲染及后期制作的人员
工程技术类
适用于在设计机构从事建筑结构设计与科研的专业人员
适用于从事房屋建筑的土建施工、装饰施工、钢结构与幕墙施工人员
适用于从事路桥与市政工程的设计、施工的人员
适用于从事勘察与岩土工程的设计、施工的人员
适用于从事水利水电工程设计、施工、管理的专业人员
机电设备类
适用于从事输配电、建筑电气与智能化的设计、施工的人员
适用于从事给排水、消防、水处理的设计、施工人员
适用于从事暖通、空调、动力、制冷的设计、施工的人员
造价与管理类
适用于从事房地产策划、开发与管理的人员
适用于造价工程师及概预算人员
从事房建、市政路桥、园林、水电安装的监理人员
从事工程技术、经营、质量、安全管理的专业人员
其他类别
销售建筑材料与建筑设备的专业人员
退出管理团队
您将失去的身份,确定退出?