匿名
发表于2016-08-05
12014人浏览
2人跟帖
等级: 
(31张) 包含:平面图(平面配置图、平面尺寸图、天花配置图、天花尺寸图、地面配置图、插座点位图、);立面图
最新回复:hzf720114 2017-04-25 
匿名
发表于2016-07-26
8146人浏览
3人跟帖
等级: 
(609张) 包括:(1#-8#楼)封面;设计说明、装饰材料表;1、2单元-1-14层(电梯厅原始平面图、电梯厅平面及铺地图、电梯厅天花平面图、地面铺设图、隔墙尺寸及索引图;立面图(1、2单元1-14层前室、1、2单元1层门厅);大...
最新回复:a421127182 2017-09-26 
匿名
发表于2016-07-08
8881人浏览
2人跟帖
等级: 
(20张) 包含:平面图(平面布置图、天花布置图、天花尺寸图、灯具尺寸图、开关线路图、地拼布置图、插座定位图);大堂立面图、大堂里面剖面图
最新回复:hzf720114 2017-04-25 
匿名
发表于2016-06-29
6387人浏览
等级: 
(46张) 包含:目录、平面图(天花图、包房、卫生间、电梯厅、开放式餐厅、咖啡厅、爵士吧、)、立面图(餐厅、走廊、1-6包房、卫生间、电梯厅、开放式餐厅、咖啡厅、爵士吧、) 像素:2474x1664
最新回复:匿名 2016-06-29 
匿名
发表于2016-06-08
6853人浏览
1人跟帖
等级: 
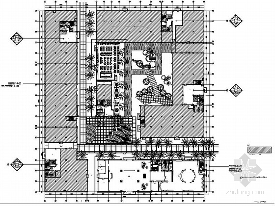
(31张) 包含:1-2层平面图、1-2天花平面图、建筑效果图、大堂效果图、接待区效果图、接待区气氛图、沙盘区效果图、沙盘区气氛图、影音体验馆效果图、VIP活动区效果图、VIP房效果图、负一层效果图、自助餐区立面图、 像...
最新回复:aidebudala 2016-06-08 
匿名
发表于2016-03-21
6129人浏览
1人跟帖
等级: 
(38张) 包含:封面;目录;设计说明;施工说明;用料做法表;材料表;平面图(1#1层、1#7—14层、2#1层、2#6—22层):(原始平面图、平面布置图、天花反映图、天花灯具定位图、地坪铺设图、室内装饰资料);立面图(走廊、...
最新回复:songpeiyue 2016-03-21 
匿名
发表于2016-03-04
6281人浏览
1人跟帖
等级: 
(77张) 包含:图纸封面;目录;装饰门表;门详图;给排水系统图;平面图(1-3层):(总平面图、墙体定位图、地面铺装图、天花平面图、插座及信息点位图、灯具连线图);立面图(政务大厅、走廊、卫生间、接待室);电气系...
最新回复:aidebudala 2016-03-04 
匿名
发表于2016-03-02
5350人浏览
1人跟帖
等级: 
(44张) 包含:封面;目录;门表图;图纸说明;施工说明;建筑结构用料做法;材料表;机电图;平面图(地下室、一层、标准层):(平面布置图、天花反映图、天花灯具布置图、地坪铺设图);立面图(门厅、电梯厅、走廊、前室...
最新回复:songpeiyue 2016-03-02 
匿名
发表于2016-02-13
5611人浏览
1人跟帖
等级: 
(30张) 包括:目录、材料表、(站厅层、站台层):(平面布置图、地面铺装图、顶面布置图);立面图:(站厅层、站台层)
最新回复:13521071622 2016-02-13 
匿名
发表于2016-02-11
5922人浏览
1人跟帖
等级: 
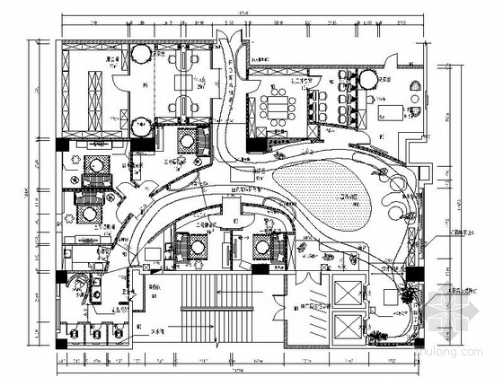
(43张) 包含:图纸封面;图纸目录表;门表;平面图(1-2层):(平面布置图、天花布置图、天花灯具图、灯具开关连线图、插座布置图、地面铺贴图、放线图、索引图);立面图(茶水间、太空舱、摄影间、化妆间、员工休息是、...
最新回复:songpeiyue 2016-02-11 
匿名
发表于2015-12-15
7997人浏览
1人跟帖
等级: 
(188张) 包括:封面、图纸目录、设计说明、用料表、圣坛(平面布置图及索引图、平面布置图(传统式、圆桌式、会议式)、综合地面图、横纵剖面图);(平面定位放大图、完成面定位放大图、铺地尺寸放大图、设备末端平面定位...
最新回复:13521071622 2015-12-15 
匿名
发表于2015-12-14
9294人浏览
3人跟帖
等级: 
(43张) 包含:封面、图纸目录、设计技术说明、站台层站厅层平面图(平面布置图、地铺图、天花图、ABC号出入口地面铺装图、ABC号出入口天花图、公共区卫生间平面、公共区卫生间地面铺装及索引、公共区卫生间天花图);立面...
最新回复:269543548 2020-05-30 
匿名
发表于2015-11-19
4652人浏览
1人跟帖
等级: 
(78张) 包括:设计说明、-1-5层(平面图、顶面图、灯具定位图、顶面图);立面图:(户籍大厅、门厅、违法处理大厅、维森国际、楼自己听、小会议室、荣誉室、备寝室、教导员室、包厢、视频监控室);详图...
最新回复:13521071622 2015-11-19 
匿名
发表于2015-11-18
4855人浏览
1人跟帖
等级: 
(10张) 包括:(站台层、站厅层):(平面布置图、综合天花布置图);剖立面图;大样图... 另附:6张效果图(站台层、站厅层) 像素:840X560
最新回复:13521071622 2015-11-18 
匿名
发表于2015-11-12
7452人浏览
1人跟帖
等级: 
(166张) 包括:封面、目录、施工设计说明、材料范例表;1-4层(建筑放样图、墙体拆改图、前提新建图、平面布置图、地面物料图、地面铺装尺寸图、天花反射图、天花尺寸图、立面索引图、给排水平面图、插座平面图);立面图:...
最新回复:13521071622 2015-11-12 
匿名
发表于2015-11-10
9598人浏览
1人跟帖
等级: 
(148张) 包括:1-2层(平面布置图、配电系统图、天花布置图、照明布置图、插座布置图、给排水布置图、应急照明布置图、空调布置图、消防布置图、给排水布置图、平面索引图);立面图:(大厅、外墙、办公室、母婴室、医疗...
最新回复:13521071622 2015-11-10 
匿名
发表于2015-11-06
4818人浏览
1人跟帖
等级: 
(87张) 包括:1-11号楼公共区域装修(电梯厅、门厅):(平面图、顶面图);大样图...
最新回复:13521071622 2015-11-06 
匿名
发表于2015-11-05
2848人浏览
1人跟帖
等级: 
(152张) 包括:设计说明、材料做法表;1-3层:(总平面图、总顶面图、墙体定位图、平面布置图、顶面布置图、地面布置图);给排水装修设计施工说明及图例、1-5层(给排水平面图、弱电平面图、配电系统图、照明平面图);综...
最新回复:13521071622 2015-11-05 
匿名
发表于2015-11-05
3250人浏览
1人跟帖
等级: 
(105张) 包括:1-3层:(平面布置图、地面铺装图、顶面布置图、隔墙尺寸图、给排水及消火栓平面图、喷淋平面图、插座布置图、照明平面图、强电平面图、弱电平面图);立面图:(业态展示大厅、门厅、物业用房、经理间、当...
最新回复:13521071622 2015-11-05 
匿名
发表于2015-11-04
4506人浏览
1人跟帖
等级: 
(148张) 包括:1~19号楼电梯厅(平面布置图、顶面布置图、地拼布置图、灯光连线图、立面图);大样图...
最新回复:13521071622 2015-11-04 