本小组包含各类型娱乐空间装修设计施工图,你可以在这里找你想要的资料,也可以发表你的设计作品,方便自己帮助他人。
- 197850成员
- 679主题
- 1126回复
- 0热度

发表于2012-06-15
2447人浏览
1人跟帖
等级: 
(95张) 包括:目录,图例说明,房型分配表,施工图说明,原始图,平面图,墙体放线图,天花图,公区:(平面、天花、地铺、立面索引图);大堂,过道,ABCDEF包房,(平面、天花、地铺、立面图,剖面图),(门、接待台、...
最新回复: 2012-06-15 
发表于2012-06-06
3002人浏览
2人跟帖
等级: 
(63张) 包括:1-2层(平面图、天花图、立面索引图),1层:1-9号通道立面图及剖面图,,2层:1-14号通道立面图及剖面图,1-10号包厢(平面图、天花图、立面图及详图)
最新回复: 2014-07-28 
发表于2012-05-25
1408人浏览
1人跟帖
等级: 
(19张) 包括:封面、材料表、施工设计说明、总平面图、立面图(过道、VIP包间)
最新回复: 2012-05-25 
发表于2012-03-21
3671人浏览
3人跟帖
等级: 
(49张) 包括:封面、图纸目录、平面图、插座图、排风扇电路图、音响图、墙面图;立面图(前厅、走道、卫生间、9个包间)
最新回复: 2015-07-05 
发表于2012-02-28
2062人浏览
1人跟帖
等级: 
(17张) 包括:施工设计说明、图纸目录、平面图、开线图、地坪图、天花图;KTV立面图及天花节点。
最新回复: 2012-02-28 
发表于2012-02-27
2562人浏览
2人跟帖
等级: 
(118张) 包括:封面、施工设计说明、图纸目录、立面图(门牌、门头、过道、公共卫生间、23个包厢)及(门牌、门、包厢天花)节点详图。
最新回复: 2012-05-31 
发表于2012-02-22
4144人浏览
5人跟帖
等级: 
(25张) 包括:平面图、地坪图、顶面图、立面索引图、立面图(演讲大厅、KTV包房、KTV大厅) 附3张效果图(像数3000~2000)
最新回复: 2014-11-17 
发表于2012-01-12
1808人浏览
1人跟帖
等级: 
(9张) 包括:平面图、天花图、走廊立面图
最新回复: 2012-01-12 
发表于2011-12-26
1631人浏览
1人跟帖
等级: 
(44张) 包括:封面、图纸目录、工程概况、施工设计说明、1-3层(平面图、顶面尺寸图、立面索引图);立面图(大厅、多个包间、过道、外观)及(门、服务台)节点
最新回复: 2011-12-26 
发表于2011-12-01
1685人浏览
1人跟帖
等级: 
(35张) 包括:施工设计说明、图纸目录、2层(平面图、隔墙放线图、顶面图、索引图、照明图、应急照明图、空调路线图);立面图(走廊、服务台背景、包厢、会议室)及(服务台、天花)节点 附2张效果图。
最新回复: 2011-12-01 
发表于2011-10-28
5246人浏览
11人跟帖
等级: 
(116张) 包括:大厅及副楼1层及2层(平面图、地坪图、天花图、线路图、消防图);立面图(大厅、9个包房、3个VIP包房) 附7张效果图(大厅、包房)
最新回复: 2017-01-31 
发表于2011-10-13
5368人浏览
7人跟帖
等级: 
(217张) 包括:封面、图纸目录、施工设计说明、材料表、2层(平面图、天花图、天花尺寸图、灯位尺寸图、地坪图、隔墙尺寸图、立面索引图、插座图、给排水图、空调图);立面图(接待大厅、超市、10个包间、VIP总统套房、V...
最新回复: 2015-07-05 
发表于2011-09-28
3043人浏览
1人跟帖
等级: 
(238张) 包括:封面、图纸目录、施工设计说明、材料表、电路系统图、图例表、2-3层(原始图、结构尺寸图、平面图、地面图、天棚图、电路图、监控图、给排水图);立面图(门头、卫生间、超市、公共卫生间、服务台、13个包...
最新回复: 2011-09-28 
发表于2011-09-23
3131人浏览
2人跟帖
等级: 
(115张) 包括:封面、施工设计说明、材料表、图纸目录、平面图、结构图、地坪图、顶面图、消防图、电路图、弱电图、系统图;立面图(走道、包间、豪华包间、中包、小包、员工储物间、超市、卫生间……)及装饰柱节点。
最新回复: 2011-11-01 
发表于2011-08-17
14326人浏览
17人跟帖
等级: 
内容介绍: KTV装修工程,工程地点位于商业地段1层,框架结构,建筑面积为600㎡。装饰使用功能,内设接待区、多功能舞、10间VIP包房、等多功能的KTV娱乐所。本工程设计装饰风格新颖、用材高档豪华、区域布置合理、公用通道...
最新回复: 2015-05-06 
发表于2011-05-05
2083人浏览
1人跟帖
等级: 
(80张) 包括:1-6层平面图、地坪图、墙体定位图、天棚图、墙体顶位图、应急照明图、供电图、照明、下水管道图;立面图(收银台、大厅、27个包间)
最新回复: 2011-05-05 
发表于2011-04-15
6707人浏览
9人跟帖
等级: 
凯悦大酒店豪华KTV空间施工图(90张) 位于酒店内四~5层 包括:施工图说明、目录、空调平面、平面图、天花图、天花尺寸图、地拼图、尺寸图、索引图。众多个KTV包厢、公共走廊、大厅、演义吧节点(天花、吧台、...
最新回复: 2012-02-20 
发表于2011-03-07
2853人浏览
2人跟帖
等级: 
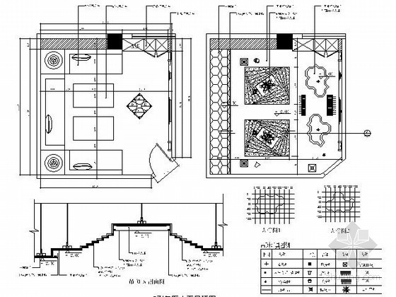
(31张) 包括:六套包房各(平面图、天花图、立面及节点图)。
最新回复: 2011-05-31 
发表于2011-03-03
1734人浏览
1人跟帖
等级: 
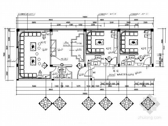
(14张) 包括:四个不同房型包间(平面图、天花图、立面及节点)
最新回复: 2011-03-03 
发表于2011-03-02
1369人浏览
1人跟帖
等级: 
(7张) 包括:平面图、天花图、各装饰立面及节点。
最新回复: 2011-03-02 