匿名
发表于2020-04-14
255人浏览
1人跟帖
等级: 
[浙江]杭州爱德医院主副楼室内装饰设计施工图资料内容包括:CAD施工图(图纸目录,施工图设计说明、平面图,立面图,节点大样图等图纸)材料表,物料书等十二层平面布置及索引图一层墙体定位图二层墙体定位图六层平面布置及索引...
最新回复:果果珊妮 2020-04-14 
匿名
发表于2020-04-13
4015人浏览
8人跟帖
等级: 
一键下载!10套精选医院室内设计方案800M本资料为10套精选医院室内设计方案,资料主要包括施工图,效果图,实景图等,以下是部分方案效果图,点击下方【下载附件】即可一键下载!1、天津医院室内装修全套CAD施工图+机电2、医院急...
最新回复:ling5april 2021-03-16 
匿名
发表于2020-03-31
1109人浏览
2人跟帖
等级: 
该资料为武东医院精神专科CAD施工图+效果图+电路,图纸部分包括武东医院大楼一层、二层、八层精神专科门诊等部分。资料内容包括:施工图(目录、平面图、立面图、天花图、节点大样图、机电图等。),效果图。01平面布置图02综合...
最新回复:ling5april 2021-03-16 
匿名
发表于2020-03-30
1947人浏览
3人跟帖
等级: 
天津医院室内装修全套CAD施工图+机电图纸内容包括:材料表,图例表,施工工艺说明表,材料表,平面图,立面图,详图,机电图,剖面图,大样图,节点图,门片图,天花综合图。01一层平面布置图02一层地面铺装图03一层天花平面图04...
最新回复:不能吃不完美 2020-07-21 
匿名
发表于2020-03-30
392人浏览
1人跟帖
等级: 
贵州道真中医院设计施工图+机电+物料图纸内容包括:CAD施工图(图纸目录,施工图设计说明、平面图,立面图,节点大样,机电,给排水,插座点位,开关定位等图纸)材料表,设计方案,物料书等。01一层平面布置图02二层平面布置图...
最新回复:三也君 2020-03-30 
匿名
发表于2020-03-30
894人浏览
1人跟帖
等级: 
温州和平整形医院效果图+施工图图纸内容包括:大厅、接待室、手术治疗室、输液室等施工图(平面图、天花图、地面铺装图、立面图、节点大样图、)效果图。01六层平面家具布置图02六层天花布置图03六层地面铺装图04六层间墙尺寸图...
最新回复:三也君 2020-03-30 
匿名
发表于2020-03-30
1181人浏览
1人跟帖
等级: 
深圳港龙医院全套CAD设计施工图图纸内容包括:A、B、C三栋共十层施工图纸(施工说明、物料明细、平面图、天花图、地铺图、立面图、照明、给排水、节点大样图等)01一层大厅平面布置图02一层大厅地面铺装图03一层大厅天花布置图0...
最新回复:三也君 2020-03-30 
匿名
发表于2020-03-30
1308人浏览
1人跟帖
等级: 
上海某医疗健康体检中心全套设计施工图资料内容包含:VIP卫生间、采血区、男更衣室、女更衣室、热CT室、中医问诊、专家咨询、总检等CAD施工图(图纸目录,施工图设计说明、平面图,立面图,节点大样等)材料表,物料书等01平面布...
最新回复:三也君 2020-03-30 
匿名
发表于2020-03-30
657人浏览
1人跟帖
等级: 
某大型医院全套设计施工图资料内容包含:CAD施工图(图纸目录,施工图设计说明,平面图,天花图,隔墙图,立面图,节点大样,结构图纸,门诊,医技,住院楼等)材料表等01一层平面布置图02一层综合天花图03一层地面铺装图04一层...
最新回复:三也君 2020-03-30 
匿名
发表于2020-03-19
4385人浏览
4人跟帖
等级: 
图纸内容包括:施工图(暖通,电气,照明,动力等),施工说明等文件。01一号病房楼一层通风平面02一号病房楼二层通风平面03一号病房楼三层通风平面04一号病房楼四层通风平面05二号楼屋顶通风平面06二号楼一层通风平面07二号楼三...
最新回复:轻轻的走过2017 2021-01-25 
匿名
发表于2020-03-16
640人浏览
1人跟帖
等级: 
[上海]长海医院门诊楼装饰设计工程施工图+实景拍摄资料内容包含:CAD施工图(图纸目录,施工图设计说明、平面图,立面图,节点大样等工程施工图纸)材料表,物料书,实景拍摄等一层家具布置平面圖一层立面及门索引平面图一层墙面...
最新回复:果果珊妮 2020-03-16 
匿名
发表于2020-03-16
1021人浏览
1人跟帖
等级: 
[上海]KANLE医疗健康体检中心室内装饰项目施工图资料内容包含:VIP卫生间、控制室、数字胃肠、热CT室、中医问诊、专家咨询、总检等CAD施工图(图纸目录,施工图设计说明、平面图,立面图,节点大样等)材料表,物料书等平面布置...
最新回复:果果珊妮 2020-03-16 
小荆芹
发表于2020-03-09
1565人浏览
3人跟帖
等级: 
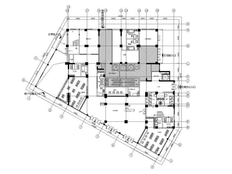
[重庆]酉阳县人民医院门急诊综合大楼装饰工程施工图资料内容包括:CAD施工图(图纸目录,施工图设计说明、平面图,立面图,节点大样图,电气,给排水等建筑图纸)招标文件,材料表,物料书,工程清单,限价清单等一层总平布置图...
最新回复:kingsieboy 2021-10-21 
匿名
发表于2020-03-06
714人浏览
1人跟帖
等级: 
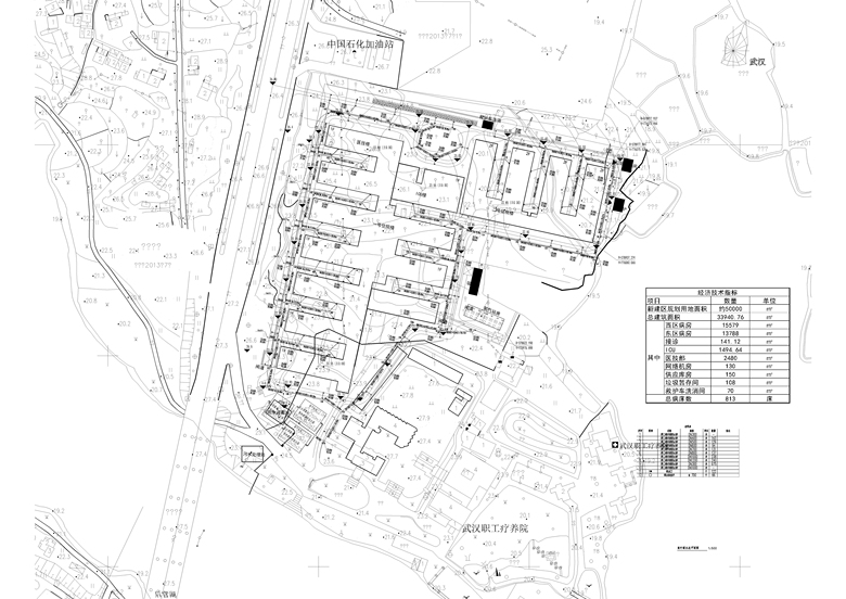
成都市公共卫生临床医疗中心三期项目规划方案资料内容包括:成都传染病医院规划方案PPT(场地周边概况,拟选用地限制,拟选址用地,方案可行性结论,拟选址用地一实验性方案,日照分析,场地内部现有建筑概况,方案区域总图,医...
最新回复:果果珊妮 2020-03-06 
匿名
发表于2020-03-06
1508人浏览
1人跟帖
等级: 
[上海]浦东新区传染病医院住院医技楼装饰工程施工图资料内容包含:CAD施工图(图纸目录,施工图设计说明、平面图,建筑外立面,节点大样图,门窗大样,电气,给排水,火灾自动报警图等)图例表、材料表、系统图,设计方案,物料...
最新回复:果果珊妮 2020-03-06 
匿名
发表于2020-02-03
1562人浏览
4人跟帖
等级: 
北京小汤山医院全套暖通施工图纸资料内容包含:CAD施工图(图纸目录,施工图设计说明、平面图,节点大样,暖通,结构,疑似病房区,确诊病房区等建筑图纸)材料表,设计方案,物料书等右(东)侧小汤山医院疑似病区暖通平面图右...
最新回复:wlfarewell 2020-04-20 
匿名
发表于2020-02-03
1124人浏览
1人跟帖
等级: 
武汉雷神山医院电气,给排水,暖通全套图纸资料内容包含:CAD施工图(图纸目录,施工图设计说明、平面图,电气,给排水,暖通,结构,照明,动力系统,室外污废水排水管道及井布置等建筑图纸)PDF格式,材料表,设计方案,物料书...
最新回复:果果珊妮 2020-02-03 
匿名
发表于2020-02-03
2191人浏览
3人跟帖
等级: 
武汉火神山医院电气,给排水,暖通全套图纸资料内容包含:CAD施工图(图纸目录,施工图设计说明、平面图,电气,给排水,暖通,照明,动力系统,医技部分基础接地等建筑图纸)PDF格式,分体空调设备表,1#楼中间区域设备表,材料...
最新回复:不二观居 2020-02-18 
匿名
发表于2020-01-09
737人浏览
2人跟帖
等级: 
某医院全套室内装修工程设计项目施工图资料内容包含:CAD施工图(图纸目录,施工图设计说明,平面图,立面图,节点大样,结构图纸,门诊,医技,住院楼等)材料表等一层平面布置图一层墙体定位图一层综合天花图一层地面铺装图一...
最新回复:xifengdeweb 2020-03-06 
匿名
发表于2020-01-09
655人浏览
1人跟帖
等级: 
某人民医院室内装饰工程设计项目施工图资料内容包含:CAD施工图(图纸目录,施工图设计说明,平面图,立面图,节点大样,门诊楼一、二、五、六层及所有楼梯,医技楼一、二楼及所有楼梯等)材料表等一层平面图一层索引图一层天花...
最新回复:果果珊妮 2020-01-09 