匿名
发表于2020-07-06
226人浏览
1人跟帖
等级: 
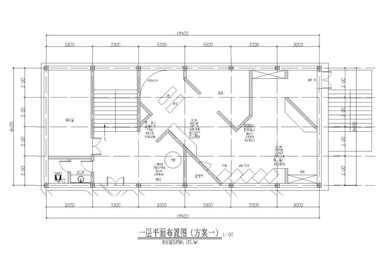
[重庆]重庆大学13762㎡十九层培训中心改扩建工程项目施工图资料内容包含:CAD施工图(图纸目录,施工图设计说明、平面图,立面图,节点大样等)材料表,物料表等一层平面布置图二层平面布置图四层平面布置图五层平面布置图七~十...
最新回复:果果珊妮 2020-07-06 
匿名
发表于2020-07-06
1080人浏览
1人跟帖
等级: 
[江苏]昆山800㎡澳洲绘本英语培训中心丨全套施工图+效果图丨71M丨2019资料内容包含:效果图,CAD施工图(图纸目录,施工图设计说明、平面图,立面图,节点大样,电气,给排水等)材料表等平面布置图地面铺装图天花布置图水路示意...
最新回复:果果珊妮 2020-07-06 
匿名
发表于2020-06-30
2785人浏览
1人跟帖
等级: 
本资料为[天津]综合性时尚幼儿园施工图_附效果图资料内容包含:室内设计CAD施工图(图纸目录,施工图设计说明,平面系统图,各个空间立面系统图,节点大样,强弱电等图纸)材料表,效果图等平面布置图墙体定位图天花布置图灯具布...
最新回复:一个捡来的ID 2020-06-30 
匿名
发表于2020-06-30
309人浏览
1人跟帖
等级: 
本资料为[江苏]迪卡坐标数学俱乐部施工图_附效果图资料内容包含:室内设计CAD施工图(封面,图纸目录,施工图设计说明、平面图,立面图,节点大样,强弱电等图纸)材料表,效果图等平面布置图墙体定位图地坪布置图综合天花图天花...
最新回复:一个捡来的ID 2020-06-30 
匿名
发表于2020-06-22
299人浏览
2人跟帖
等级: 
[广州]暨南大学知识产权人才基地建设项目施工图资料内容包含:CAD施工图(图纸目录,施工图设计说明、平面图,立面图,节点大样等)PDF格式,材料表,施工工程量清单,招标资料大全,项目招标控制价,效果图等首层平面布置图首层...
最新回复:tommyyhm 2020-09-22 
匿名
发表于2020-06-19
5220人浏览
1人跟帖
等级: 
[沈阳]法库520㎡文华书店室内装饰设计施工图+3D模型资料内容包含:效果图,CAD施工图(图纸目录,施工图设计说明、平面图,立面图,节点大样,电气,给排水,暖通等)材料表,物料表,效果图,3D模型,灯具表等一层平面布置图二...
最新回复:果果珊妮 2020-06-19 
匿名
发表于2020-06-19
2265人浏览
1人跟帖
等级: 
[辽宁]大连现代893㎡中信书店室内装修工程施工图资料内容包含:效果图,CAD施工图(图纸目录,施工图设计说明、平面图,立面图,节点大样,电气,给排水等)材料表,物料表等平面布置图地面铺装图天花布置图综合天花图强弱电点位...
最新回复:果果珊妮 2020-06-19 
匿名
发表于2020-06-13
1057人浏览
1人跟帖
等级: 
本资料为[广东]深圳湾天际音乐厅项目施工图_效果图资料内容包括;CAD施工图(平面布置图、夹层平面图,剖面图图纸),效果图等平面布置图夹层布置图剖面图玻璃幕一周-遮光幕效果图舞台幕布-吸声幕效果图舞台幕布-吸声幕效果图
最新回复:一个捡来的ID 2020-06-15 
匿名
发表于2020-06-08
1092人浏览
1人跟帖
等级: 
本资料为[江苏]培训中心洲绘本英语培训中心昆山店丨全套施工图+效果图丨资料内容包括;CAD全套施工图(封面,施工设计说明、目录、平面图、立面图、节点大样图,详图等图纸),材料表,效果图等平面布置图平面尺寸图天花布置图天...
最新回复:一个捡来的ID 2020-06-09 
匿名
发表于2020-06-04
1084人浏览
1人跟帖
等级: 
本资料为[吉林]四平马仁兴纪念馆施工图-效果图资料内容包括;CAD施工图(一二层平面布置图,立面索引图,系统立面图,局部施工图等),建筑SU模型,工程概算,PSD及PDF平面方案,方案资料,商务文件,现场照片,室内外效果图等一...
最新回复:一个捡来的ID 2020-06-05 
匿名
发表于2020-04-13
1240人浏览
1人跟帖
等级: 
[江苏]盐城师范学院新校区图书馆室内装饰设计施工图资料内容包含:CAD施工图(图纸目录,施工图设计说明、平面图,立面图,节点大样,给排水,暖通等)材料表,物料表,门窗表等一层平面图二层平面图三层平面图四层平面图五层平...
最新回复:果果珊妮 2020-04-13 
匿名
发表于2020-03-25
2133人浏览
1人跟帖
等级: 
[浙江]集士港镇中心幼儿园装饰设计施工图+施工拍摄资料内容包含:CAD施工图(图纸目录,施工图设计说明,平面图,立面图,节点大样等)施工拍摄等一层平面布置图一层天花布置图一层地面铺装图二层平面布置图三层平面布置图一层教...
最新回复:果果珊妮 2020-03-25 
匿名
发表于2020-03-20
4301人浏览
1人跟帖
等级: 
内容包含:施工图(平面图,剖面图,立面图等),效果图,sketch up模型。01一层平面图02二层平面图03三层平面图04屋顶平面图05立面图06立面图07剖面图08鸟瞰图09人视图10su模型11su模型
最新回复:三也君 2020-03-20 
匿名
发表于2020-03-11
626人浏览
1人跟帖
等级: 
[重庆]重庆大学虎溪校区信息技术科研楼项目施工图+招标文件资料内容包含:CAD施工图(图纸目录,施工图设计说明、平面图,立面图,节点大样,电气,给排水,门表等)材料表,物料书,材料品牌推荐表等一层平面布置图一层索引图一...
最新回复:果果珊妮 2020-03-11 
匿名
发表于2020-03-11
628人浏览
1人跟帖
等级: 
[北京]人民大会堂江苏厅室内装饰设计施工图+实景拍摄资料内容包含:江苏厅,接待厅CAD施工图(图纸目录,施工图设计说明、平面图,立面图,节点大样,门表等)材料表,效果图,实景拍摄等江苏厅平面布置图江苏厅平面尺寸图江苏厅...
最新回复:果果珊妮 2020-03-11 
匿名
发表于2020-03-03
1232人浏览
1人跟帖
等级: 
[山东]高唐县文化艺术中心剧场装饰设计工程施工图资料内容包含:专业舞台灯光、专业扩声、舞台机械及视频显示系统CAD施工图(图纸目录,施工图设计说明、平面图,剖面图,节点大样等)材料表等备用电源箱布置图灯光布置图灯光管...
最新回复:果果珊妮 2020-03-03 
匿名
发表于2020-01-16
2156人浏览
1人跟帖
等级: 
本资料为上海虹桥文化艺术中心+剧院_装修施工图资内容包含:效果图、内装图纸(平面、立面、剖面图等)、剧院设计方案、剧院软装清单等地下一层平面图一层平面图一层夹层平面图二层平面图三层平面图屋顶平面图立面图剧院设计方案...
最新回复:小棉袄8 2020-01-16 
匿名
发表于2020-01-10
620人浏览
1人跟帖
等级: 
[江苏]如东县人民法院审判综合楼审判厅施工图资料内容包含:CAD施工图(图纸目录,施工图设计说明、平面图,立面图,节点大样等)中法庭平面布置图中法庭天花布置图中法庭B型隔墙尺寸,地面材料图中法庭B型平面布置图中法庭B型天...
最新回复:果果珊妮 2020-01-10 
匿名
发表于2020-01-05
3049人浏览
2人跟帖
等级: 
本资料为上海万创坊知名地产方亭图书馆装修施工图+物料表方亭图书馆位于上海安亭新镇的“万创坊”社区商业中心,由知名地产与方所集团携手打造的方亭图书馆作为社区的配套设施坐落于沿街的一层。设计概念以“知识的纽带”为出发...
最新回复:Hlx565 2021-07-01 
匿名
发表于2019-12-20
1051人浏览
1人跟帖
等级: 
本资料为北方图书城奥莱店装修施工图+效果图+摄影实景资料内容包含:图书馆CAD平面图、家具模型、设计方案图、装修效果图及摄影实景图等一层平面布置图二层平面布置图吧台平面图吧台天花图吧台立面图北方图书城奥莱店设计方案图...
最新回复:无敌小太阳 2019-12-20 