匿名
发表于2020-09-21
1409人浏览
1人跟帖
等级: 
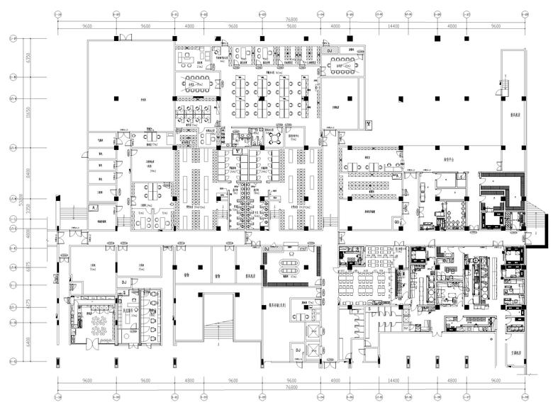
[杭州]娃哈哈未来城1300㎡培训中心装修工程丨高清效果图+CAD施工图+机电施工图丨283M丨2017.2.26资料内容包含:CAD施工图(图纸目录,施工图设计说明、平面图,立面图,节点大样,电气,给排水,空调,智能化图纸等)效果图,建...
最新回复:果果珊妮 2020-09-21 
匿名
发表于2020-09-10
2435人浏览
1人跟帖
等级: 
[安徽]肥东县大剧院文化馆建设工程项目内装施工图资料内容包含:CAD施工图(图纸目录,施工图设计说明、平面图,立面图,节点大样,电气,给排水,门表,建筑底图等)PDF版图纸,材料表等一层总平图二层总平图三层总平图四层总平...
最新回复:果果珊妮 2020-09-10 
匿名
发表于2019-10-14
1598人浏览
2人跟帖
等级: 
Foster+Partners-知名地产小径湾大学内装施工图_第一批次出图(A版)+物料表内容包含:内装施工图蓝图——第一批次出图(1#楼、2#楼、10#楼、11#12#楼)施工图A版,包含:施工说明、平面系统图、立面图、节点大样图、物料书选型...
最新回复:红枫似火 2020-09-09 
匿名
发表于2020-08-20
192人浏览
1人跟帖
等级: 
本资料为[济南]北埠某第一中心小学专用教室施工图资料内容包含:室内教室包含(心理辅助教室,少先队教室,科学教室,走廊等),室内CAD施工图(目录,平面系统图,立面系统图,节点大样图,平面布置图,天花布置图,索引图等其它...
最新回复:一个捡来的ID 2020-08-21 
匿名
发表于2020-08-17
204人浏览
1人跟帖
等级: 
[广东]惠州小径湾知名地产大学后勤区室内精装修施工图+效果图资料内容包含:效果图,CAD施工图(图纸目录,施工图设计说明、平面图,立面图,节点大样,电气,给排水等)PDF版图纸,材料表,物料表,材料样板等后勤区总平面布置...
最新回复:果果珊妮 2020-08-17 
匿名
发表于2020-07-07
747人浏览
1人跟帖
等级: 
[重庆]双桂湖片区青少年学生校外活动中心装修施工图+招标文件资料内容包含:CAD施工图(图纸目录,施工图设计说明、平面,立面图,节点大样,电气等)PDF版图纸,工程量清单,招标文件等一层平面布置图一层天花布置图一层地面铺...
最新回复:果果珊妮 2020-07-07 
匿名
发表于2020-07-06
440人浏览
1人跟帖
等级: 
[重庆]重庆大学产业技术研究院一期1~5号楼装饰施工图+招标文件资料内容包含:1~5号楼CAD施工图(图纸目录,施工图设计说明、平面图,立面图,节点大样,电气,给排水,暖通,绿建总平图,综合管网布置,场地构造图,绿化布置图等...
最新回复:果果珊妮 2020-07-06 
匿名
发表于2020-07-06
773人浏览
1人跟帖
等级: 
[重庆]重庆建筑工程职业学院实训基地、活动中心工程项目施工图资料内容包含:实训基地、活动中心CAD施工图(图纸目录,施工图设计说明、平面图,立面图,节点大样,电气,给排水等)材料表,物料表,招标文件,预算表,地勘图等...
最新回复:果果珊妮 2020-07-06 
匿名
发表于2020-07-06
226人浏览
1人跟帖
等级: 
[重庆]重庆大学13762㎡十九层培训中心改扩建工程项目施工图资料内容包含:CAD施工图(图纸目录,施工图设计说明、平面图,立面图,节点大样等)材料表,物料表等一层平面布置图二层平面布置图四层平面布置图五层平面布置图七~十...
最新回复:果果珊妮 2020-07-06 
匿名
发表于2020-07-06
1080人浏览
1人跟帖
等级: 
[江苏]昆山800㎡澳洲绘本英语培训中心丨全套施工图+效果图丨71M丨2019资料内容包含:效果图,CAD施工图(图纸目录,施工图设计说明、平面图,立面图,节点大样,电气,给排水等)材料表等平面布置图地面铺装图天花布置图水路示意...
最新回复:果果珊妮 2020-07-06 
匿名
发表于2020-06-30
2785人浏览
1人跟帖
等级: 
本资料为[天津]综合性时尚幼儿园施工图_附效果图资料内容包含:室内设计CAD施工图(图纸目录,施工图设计说明,平面系统图,各个空间立面系统图,节点大样,强弱电等图纸)材料表,效果图等平面布置图墙体定位图天花布置图灯具布...
最新回复:一个捡来的ID 2020-06-30 
匿名
发表于2020-06-30
309人浏览
1人跟帖
等级: 
本资料为[江苏]迪卡坐标数学俱乐部施工图_附效果图资料内容包含:室内设计CAD施工图(封面,图纸目录,施工图设计说明、平面图,立面图,节点大样,强弱电等图纸)材料表,效果图等平面布置图墙体定位图地坪布置图综合天花图天花...
最新回复:一个捡来的ID 2020-06-30 
匿名
发表于2020-06-19
5220人浏览
1人跟帖
等级: 
[沈阳]法库520㎡文华书店室内装饰设计施工图+3D模型资料内容包含:效果图,CAD施工图(图纸目录,施工图设计说明、平面图,立面图,节点大样,电气,给排水,暖通等)材料表,物料表,效果图,3D模型,灯具表等一层平面布置图二...
最新回复:果果珊妮 2020-06-19 
匿名
发表于2020-06-19
2265人浏览
1人跟帖
等级: 
[辽宁]大连现代893㎡中信书店室内装修工程施工图资料内容包含:效果图,CAD施工图(图纸目录,施工图设计说明、平面图,立面图,节点大样,电气,给排水等)材料表,物料表等平面布置图地面铺装图天花布置图综合天花图强弱电点位...
最新回复:果果珊妮 2020-06-19 
匿名
发表于2020-06-13
1057人浏览
1人跟帖
等级: 
本资料为[广东]深圳湾天际音乐厅项目施工图_效果图资料内容包括;CAD施工图(平面布置图、夹层平面图,剖面图图纸),效果图等平面布置图夹层布置图剖面图玻璃幕一周-遮光幕效果图舞台幕布-吸声幕效果图舞台幕布-吸声幕效果图
最新回复:一个捡来的ID 2020-06-15 
匿名
发表于2020-06-08
1092人浏览
1人跟帖
等级: 
本资料为[江苏]培训中心洲绘本英语培训中心昆山店丨全套施工图+效果图丨资料内容包括;CAD全套施工图(封面,施工设计说明、目录、平面图、立面图、节点大样图,详图等图纸),材料表,效果图等平面布置图平面尺寸图天花布置图天...
最新回复:一个捡来的ID 2020-06-09 
匿名
发表于2020-03-25
2133人浏览
1人跟帖
等级: 
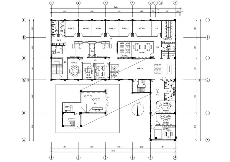
[浙江]集士港镇中心幼儿园装饰设计施工图+施工拍摄资料内容包含:CAD施工图(图纸目录,施工图设计说明,平面图,立面图,节点大样等)施工拍摄等一层平面布置图一层天花布置图一层地面铺装图二层平面布置图三层平面布置图一层教...
最新回复:果果珊妮 2020-03-25 
匿名
发表于2020-03-20
4301人浏览
1人跟帖
等级: 
内容包含:施工图(平面图,剖面图,立面图等),效果图,sketch up模型。01一层平面图02二层平面图03三层平面图04屋顶平面图05立面图06立面图07剖面图08鸟瞰图09人视图10su模型11su模型
最新回复:三也君 2020-03-20 
匿名
发表于2018-07-20
5912人浏览
2人跟帖
等级: 
内容包含:平面图(1-3F平面布置图,天花布置图,地坪饰面图,隔墙尺寸图,天花灯具定位图,索引图,开关点位图);立面图(展厅,大厅,卫生间,小班,中班,大班,活动室,室外),剖面图,详图,大样图,封面,目录,设计说明...
最新回复:mxwyq888 2020-03-19 
匿名
发表于2018-11-19
6846人浏览
2人跟帖
等级: 
广州某知名品牌儿童少儿青年培训机构全套施工图效果图包含:设计说明,装饰工程施工图技术说明,平面部分图纸,平面部分中央空调,迈格森立面部分,天花部分大样图,家具大样图,门大样图,给排水图大样,排水管示意图,色号表等...
最新回复:mxwyq888 2020-03-19 