匿名
发表于2018-10-11
2178人浏览
3人跟帖
等级: 
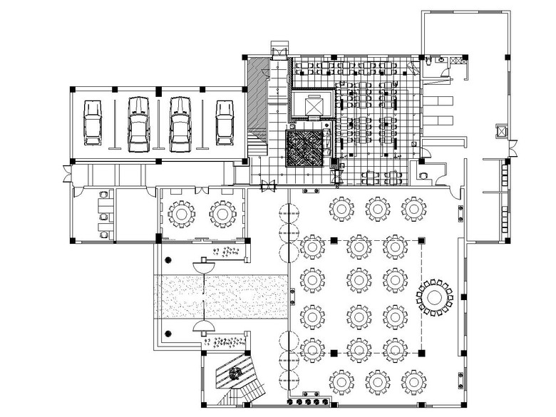
内容包含:平面布置图、家居尺寸布置图、天花造型布置图、地面材料布置图、平面展开索引图、平台展开图、南侧包房备餐间展开图、门厅立面展开图、走廊立面图、包房休息厅立面图、吧台剖面图、走廊天花造型布置图、包厢平面布置图...
最新回复:史蒂芬乔 2022-04-15 
匿名
发表于2018-05-25
1739人浏览
2人跟帖
等级: 
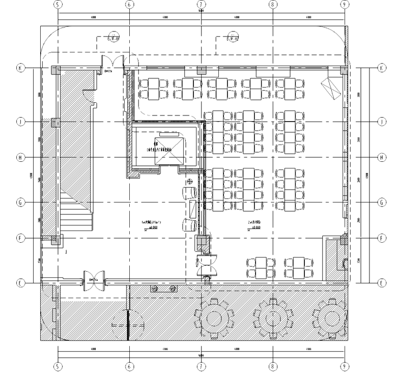
内容包含节点详图,目录表,天花(平面,立面),门详图,龙骨图,卫生间另附:实景图厨房实景图电梯口实景图电梯走道实景图会议室实景图卫生间实景图休息大厅实景图用餐区实景图缩略图
最新回复:kamson 2022-02-18 
匿名
发表于2018-09-03
3145人浏览
2人跟帖
等级: 
图纸深度:施工图项目位置:辽宁设计风格:中式风格图纸格式:CAD2000图纸张数:63张设计时间:2017包含图片:效果图建筑面积:500㎡楼层数:2层内容包含:平面图(平面布置图,顶面布置图,地坪布置图,平面尺寸图,平面材质图...
最新回复:TAKERA 2021-10-20 
匿名
发表于2018-07-10
12201人浏览
3人跟帖
等级: 
包含:封面、施工说明、灯具示例表、装饰图例说明、材料表、目录、原始建筑图、平面布置图、天花设计图、天花尺寸图、灯具尺寸图、开关示意图、插座示意图、立面索引图、过道立面图、卫生间立面图、包间立面图、餐厅立面图、厨房...
最新回复:篡梦者 2021-10-06 
匿名
发表于2016-12-22
2816人浏览
2人跟帖
等级: 
内容简介(33张) 包含:设计说明,平面图(原始结构图,墙体改动图,平面布置图,平面尺寸图,顶面布置图,顶面尺寸图,地面材质图,插座布置图,灯具布线图,立面索引图);立面图(入户门,吧台,包间,大厅,装饰屏风,选鱼...
最新回复:小鱼子子 2021-09-30 
匿名
发表于2021-09-22
430人浏览
1人跟帖
等级: 
内容简介:[湖北]现代风坎爷火锅全套施工图设计资料内容包含:CAD施工图(图纸目录,施工图设计说明、平面图,立面图,节点大样,消防图纸等)PDF版图纸,效果图等0 平面家具定位图.png立面图1.png立面图2.png立面图3.png立面图...
最新回复:一个捡来的ID 2021-09-22 
匿名
发表于2021-09-22
356人浏览
1人跟帖
等级: 
内容简介:[湖北]中式风连锁火锅店效果图+全套施工图+报价书+现场照片资料内容包含:CAD施工图(图纸目录,施工图设计说明、平面图,立面图,节点大样,消防图纸等)PDF版图纸,效果图等0 平面布置图.png灯具定位平面图.png家具...
最新回复:一个捡来的ID 2021-09-22 
汇标工程咨询工作室1
发表于2021-09-02
899人浏览
2人跟帖
等级: 
[河南]餐饮商店室内设计文本PDF2021内容包含:一、平面布置 二、室内空间餐饮建筑设计2.jpg餐饮建筑室内1.jpg餐饮建筑室内空间.jpg餐饮建筑室内设计.jpg餐饮建筑室内设计3.jpg餐饮空间.jpg餐饮空间室内设计.jpg商业店面设计.jpg
最新回复:汇标工程咨询工作室 2021-09-02 
匿名
发表于2017-03-06
8747人浏览
4人跟帖
等级: 
内容简介(41张) 包含:平面图(原始地面结构图,平面布置图,天花标高图,天花尺寸图,天花材质图,灯具定位图,);立面图(一层大堂,餐厅,公共卫生间,二层厅,三层厅);剖面图;节点图;标准图框;材料表 另附:效果图7...
最新回复:阿七孤单单 2021-07-20 
匿名
发表于2021-07-05
1207人浏览
1人跟帖
等级: 
本资料为14套餐饮室内装修设计方案CAD施工图效果图,图纸资料丰富。茶座一共享大厅立面图.jpg快餐厅二立面图.jpg餐饮广场三立面索引图.jpg餐饮广场四平面设计图.jpg素食馆五地面铺设图.jpg音乐餐厅六大厅立面图.jpg
最新回复:白山老师 2021-07-05 
匿名
发表于2021-07-02
1862人浏览
1人跟帖
等级: 
本资料为[厦门]新中式餐厅室内设计施工图CAD+效果图,图纸资料丰富。本工程图纸包括平面系列图,原始结构及拆墙图,砌墙图,地坪布置图,家具平面布置图,厨房家具平面布置图,平面家具定位图,立面索引图,天花布置图,天花造型...
最新回复:白山老师 2021-07-02 
匿名
发表于2021-06-28
669人浏览
1人跟帖
等级: 
内容简介:[天津]“沁”美式烤肉餐厅施工图+灯具表+效果图资料内容包含:CAD施工图(图纸目录,施工图设计说明、平面图,立面图,节点大样,电气,给排水等)材料表等平面布置图.png01 平面布置图.png材料明细.png地坪布置图.pn...
最新回复:一个捡来的ID 2021-06-28 
匿名
发表于2019-06-27
3311人浏览
2人跟帖
等级: 
本资料为某川味餐饮火锅店室内装修设计施工图纸一层平面方案图一层天花方案图一层天花风管图二层平面方案图三层平面方案图总缩略图
最新回复:神的随波逐流 2021-06-16 
匿名
发表于2021-06-09
332人浏览
1人跟帖
等级: 
内容简介:中海石油液化天然气现代轻奢餐厅施工图设计高清效果图+施工图PDF资料内容包含:(图纸目录,施工图设计说明、物料表、平面图,立面图,节点大样,给排水,电气图纸等)效果图等一层活动家具平面图.png二层电气平面图....
最新回复:一个捡来的ID 2021-06-10 
匿名
发表于2021-06-09
853人浏览
1人跟帖
等级: 
内容简介:[广东]小龙坎中山店连锁火锅店装修效果图+全套施工图+报价书+现场照片资料内容包含:(图纸目录,施工图设计说明、物料表、平面图,立面图,节点大样,给排水,电气图纸等)效果图等平面布置图.png插座布置平面图.png...
最新回复:一个捡来的ID 2021-06-09 
匿名
发表于2021-06-09
527人浏览
1人跟帖
等级: 
内容简介:[云南]昆明中式风连锁火锅店装修计效果图+全套施工图+报价书+现场照片资料内容包含:(图纸目录,施工图设计说明、物料表、平面图,立面图,节点大样,给排水,电气图纸等)效果图等01 平面布置图.png二层地面布置图....
最新回复:一个捡来的ID 2021-06-09 
匿名
发表于2021-06-08
363人浏览
1人跟帖
等级: 
内容简介:[广东] 汉堡王卓越世纪中心餐饮装修施工图CAD资料内容包含:(图纸目录,施工图设计说明、平面图,立面图,节点大样,给排水,电气图纸等)SU模型,效果图等平面布置图.png大样图.png大样图1.png大样图2.png地面铺设图...
最新回复:一个捡来的ID 2021-06-08 
匿名
发表于2021-06-08
384人浏览
1人跟帖
等级: 
内容简介:[重庆]汉堡王水木年华店餐饮装修施工图设计CAD资料内容包含:(图纸目录,施工图设计说明、平面图,立面图,节点大样,给排水,电气图纸等)SU模型,效果图等01 一层平面布置图.png灯具家具大样.png灯具家具大样1.png...
最新回复:一个捡来的ID 2021-06-08 
匿名
发表于2021-06-08
139人浏览
1人跟帖
等级: 
内容简介:[广东]汉堡王河源热水服务区二层施工图设计CAD资料内容包含:(图纸目录,施工图设计说明、平面图,立面图,节点大样,给排水,电气图纸等)SU模型,效果图等01 二层平面布置图.png二层平面放线图.png二层平面索引图....
最新回复:一个捡来的ID 2021-06-08 
匿名
发表于2021-06-08
423人浏览
1人跟帖
等级: 
内容简介:[广东]汉堡王凯德广场店餐饮空间装修施工图CAD资料内容包含:(图纸目录,施工图设计说明、平面图,立面图,节点大样,给排水,电气图纸等)SU模型,效果图等01 平面图.png灯具定位图.png灯具家具花槽大样.png灯具家具...
最新回复:一个捡来的ID 2021-06-08 