匿名
发表于2021-08-31
155人浏览
1人跟帖
等级: 
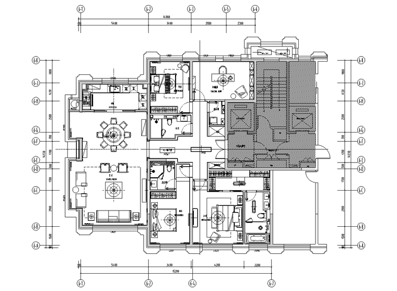
内容简介:[北京]中式轻奢户型200㎡样板间装修施工图 CAD资料内容包括;CAD全套施工图(设计说明、目录、平面图、立面图、节点图、节点大样图,给排水,照明电气等图纸)等。0 平面布置图.png灯具定位尺寸图.png户型布置图.png立...
最新回复:一个捡来的ID 2021-08-31 
匿名
发表于2021-08-31
90人浏览
1人跟帖
等级: 
内容简介:[河南]现代风上合院住宅装修全套施工图资料内容包括;CAD全套施工图(设计说明、目录、平面图、立面图、节点图、节点大样图,给排水,照明电气等图纸)等0 1层平面设计图.png夹层地坪铺设图.png夹层设计平面图.png天花...
最新回复:一个捡来的ID 2021-08-31 
匿名
发表于2021-08-31
257人浏览
1人跟帖
等级: 
内容简介:[河南]现代风280㎡大平层样板房装修施工图资料内容包括;CAD全套施工图(设计说明、目录、平面图、立面图、节点图、节点大样图,给排水,照明电气等图纸)实景图等0 平面布置图.png灯具连接图.png地面铺装图.png立面索...
最新回复:一个捡来的ID 2021-08-31 
匿名
发表于2021-08-31
264人浏览
1人跟帖
等级: 
内容简介:[河南]现代风280m²样板房豪宅装修施工图01 一层平面布置图.png灯具连接图.png天花灯具定位图.png天花造型尺寸图.png综合天花图.png
最新回复:一个捡来的ID 2021-08-31 
匿名
发表于2021-08-31
55人浏览
1人跟帖
等级: 
内容简介:[福建]中式风格复式样板房住宅装修施工图资料内容包括;CAD全套施工图(设计说明、目录、平面图、立面图、节点图、节点大样图,给排水,照明电气等图纸)实景图等灯具定位图.png客房立面图.png一层地面铺贴图.png一层...
最新回复:一个捡来的ID 2021-08-31 
匿名
发表于2021-08-31
64人浏览
1人跟帖
等级: 
内容简介:河南中式风格200㎡样板间住宅装修施工图资料内容包括;CAD全套施工图(设计说明、目录、平面图、立面图、节点图、节点大样图,给排水,照明电气等图纸)实景图等平面布置图.png公共空间立面图.png公共空间立面图1.png...
最新回复:一个捡来的ID 2021-08-31 
匿名
发表于2021-08-31
40人浏览
1人跟帖
等级: 
内容简介:杭州东海水景城中式五居室住宅装修施工图资料内容包括;CAD全套施工图(设计说明、目录、平面图、立面图、节点图、节点大样图,给排水,照明电气等图纸)实景图等地面物料图.png顶面布置图.png开关布置图.png客厅立面...
最新回复:一个捡来的ID 2021-08-31 
匿名
发表于2021-08-31
87人浏览
1人跟帖
等级: 
内容简介:中式-三室两厅137㎡住宅装修施工图设计资料内容包括;CAD全套施工图(设计说明、目录、平面图、立面图、节点图、节点大样图,给排水,照明电气等图纸)实景图等顶面布置图.png过道立面图.png开关布置图.png客餐厅立面...
最新回复:一个捡来的ID 2021-08-31 
匿名
发表于2021-08-31
75人浏览
1人跟帖
等级: 
内容简介:中式风格厅200㎡三室两厅住宅装修施工图资料内容包括;CAD全套施工图(设计说明、目录、平面图、立面图、节点图、节点大样图,给排水,照明电气等图纸)实景图等01 平面布置图.png地面材料图.png家具布置图.png立面图...
最新回复:一个捡来的ID 2021-08-31 
匿名
发表于2021-08-31
89人浏览
1人跟帖
等级: 
内容简介:现代简约美式四室两厅住宅装修施工图设计资料内容包括;CAD全套施工图(设计说明、目录、平面图、立面图、节点图、节点大样图,给排水,照明电气等图纸)实景图等01 平面布置图.png地面铺贴平面图.png家具尺寸平面图....
最新回复:一个捡来的ID 2021-08-31 
匿名
发表于2021-08-31
182人浏览
1人跟帖
等级: 
内容简介:现代国际120㎡三室两厅平层住宅装修施工图资料内容包括;CAD全套施工图(设计说明、目录、平面图、立面图、节点图、节点大样图,给排水,照明电气等图纸)实景图等01 平面布置图.png吧台示意图.png餐厅立面图.png地块...
最新回复:一个捡来的ID 2021-08-31 
匿名
发表于2021-08-31
93人浏览
1人跟帖
等级: 
内容简介:现代黑白灰复式住宅装修施工图设计CAD资料内容包括;CAD全套施工图(设计说明、目录、平面图、立面图、节点图、节点大样图,给排水,照明电气等图纸)实景图等01 平面布置图.png吊顶布置图.png开关布置图.png立面图.p...
最新回复:一个捡来的ID 2021-08-31 
匿名
发表于2021-08-31
279人浏览
1人跟帖
等级: 
内容简介:现代90㎡二室两厅住宅样板间装修施工图设计CAD资料内容包括;CAD全套施工图(设计说明、目录、平面图、立面图、节点图、节点大样图,给排水,照明电气等图纸)实景图等01 平面布置图.png开关布置图.png立面图.png立面...
最新回复:一个捡来的ID 2021-08-31 
匿名
发表于2021-08-31
106人浏览
1人跟帖
等级: 
内容简介:现代风格150㎡二室两厅住宅装修施工图设计CAD资料内容包括;CAD全套施工图(设计说明、目录、平面图、立面图、节点图、节点大样图,给排水,照明电气等图纸)实景图等01 平面设计布置图.png立面图.png立面图1.png立面...
最新回复:一个捡来的ID 2021-08-31 
匿名
发表于2021-08-31
68人浏览
1人跟帖
等级: 
内容简介:浙江现代风复式住宅装修施工图设计CAD资料内容包括;CAD全套施工图(设计说明、目录、平面图、立面图、节点图、节点大样图,给排水,照明电气等图纸)实景图等01 平面布置图.png地面物料表.png顶面尺寸图.png客餐厅立...
最新回复:一个捡来的ID 2021-08-31 
匿名
发表于2021-08-31
294人浏览
等级: 
内容简介:现代灰色简洁-四室两厅住宅装修施工图设计资料内容包括;CAD全套施工图(设计说明、目录、平面图、立面图、节点图、节点大样图,给排水,照明电气等图纸)实景图等。01 平面布置图.jpg灯具尺寸图.jpg地面布置平面图.j...
最新回复:匿名 2021-08-31 
匿名
发表于2021-08-31
267人浏览
1人跟帖
等级: 
内容简介:现代简洁140㎡二室两厅住宅装修施工图设计+实景图资料内容包括;CAD全套施工图(设计说明、目录、平面图、立面图、节点图、节点大样图,给排水,照明电气等图纸)实景图等。01 平面布置图.jpg厨房立面图.jpg地面布置图...
最新回复:一个捡来的ID 2021-08-31 
匿名
发表于2021-08-31
259人浏览
1人跟帖
等级: 
内容简介:现代白色素雅三室两厅装修施工图设计+实景图资料内容包括;CAD全套施工图(设计说明、目录、平面图、立面图、节点图、节点大样图,给排水,照明电气等图纸)实景图等。01 平面布置图.jpg次卧立面图.jpg顶面布置尺寸图...
最新回复:一个捡来的ID 2021-08-31 
匿名
发表于2021-08-31
246人浏览
1人跟帖
等级: 
内容简介:180㎡现代四室两厅平层住宅装修施工图设计 CAD+实景图资料内容包括;CAD全套施工图(设计说明、目录、平面图、立面图、节点图、节点大样图,给排水,照明电气等图纸)实景图等。01 平面布置图.jpg顶面尺寸图.jpg客餐厅...
最新回复:一个捡来的ID 2021-08-31 
匿名
发表于2021-08-31
941人浏览
1人跟帖
等级: 
内容简介:现代禅意三室两厅140㎡住宅装修施工图 CAD+实景图资料内容包括;CAD全套施工图(设计说明、目录、平面图、立面图、节点图、节点大样图,给排水,照明电气等图纸)实景图等。01 平面布置图.jpg灯具连接图.jpg地面物料分...
最新回复:一个捡来的ID 2021-08-31 