匿名
发表于2021-10-31
46人浏览
1人跟帖
等级: 
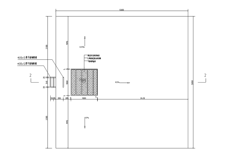
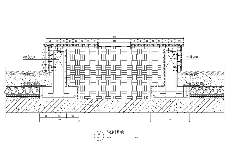
内容简介:住宅区坐凳、水池及景墙结构图住宅区坐凳、水池及景墙结构图 (1).png住宅区坐凳、水池及景墙结构图 (2).png住宅区坐凳、水池及景墙结构图 (3).png
最新回复:红与白的碰撞 2021-10-31 
匿名
发表于2021-10-31
22人浏览
1人跟帖
等级: 
内容简介:住宅区水池、花钵剖面配筋详图住宅区水池、花钵剖面配筋详图 (1).png住宅区水池、花钵剖面配筋详图 (1).png住宅区水池、花钵剖面配筋详图 (2).png
最新回复:红与白的碰撞 2021-10-31 
匿名
发表于2021-09-26
175人浏览
1人跟帖
等级: 
内容简介:标准构造图集修改内容 CAD目录:可移动迎宾岗、水池构造及泵井详图、树池篦子详图,可移动迎宾岗1.png可移动迎宾岗2.png可移动迎宾岗3.png可移动迎宾岗4.png树篦子大样图.png树篦子详图.png水池构造及泵井详图.png水池...
最新回复:红与白的碰撞 2021-09-26 
匿名
发表于2019-12-17
1910人浏览
2人跟帖
等级: 
内容简介:2018年园建标准构造图集|非机动车停车位详图绿化堆坡换填大样图一绿化堆坡换填大样图
最新回复:saint12 2021-09-23 
匿名
发表于2019-11-30
6658人浏览
4人跟帖
等级: 
本资料为:篮球场,排球场,网球场CAD平面图篮球场,排球场,网球场CAD平面图 1篮球场,排球场,网球场CAD平面图 2篮球场,排球场,网球场CAD平面图 3篮球场,排球场,网球场CAD平面图 4
最新回复:开心莹子 2021-09-23 
匿名
发表于2021-09-16
196人浏览
1人跟帖
等级: 
内容简介:泳池标准化图纸-米色典雅小泳池 CAD+SU目录:多功能房详图、泳池平面图、泳池区详图、泳池主入口详图、泳池景墙详图、特色种植池详图、玻璃栏杆详图、次入口详图。0 泳池平面图.png泳池平面图1.png泳池区详图.png泳池...
最新回复:红与白的碰撞 2021-09-16 
匿名
发表于2021-09-16
182人浏览
1人跟帖
等级: 
内容简介:泳池标准化图纸-灰色现代小泳池 CAD+SU目录:多功能房详图、泳池区平面图、泳池区详图、游泳入口详图、景墙一详图、玻璃栏杆详图、景墙二详图。扶梯详图.png节点详图.png节点详图1.png景墙一详图.png景墙一详图1.png景...
最新回复:红与白的碰撞 2021-09-16 
匿名
发表于2021-09-16
204人浏览
1人跟帖
等级: 
内容简介:泳池标准化图纸-灰色现代小泳池 CAD+SU目录:多功能房详图、部品图片、泳池验收版、灰色现代小泳池平面图、泳池区详图、泳池区出入口、泳池景墙详图、特色种植池详图。灰色现代小泳池平面图.png灰色现代小泳池平面图1...
最新回复:红与白的碰撞 2021-09-16 
匿名
发表于2021-09-16
279人浏览
1人跟帖
等级: 
内容简介:泳池标准化图纸-灰色现代大泳池 CAD+SU目录:多功能房详图、泳池平面图、泳池区详图、泳池出入口详图、玻璃栏杆详图、特色种植池详图、地产标准图签。大样详图.png节点详图.png节点详图1.png节点详图2.png立面图.png剖...
最新回复:红与白的碰撞 2021-09-16 
匿名
发表于2021-09-16
582人浏览
1人跟帖
等级: 
内容简介:20套园林给排水标准构造详图图集目录:图纸目录、给排水设计说明、材料表、快速接水栓安装详图、三合一雨水口详图、二合一雨水口详图、雨水口详图、水景给排水管道附件详图、园林排水管敷设详图。20套园林给排水标准构...
最新回复:红与白的碰撞 2021-09-16 
匿名
发表于2021-09-16
212人浏览
1人跟帖
等级: 
内容简介:园林电气标准构造图集-水电+园建打印样式园林电气标准构造图集-水电+园建打印样式 (1).png园林电气标准构造图集-水电+园建打印样式 (2).png园林电气标准构造图集-水电+园建打印样式 (3).png园林电气标准构造图集-水电...
最新回复:红与白的碰撞 2021-09-16 
匿名
发表于2021-09-16
116人浏览
1人跟帖
等级: 
内容简介:园林电气标准构造图集-停车场岗亭电气平面园林电气标准构造图集-停车场岗亭电气平面 (1).png园林电气标准构造图集-停车场岗亭电气平面 (2).png园林电气标准构造图集-停车场岗亭电气平面 (3).png
最新回复:红与白的碰撞 2021-09-16 