艺术设计
工程技术
机电设备
项目与管理
BIM学院
发帖说明
本小组需要加入才可以发帖
关注
发资料
了解更多
还可以输入 40 字
加入小组后才可以发帖哦,现在就加入?
检索到222条内容
0
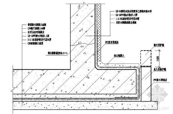
地下室外防内贴防水构造图(I级设防)
eggs 发表于2007-08-09 2193人浏览 1人跟帖 等级: 来自:建筑节点详图
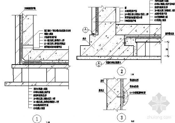
地下室桩头防水构造节点图
eggs 发表于2007-08-09 4239人浏览 1人跟帖 等级: 来自:建筑节点详图
地下室疏水排水剖面示意图
eggs 发表于2007-08-09 2748人浏览 1人跟帖 等级: 来自:建筑节点详图
地下室外防内涂防水构造图(II级设防)
eggs 发表于2007-08-09 2481人浏览 1人跟帖 等级: 来自:建筑节点详图
地下室外防外涂防水构造图2
eggs 发表于2007-08-09 1614人浏览 1人跟帖 等级: 来自:建筑节点详图
二合一地下连续墙防水构造图(II级设防)
eggs 发表于2007-08-09 1797人浏览 1人跟帖 等级: 来自:建筑节点详图
地下室对拉模板螺栓(套管式、埋入式)节点防水图2
eggs 发表于2007-08-08 2234人浏览 1人跟帖 等级: 来自:建筑节点详图
地下室底板、壁板后嵌埋式变形缝
eggs 发表于2007-08-08 1996人浏览 1人跟帖 等级: 来自:建筑节点详图
地下室底板、壁板预埋式变形缝节点构造图
eggs 发表于2007-08-08 2036人浏览 1人跟帖 等级: 来自:建筑节点详图
地下室深基坑抽、排水预埋井构造大样
eggs 发表于2007-08-08 3364人浏览 1人跟帖 等级: 来自:建筑节点详图
地下室防水图例
eggs 发表于2007-08-08 3618人浏览 1人跟帖 等级: 来自:建筑节点详图
地下室穿墙管节点防水图
eggs 发表于2007-08-08 2164人浏览 1人跟帖 等级: 来自:建筑节点详图
地下室卷材搭接节点图
eggs 发表于2007-08-08 1186人浏览 1人跟帖 等级: 来自:建筑节点详图
地下室疏水层平面布置图
eggs 发表于2007-08-08 1788人浏览 1人跟帖 等级: 来自:建筑节点详图
eggs 发表于2007-08-08 1428人浏览 1人跟帖 等级: 来自:建筑节点详图
地下室防水设计说明
eggs 发表于2007-08-08 2818人浏览 1人跟帖 等级: 来自:建筑节点详图
地下室架空疏水防水构造(I级设防)2
eggs 发表于2007-08-08 1148人浏览 1人跟帖 等级: 来自:建筑节点详图
地下室架空疏水防水构造(I级设防)
eggs 发表于2007-08-08 992人浏览 1人跟帖 等级: 来自:建筑节点详图
地下室后浇带度板、立板节点图
eggs 发表于2007-08-08 1511人浏览 1人跟帖 等级: 来自:建筑节点详图
地下室防水图例2
eggs 发表于2007-08-08 1830人浏览 1人跟帖 等级: 来自:建筑节点详图
图纸说明
室外工程
墙体构造
变形缝
屋面建筑构造
楼地面建筑构造
楼电梯建筑构造
建筑幕墙
防水做法
门窗
阳台雨蓬
中式构件
欧式构件
成套图集
人孔详图
低温冷库
室外构件CAD图块
申请加入管理团队
组长
向日葵爱阳光
管理员
小夭90
上善至简
超人不会飞521
AlwaysBlack
兜里全是糖
选择想要与"建筑节点详图"交换链接的小组
忘记选择小组啦,小伙伴们很困惑,还是选一个再交换吧~
个人擅长:
专业
艺术设计类
适用于建筑学专业,在设计机构从事建筑设计和城市规划的人员
适用于从事室内装饰装修设计的人员
适用于从事园林景观规划与设计的人员
适用于从事室内外照明设计与施工的人员
适用于从事三维建模、渲染及后期制作的人员
工程技术类
适用于在设计机构从事建筑结构设计与科研的专业人员
适用于从事房屋建筑的土建施工、装饰施工、钢结构与幕墙施工人员
适用于从事路桥与市政工程的设计、施工的人员
适用于从事勘察与岩土工程的设计、施工的人员
适用于从事水利水电工程设计、施工、管理的专业人员
机电设备类
适用于从事输配电、建筑电气与智能化的设计、施工的人员
适用于从事给排水、消防、水处理的设计、施工人员
适用于从事暖通、空调、动力、制冷的设计、施工的人员
造价与管理类
适用于从事房地产策划、开发与管理的人员
适用于造价工程师及概预算人员
从事房建、市政路桥、园林、水电安装的监理人员
从事工程技术、经营、质量、安全管理的专业人员
其他类别
销售建筑材料与建筑设备的专业人员
退出管理团队
您将失去的身份,确定退出?