本小组汇集其它类建筑的方案文本、方案图及施工图。建筑师朋友们可以自由分享与下载宗教建筑、变电所及配电室、锅炉房、人防工程、殡仪馆等建筑的方案文...
- 366962成员
- 552主题
- 874回复
- 0热度

110kv变电站建筑设计全套施工图 中英文对照 本图为建筑设计,六张图纸
80m烟囱施工图 包括平立剖面和配筋图、详图 三张图纸
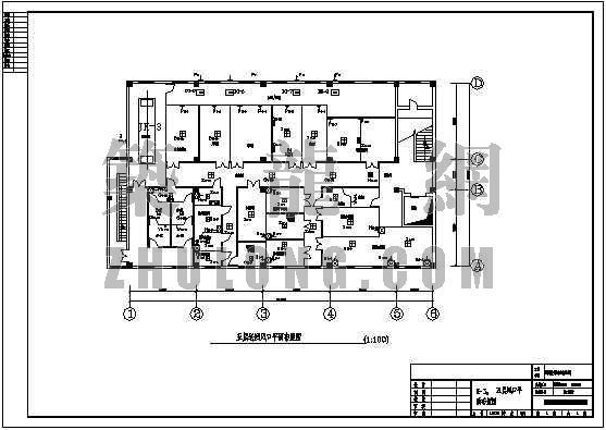
暖通设备一览表、设计说明、液体制剂空调系统原理图、丸剂车间空调系统原理图、固体制剂空调系统原理图 一层、二、四层、五层风口平面布置图,二层留孔平面布置图 一层、四层、五层送风管平面布置图、回风管平面布置图 ...
该套图纸包括11张建施图纸: 1、总平面图 2、剖面图 3、四层平面图 4、三层平面图 5、二层平面图 6、一层平面图 7、沿河立面图 8、地下一层平面图 9、平面图(住宅标准层平面图、半地下层平...