建筑设计专业知识讲解,设计经验总结和交流,优秀设计方案品鉴,设计资料整理和发布。在设计的道路上,我们坚信:士不可以不弘毅,任重而道远!
- 505成员
- 31主题
- 14回复
- 0热度

发表于2015-11-07
3127人浏览
1人跟帖
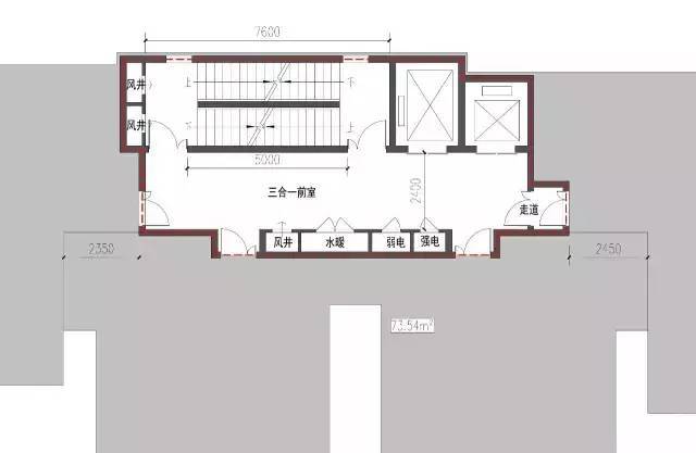
一、剪刀梯交通核构成要素渐变背景内容渐变背景内容135编辑器操作方便才是硬道理135编辑器操作方便才是硬道理135编辑器操作方便才是硬道理短标题剪刀梯交通核构成要素主要有:楼梯、电梯、楼/电梯前室、公共走道、候梯厅、设备管...
最新回复: 2015-11-07 
发表于2015-11-07
369人浏览
建筑风格指建筑设计中在内容和外貌方面所反映的特征,主要在于建筑的平面布局、形态构成、艺术处理和手法运用等方面所显示的独创和完美的意境。上述总结,大家觉得是否全面呢,可以发表一下自己的看法!
最新回复: 2015-11-07 
发表于2015-11-07
999人浏览
一、必须了解的规划条件:1、规划局的规划要点;建设用地范围即红线范围、地形情况、建设用地面积、建筑规模(地上地下),容积率、绿地率、建筑高度、建筑退界要求、建筑退线要求、建筑间距要求、日照要求、配套公共服务设施要...
最新回复: 2015-11-07 
发表于2015-11-07
961人浏览
一、竖向设计的概念:(垂直设计、竖向布置)结合场地的自然地形特点、平面功能布局与施工技术条件,在研究建、构筑物及其他设施之间的高程关系的基础上,充分利用地形、减少土方量,因地制宜地确定建筑、道路的竖向位置,合理地...
最新回复: 2015-11-07 
发表于2015-11-07
355人浏览
3分钟看懂建筑结构-------------------------------------------
最新回复: 2015-11-07 
发表于2015-11-07
428人浏览
色彩基础色彩作为一个奇妙的东西,通过色相、纯度、色调、对比等手段表达人们的情感和联想,影响人们的心理和生理反应,甚至影响人们对事物的客观理解和看法。室内设计师作为美好事物的创造者和居室设计的情感表现者,学习色彩的...
最新回复: 2015-11-07 
发表于2015-11-07
344人浏览
概括地讲,建筑物层数(高度)对造价的影响,因建筑类型、形式和结构不同而不同。理论上如果增加一个楼层不影响建筑物的结构形式,单位建筑面积的成本可能会降低。但是当建筑物超过一定层数时,结构形式就要改变,单位成本通常又会...
最新回复: 2015-11-07 
发表于2015-11-07
579人浏览
建筑上最基本、最常用的尺寸,比如:阳台、楼梯、电梯、自动扶梯、浴厕、地下停车库、停车场、办公楼、图书馆建筑、餐饮建筑、旅馆客房、商店、电影院观众厅、门窗以及过道的尺寸,你都了解吗?跟随小编一起来看看吧~1、阳台 ...
最新回复: 2015-11-07 
发表于2015-11-07
1136人浏览
彭一刚著名建筑专家。天津大学教授、建筑学院名誉院长。1995年当选为中国科学院院士。曾任第八、第九届全国政协委员,民盟中央委员,民盟天津市委常委。著有《建筑空间组合论》等书,曾获过梁思成建筑奖,参与设计威海甲午海战关...
最新回复: 2015-11-07 
发表于2015-11-05
291人浏览
在日常工作中,建筑师总是面临各式各样的纷扰和挑战:搞定甲方、合作方和承包方;保持软件与技术能力的先进性;绘制各式图纸和写文案;如果你幸运的话,还要设计一些相关的东西。早先发表在ARCH Smart上的21个小贴士将会最大程度...
最新回复: 2015-11-05 
发表于2015-11-05
639人浏览
1、土地购买 开发商在看中一块地准备开始购买前就会要求设计师对土地进行初步设计,计算经济技术指标,估计投标价 2、建筑方案招标——建筑师初步设计——方案深化——方案报规 3、施工图设计 土建工程造价师要...
最新回复: 2015-11-05 