室内节点详图_室内设计图片
室内节点详图是构成大样图的重要条件,有了好的节点详图才能保证大样图的质量,本小组内包含了各种节点详图的资料,仅供参考。
  • 203412成员
  • 10510主题
  • 13111回复
  • 0热度
  • 0周热度
  • 0月热度
  • 0总热度

了解更多

标签检索
等      级:

检索到334条内容

0

匿名 发表于2020-06-05  2808人浏览  1人跟帖   等级:   来自:室内节点详图  

全国通用残疾人卫生间,楼梯扶手等节点大样详图资料内容包括:伸缩缝做法 ,防火卷帘做法,卫生间残疾人不锈钢扶手,暗藏式地漏剖面节点,卫生间门槛石,玻璃隔断做法,邻边保护预埋做法,卫生间地漏,墙面与玻璃隔断工艺做法,卫生...

0

匿名 发表于2020-06-05  1868人浏览  1人跟帖   等级:   来自:室内节点详图  

全国通用隔墙节点大样详图资料内容包括:轻钢龙骨隔墙节点,轻钢龙骨曲面墙组合示意图,门窗洞口龙骨加强构造,钢架隔墙节点,轻钢龙骨石膏板隔墙,防火玻璃隔断墙构造,铝合金框与防火玻璃节点,砌块隔墙节点,粘贴增强纤维水泥...

0

匿名 发表于2020-06-05  3609人浏览  1人跟帖   等级:   来自:室内节点详图  

全国通用地面节点大样详图资料内容包括:门槛石剖面节点图,石材与实木地板,木地板与玻璃、不锈钢,木地板与地毯剖面节点图,木地板与地砖,石材与地毯,石材玻璃地坎剖面节点图,石材地暖楼面节点,淋浴间内下水槽工艺做法 ,...

0

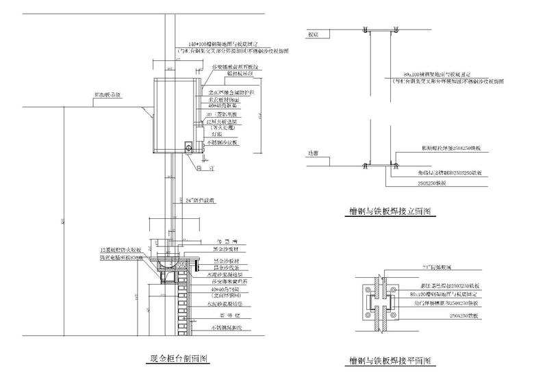
匿名 发表于2020-06-01  1631人浏览  1人跟帖   等级:   来自:室内节点详图  

槽钢,工字钢,角钢节点详图槽钢 8号80X43槽钢10号100X48工字钢 16号160X88角钢等边90x10角钢等边25x3

0

匿名 发表于2020-04-13  1103人浏览  2人跟帖   等级:   来自:室内节点详图  

本资料为重点厨房整套平立面及结构施工图平面图厨房结构立面图厨房排砖立面图窗台立面节点图柜体结构图厨房柜体拆分图缩略图

0

匿名 发表于2020-05-13  4804人浏览  2人跟帖   等级:   来自:室内节点详图  

玻璃隔断,防火板,钢结构外贴砖等节点大样详图资料内容包括:玻璃隔断节点,防弹玻璃隔断传票台节点,防火板节点图,钢结构外贴砖节点,铝塑板玻璃隔断节点,铝塑板石材墙玻璃隔断节点,墙面贴砖节点,石材玻璃隔断节点,文化石...

0

匿名 发表于2020-05-20  928人浏览  1人跟帖   等级:   来自:室内节点详图  

隐框玻璃幕墙,幕墙标准五金件节点详图120主龙骨隐框玻璃幕墙标准节点图120主龙骨隐框玻璃幕墙标准节点图2120主龙骨隐框玻璃幕墙标准节点图3120主龙骨隐框玻璃幕墙标准节点图4120主龙骨隐框玻璃幕墙标准节点图5150主龙骨隐框玻璃...

0

匿名 发表于2020-05-19  578人浏览  1人跟帖   等级:   来自:室内节点详图  

干挂,钢销式,外保温,铝合金型石材节点图石材包梁与百页窗连接竖剖节点钢销式石材幕墙阳角节点图铝合金型材石材节点图铝合金型材石材节点图2铝合金型材石材节点图3石材幕墙底部、中间竖剖节点图石材幕墙横剖节点图石材幕墙竖剖...

0

匿名 发表于2020-05-19  802人浏览  1人跟帖   等级:   来自:室内节点详图  

不锈钢玻璃,洗手盆浴缸,墙面镜子节点详图不锈钢玻璃竖剖节点图墙面镜子暗藏灯节点图石材洗手台节点图洗手盆节点图洗手盆节点图2浴缸处节点图

0

匿名 发表于2020-05-12  1216人浏览  2人跟帖   等级:   来自:室内节点详图  

木,石材,铝塑板,玻璃,不锈钢踢脚节点大样详图木踢脚玻璃不锈钢条交接节点图玻璃踢脚节点图不锈钢踢脚木饰面交接节点图木踢脚节点图木踢脚节点图2石材踢脚节点图石材踢脚节点图2石材踢脚节点图3

0

匿名 发表于2020-05-13  1282人浏览  1人跟帖   等级:   来自:室内节点详图  

壁纸,皮革布艺软包,木饰面造型,布艺吸声板等节点大样详图资料内容包括:壁纸与木造型节点,布艺吸声板节点,皮革软包竖剖节点,轻钢龙骨石膏板壁纸、铝塑板踢脚,软包与不锈钢压条节点图,软包与铝塑板节点图,软包与木饰面灯...

0

匿名 发表于2020-05-12  1595人浏览  1人跟帖   等级:   来自:室内节点详图  

铝塑板,千思板,玻镁板等板材节点大样详图资料内容包括:玻镁板玻璃节点,玻镁板节点,穿孔铝板玻璃节点,钢结构铝塑板节点,烤漆金属板节点,铝塑板、木饰面节点,铝塑板、石膏板、不锈钢节点,铝塑板墙横剖节点,千思板节点,...

0

匿名 发表于2020-05-11  2308人浏览  1人跟帖   等级:   来自:室内节点详图  

窗口,窗帘盒,窗套,窗下口等节点大样详图窗户墙竖剖节点图窗间墙节点图窗口竖剖节点图窗帘盒节点图窗上口节点图窗套节点图窗下口壁纸节点图窗下口铝塑板节点图窗下口木饰面节点图

0

匿名 发表于2020-05-11  2450人浏览  1人跟帖   等级:   来自:室内节点详图  

轻钢龙骨隔墙,活动隔墙等节点大样详图资料内容包括:方钢轻钢龙骨龙骨隔墙,钢挂石材内砌轻钢龙骨隔墙,钢结构背景墙节点图,活动隔墙节点,轻钢龙骨吸音减震隔墙方钢轻钢龙骨龙骨隔墙节点图钢挂石材内砌轻钢龙骨隔墙节点图钢挂...

0

匿名 发表于2020-05-11  665人浏览  1人跟帖   等级:   来自:室内节点详图  

金箔壁纸织物,埃特板、玻镁板等天花材质节点图埃特板灯槽节点图埃特板天花节点图玻镁板、金属壁纸、钢管节点图玻镁板节点图玻镁板石膏板节点图石膏板、金箔节点图石膏板、金属壁纸、钢管节点图天花金箔壁纸节点图织物顶棚节点图

0

匿名 发表于2020-05-11  3701人浏览  1人跟帖   等级:   来自:室内节点详图  

石膏角线,铝格栅、垂片等天花节点大样详图垂片、石膏板、玻璃节点图格栅、石膏板、铝塑板节点图格栅、石膏板节点图铝格栅节点图铝格栅节点图2石膏板、玻镁板、垂片节点图石膏角线节点图石膏角线节点图2

0

匿名 发表于2020-05-09  2159人浏览  1人跟帖   等级:   来自:室内节点详图  

背漆玻璃,灯箱,磨砂玻璃穿孔铝板等节点详图资料内容包括:背漆玻璃节点图,背漆玻璃与木饰面交接节点图,玻璃灯箱节点图,玻璃墙与柱节点图,彩绘玻璃木夹板节点图,橱窗玻璃灯箱节点图,铝板与背漆玻璃交接节点图,磨砂玻璃穿...

0

匿名 发表于2020-05-09  4417人浏览  1人跟帖   等级:   来自:室内节点详图  

玻璃门,防火门套,垭口等门表节点大样详图不锈钢套节点图夹板门及套节点图门及套节点图轻钢龙骨隔墙门套节点图防火门套节点图石材垭口节点图玻璃门及隔断节点图推拉门节点图

0

匿名 发表于2020-05-06  3652人浏览  1人跟帖   等级:   来自:室内节点详图  

7套天花石膏线,地面,墙面踢脚线等节点图资料内容包括:天花节点详图,石膏线大样,地面材料接口节点,柜体节点详图,壁炉节点详图等地面施工节点详图节点大样详图节点大样详图2节点大样详图3节点大样详图4石膏线大样详图天花节...

0

HJSJ华建 发表于2020-03-19  3326人浏览  2人跟帖   等级:   来自:室内节点详图  

玻璃,石材,木饰面暗藏式消防栓节点详图玻璃饰面暗藏式消防栓横剖面图玻璃饰面暗藏式消防栓立面图玻璃饰面暗藏式消防栓内立面图木饰面暗藏式消防栓立面图木饰面暗藏式消防栓竖剖面图石材饰面暗藏式消防栓横剖面图石材饰面暗藏式...